FacadeChange Soeknad Enebolig

Fasadeendring, vinterhage og basseng på Brekkestien 11

📍 Brekkestien 11 , 3715 SKIEN

Nøkkelinfo

Sakstype
Fasadeendring
Bygningstype
Enebolig
Bruksareal
137 m²
Boenheter
1
Kommune
Skien
Fylke
Telemark
Gnr / Bnr
300 / 496
Saksnummer
2026/9978
Fase
Søknad

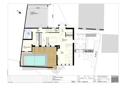
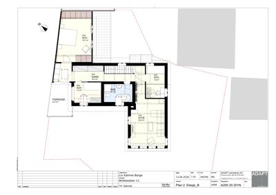
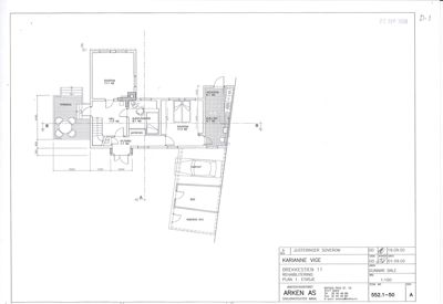
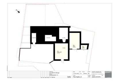
Om byggesaken

Eksisterende enebolig på 136,9 m² med tre etasjer og saltak i tre, skal gjennomgå fasadeendringer og tilbygg. Planene inkluderer etablering av en vinterhage, bod og et svømmebasseng på eiendommen. Bygget har flere rom fordelt på kjeller, første og andre etasje, inkludert garasje, stuer, soverom, bad og kontor. Fasaden er i tre med saltak, og det finnes flere vinduer og dører i ulike fasader. Tiltaket skal tilpasses områdets byggestil og hensyn til kulturmiljø, samt ivareta krav knyttet til flomfare og jernbanesikring.

Produkter og materialer

Fasade Trepanel

🧱 Tre

Fasade i tre med saltak, tilpasning til eksisterende byggestil og kulturmiljø

Materialer og arbeid for fasadeendringer på eksisterende enebolig

Ventilasjon Ventilasjon for vinterhage

Ventilasjonssystem for vinterhage for å sikre inneklima

Ventilasjon i vinterhage

Tak Saltak

🧱 Tre/tekkemateriale

Eksisterende saltak, eventuelle tilpasninger ved tilbygg

Taktekking og konstruksjon for vinterhage og tilbygg

Terrasse Terrasse til 2. etasje

Antall: 1

Terrasse på 10,3 m² i 2. etasje, tilknyttet stue

Terrasse for uteopphold

Tømrer Vinterhage og bod

🧱 Tre

Antall: 1

Bygging av vinterhage og bod som tilbygg til eksisterende bolig

Tømrerarbeid for tilbygg

Elektro El-installasjon for tilbygg og basseng

Elektriske installasjoner for vinterhage, bod og basseng

Elektroarbeid

Dører Ytterdører og terrassedører

Antall: 9

Dører i fasade og til vinterhage, inkludert terrassedør til terrasse på 10,3 m²

Dører for fasadeendring og tilbygg

Vinduer Fasadevindu

Antall: 17

Flere vinduer i tre fasade, inkludert 2 i kjeller, 13 i etasjer, tilpasning ved fasadeendring

Vinduer for fasadeendring og tilbygg

Isolasjon Isolasjon for tilbygg

Isolasjon for vinterhage og bod for å sikre energikrav

Isolasjon i tilbygg

Grunnarbeid Bassenggrunnarbeid

Antall: 1

Grunnarbeid for etablering av svømmebasseng i hage, inkl. drenering og fundamentering

Grunnarbeid for basseng

VVS Vann og avløp for basseng

VVS-installasjoner for svømmebasseng, inkludert vannforsyning og avløp

VVS-arbeid for basseng

Mur Fundament og bassengmur

Antall: 1

Murarbeid for basseng og eventuelle fundamenter for vinterhage og bod

Murarbeid for basseng og tilbygg

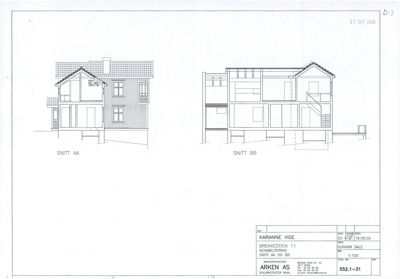
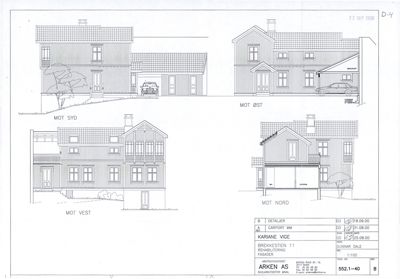
Fasader

Enebolig

Syd
Materiale
Tre
Taktype
Saltak
Vinduer
2
Dører
1
Synlige etasjer
2
Øst
Materiale
Tre
Taktype
Saltak
Vinduer
4
Dører
1
Synlige etasjer
2
Vest
Materiale
Tre
Taktype
Saltak
Vinduer
7
Dører
1
Balkonger
2
Synlige etasjer
3
Nord
Materiale
Tre
Taktype
Saltak
Vinduer
4
Dører
1
Balkonger
2
Synlige etasjer
3

Hendelser

16.04.2026 Bestilling av forhåndskonferanse - Gbnr 300/496 - Brekkestien 11 - Tiltak