Facade
Fasadetegning som viser bygningens utseende fra to vinkler (mot vest og mot nord), inkludert mål, detaljer og tegningsnummer.
1 / 25
FacadeChange
Unknown
Enebolig
Fasadeendring og tilbygg inntil 50 m² i enebolig
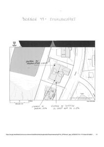
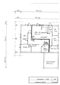
📍 Buskogen 41 , 1675 KRÅKERØY
Nøkkelinfo
- Sakstype
- Fasadeendring
- Bygningstype
- Enebolig
- Kommune
- Fredrikstad
- Fylke
- Østfold
- Gnr / Bnr
- 426 / 148
- Saksnummer
- 2026/8997
- Fase
- Unknown
Om byggesaken
Saken gjelder et ett-trinns søknad om endring av bygg, inkludert fasadeendring og et tilbygg på inntil 50 m² ved Buskogen 41.
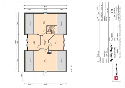
Fasader
Enebolig
Øst
- Materiale
- Tre
- Taktype
- Saltak
- Vinduer
- 3
- Dører
- 1
- Synlige etasjer
- 2
Sør
- Materiale
- Tre
- Taktype
- Saltak
- Vinduer
- 4
- Dører
- 1
- Synlige etasjer
- 2
Vest
- Materiale
- Tre
- Taktype
- Saltak
- Høyde
- 3.5 m
- Mønehøyde
- 8.2 m
- Vinduer
- 5
- Dører
- 1
- Balkonger
- 1
- Synlige etasjer
- 2
Nord
- Materiale
- Tre
- Taktype
- Saltak
- Høyde
- 3.5 m
- Mønehøyde
- 8.2 m
- Vinduer
- 4
- Dører
- 1
- Synlige etasjer
- 2
Hendelser
13.04.2026
Mangelfull søknad - Endring av bygg - annet, Fasadeendring, Tilbygg inntil 50 m² - Buskogen 41 - Eiendom 426/148
20.03.2026
Ett-trinns søknad - Buskogen 41 - Eiendom 426/148 - Endring av bygg - annet, Fasadeendring, Tilbygg inntil 50 m²
20.03.2026
Bekreftelse på mottatt søknad - Ett-trinns søknad - Endring av bygg - annet, Fasadeendring, Tilbygg inntil 50 m² - Buskogen 41 - Eiendom 426/148