Photo
Fotografi av en eksisterende eller planlagt bygning (hus) sett fra siden, med synlig fasade, balkong og omgivelser.
1 / 8
FacadeChange
Ferdigattest
Enebolig
Fasadeendring og bruksendring på enebolig, Buskumlinna 86
📍 Buskumlinna 86 , 2850 LENA
Nøkkelinfo
- Sakstype
- Fasadeendring
- Bygningstype
- Enebolig
- Bruksareal
- 169 m²
- Boenheter
- 1
- Kommune
- Østre Toten
- Fylke
- Innlandet
- Gnr / Bnr
- 189 / 3
- Saksnummer
- 2024/1541
- Fase
- Ferdigattest
Om byggesaken
Eksisterende enebolig på 169 m² med to etasjer får en fasadeendring med ny trepanelkledning og oppdaterte vinduer og dører. Bygget har saltak og fasader i tre på alle sider. I tillegg endres et rom i 2. etasje fra tilleggsdel til hoveddel, noe som innebærer bruksendring internt. Fasaden mot øst, nord, sør og vest oppgraderes med nye vinduer og dører i tre, og byggets visuelle uttrykk forbedres. Bygget har totalt 9 vinduer og 2 dører på fasadene, og inneholder blant annet stue, soverom, bad, gang og bod fordelt på to etasjer.
Produkter og materialer
Vinduer
Fasadevindu i tre
🧱 Tre
Antall: 9
Nye fasadevinduer i tre på alle sider av huset
Dører
Ytterdør i tre
🧱 Tre
Antall: 2
Nye ytterdører i tre i fasadene
Fasade
Trepanelkledning
🧱 Tre
Ny trepanelkledning på alle fasader
Fasadeendring med ny trepanelkledning på eksisterende enebolig
Bruksendring
Rom i 2. etasje
Antall: 1
Bruksendring fra tilleggsdel til hoveddel av rom i 2. etasje
Endring av rombruk i 2. etasje fra tilleggsdel til hoveddel
Grunnarbeid
Ingen nye grunnarbeider
Ingen nye grunnarbeider da det er fasadeendring på eksisterende bygg
Maling
Utvendig maling
Maling av ny trepanelkledning og eventuelle detaljer
Tømrer
Generelt tømrerarbeid
Tømrerarbeid knyttet til fasadeendring og bruksendring
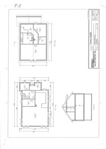
Plantegning
Enebolig 169.0 m²
Etasje 1 118.7 m²
| Rom | Areal | Vinduer | Dører |
|---|---|---|---|
| Stue/spis 101 | 63.2 m² | 4 | 1 |
| Soverom 1 102 | 8.2 m² | 1 | 1 |
| Gang 103 | 9.5 m² | 0 | 2 |
| Bad 104 | 6.7 m² | 0 | 1 |
| Vindfang 105 | 5.8 m² | 1 | 1 |
Etasje 2 50.3 m²
| Rom | Areal | Vinduer | Dører |
|---|---|---|---|
| Soverom 1 201 | 35.9 m² | 1 | 1 |
| Soverom 2 202 | 12.8 m² | 1 | 1 |
| Bad 203 | 12.1 m² | 0 | 1 |
| Gang 204 | 15.0 m² | 0 | 2 |
| Bod 205 | 4.9 m² | 1 | 1 |
Fasader
Enebolig
Nord
- Materiale
- Tre
- Taktype
- Saltak
- Vinduer
- 3
- Dører
- 1
- Synlige etasjer
- 2
Sør
- Materiale
- Tre
- Taktype
- Saltak
- Vinduer
- 2
- Dører
- 0
- Synlige etasjer
- 2
Øst
- Materiale
- Tre
- Taktype
- Saltak
- Vinduer
- 4
- Dører
- 0
- Synlige etasjer
- 2
Vest
- Materiale
- Tre
- Taktype
- Saltak
- Vinduer
- 3
- Dører
- 0
- Synlige etasjer
- 2
Hendelser
21.04.2026
Gbnr 189/3 - Buskumlinna 86 - Fasadeendring og bruksendring - Ferdigattest
20.04.2026
Gbnr 189/3 - Buskumlinna 86 - Søknad om ferdigattest
11.03.2024
Gbnr 189/3 - Buskumlinna 86 - Fasadeendring - Godkjenningsvedtak
06.03.2024
Gbnr 189/3 - Buskumlinna 86 - Søknad om tiltak