FacadeChange UnderBehandling Enebolig

Utskifting av vinduer og bruksendring i kjeller, Elgvegen 21

📍 Elgvegen 21 , 2080 EIDSVOLL

Nøkkelinfo

Sakstype
Fasadeendring
Bygningstype
Enebolig
Bruksareal
159 m²
Boenheter
1
Kommune
Eidsvoll
Fylke
Akershus
Gnr / Bnr
61 / 93
Saksnummer
2026/420
Fase
Under behandling

Om byggesaken

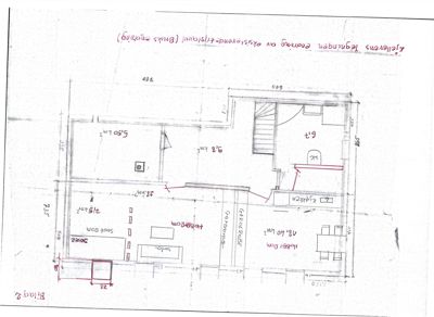
Prosjektet omfatter utskifting av vinduer i kjeller og balkong-/terrassevinduer på en enebolig i Elgvegen 21. Det inkluderer også bruksendring av del av kjeller fra tilleggsdel til hoveddel, med ombygging av rom til soverom og stue. Kjelleren har rom med ventilasjon og rømningsvindu, og romhøyden er 2,1 meter. Soverommet i kjeller justeres til ca. 6,2 m² for å tilfredsstille krav til dagslys og vindusstørrelse. Fasaden består av trekledning med saltak og flatt tak, og vinduene som skal byttes ut er i kjeller og på balkong-/terrassesiden. Det er én trapp i bygget, og det foreligger oppdaterte plantegninger og fasadetegninger som viser endringene.

Produkter og materialer

Dører Balkongdør

🧱 tre eller glass

Antall: 1

Endring fra vindu til balkongdør i fasade

Montering av balkongdør i stedet for vindu som del av fasadeendring

Tømrer Innvendige vegger og justering

🧱 tre/stenderverk

Flytting av vegg i kjeller for å redusere soveromsstørrelse til ca. 6,2 m²

Justering av planløsning i kjeller for å oppfylle krav til romstørrelse og dagslys

Grunnarbeid Ingen spesifikke grunnarbeider

Ingen nye grunnarbeider oppgitt, eksisterende fundament benyttes

Vinduer Kjellervindu

🧱 tre eller PVC

Antall: 2

vindusåpning 80 cm høy og 100 cm bred, tilpasset rømningsvindu og dagslyskrav

Utskifting av kjellervinduer med nye vinduer som tilfredsstiller rømnings- og dagslyskrav

Maling Fasademaling

🧱 trepanel

Maling av trepanel på fasade etter utskifting av vinduer

Vinduer Balkong-/terrassevinduer

🧱 tre eller PVC

Antall: 1

vinduer på balkong-/terrasseside, tilpasset fasadeendring

Utskifting av vinduer i balkong-/terrassefasade

Gulv Kjellergulv

Eventuelle gulvjusteringer i kjeller ved bruksendring

Ventilasjon Ventilasjon i kjellerrom

Ventilasjon i alle kjellerrom, inkludert rømningsvindu

Sikring av tilfredsstillende ventilasjon og rømningsmulighet i kjellerrom

Fasader

Enebolig

Vest
Materiale
Tre
Taktype
Flatt tak
Vinduer
5
Dører
0
Synlige etasjer
1
Sør
Materiale
Tre
Taktype
Saltak
Vinduer
1
Dører
1
Synlige etasjer
1
Nord
Materiale
Tre
Taktype
Saltak
Vinduer
2
Dører
0
Synlige etasjer
1
Øst
Materiale
Tre
Taktype
Flatt tak
Vinduer
3
Dører
1
Synlige etasjer
1
Ukjent
Taktype
Saltak
Vinduer
4
Dører
1
Synlige etasjer
1

Hovedbygg

Ukjent
Vinduer
3
Dører
1
Synlige etasjer
2

Hendelser

21.04.2026 Gbnr. 61/93 - Elgvegen 21 - Supplerende dokumentasjon
20.04.2026 Gbnr. 61/93 - Avklaring mangelbrev
27.03.2026 Gbnr. 61/93 - Elgvegen 21- Mangelbrev - Søknad om bruksendring av del av kjeller
24.03.2026 Gbnr. 61/93 - Tilleggsinformasjon
12.03.2026 Gbnr. 61/93 - Elgvegen 21 - Mangelbrev - Søknad om fasadeendring
03.02.2026 Gbnr. 61/93 - Kvittering for nabovarsel
21.01.2026 Gbnr. 61/93 - Byggesøknad - Utskifting av vinduer i kjeller og balkong-/terrassevinduer