FacadeChange UnderBehandling Enebolig

Fasade- og underbyggendring på enebolig, Furumoen 15

📍 Furumoen 15 , 8100 MISVÆR

Nøkkelinfo

Sakstype
Fasadeendring
Bygningstype
Enebolig
Bruksareal
307 m²
Boenheter
1
Kommune
Bodø
Fylke
Nordland - Nordlánnda
Gnr / Bnr
226 / 113
Saksnummer
2026/15534
Fase
Under behandling

Om byggesaken

Endring av fasade og etablering av underbygg i en enebolig fra 1977 på Furumoen 15. Kjelleren på ca. 98 m², hvor 43,7 m² er innredet, er etablert uten tidligere godkjenning og skal nå godkjennes. Det skal etableres nye rømningsvinduer i kjelleren, og fasadeendringer omfatter justeringer av eksisterende vinduer. Bygningen har saltak og trekledning, med totalt 13 vinduer og 3 dører i fasadene. Tiltaket inkluderer delvis unntak fra TEK17 for energieffektivitet og takhøyde i kjeller, med fokus på å bevare eksisterende konstruksjon og unngå store inngrep i grunn og bæring. Prosjektet omfatter også ventilasjon og isolasjonstiltak i kjeller.

Produkter og materialer

Vinduer Rømningsvinduer i kjeller

Nye vinduer i kjeller som oppfyller TEK17 energikrav, erstatning for eksisterende vinduer

Nye rømningsvinduer i kjeller for å tilfredsstille krav til rømningsmulighet og energieffektivitet

Tak Saltak

🧱 Tre

Eksisterende saltak, ingen endring spesifisert

Tak med saltak på enebolig

Isolasjon Yttervegg og gulv mot grunn

🧱 100 mm isolasjon i yttervegger, noe isolasjon i gulv

Eksisterende isolasjon i yttervegger og gulv, delvis oppgradering vurdert men ikke gjennomført

Isolasjon i yttervegger og gulv i kjeller, delvis unntak fra TEK17 krav

Dører Ytterdører i fasade

🧱 Tre

Antall: 3

Dører i fasade, ingen endring spesifisert

Eksisterende ytterdører i fasade

Tømrer Underbygg og fasadeendring

🧱 Treverk

Arbeid med underbygg og fasadeendringer i tre

Tømrerarbeid knyttet til underbygg og fasadeendringer

Vinduer Eksisterende fasadevinduer

🧱 Tre med tolags glass

Antall: 13

Eksisterende vinduer fra 1977 og senere, med delvis oppgradering

Vinduer i fasade som skal justeres i forbindelse med fasadeendring

Grunnarbeid Ingen nye terrenginngrep

Ingen endringer i terreng eller grunnforhold planlagt

Bevaring av eksisterende grunnforhold uten nye inngrep

Ventilasjon Ventiler i vegger og vinduer i kjeller

Ventilasjon via ventiler i vegger og vinduer for radon og luftskifte

Ventilasjon i kjeller for å redusere radon og sikre luftskifte

Fasade Trekledning

🧱 Tre

Fasade i trekledning med saltak

Fasadeendringer på trekledd enebolig med saltak

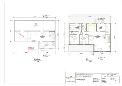
Plantegning

Enebolig 306.7 m²

Etasje 0 120.9 m²

Rom Areal Vinduer Dører
Kjellerstue 100 31.2 m² 0 1
Bod 102 46.2 m² 0 1
Soverom 113 12.5 m² 1 1

Etasje 1 185.8 m²

Rom Areal Vinduer Dører
Soverom 1 104 10.5 m² 1 1
Bad 105 4.2 m² 0 1
Bod 106 2.4 m² 0 1
Soverom 2 107 10.9 m² 1 1
Soverom 3 108 9.1 m² 1 1
Gang 109 4.3 m² 0 4
Stue/kjøkken 110 52.3 m² 1 1
Vaskerom 111 6.3 m² 1 1
Gang 112 7.4 m² 0 1

Fasader

Enebolig

Sør
Materiale
Tre
Taktype
Saltak
Vinduer
5
Dører
1
Synlige etasjer
1
Nord
Materiale
Tre
Taktype
Saltak
Vinduer
5
Dører
1
Balkonger
1
Synlige etasjer
1
Vest
Materiale
Tre
Taktype
Saltak
Vinduer
1
Dører
0
Synlige etasjer
1
Øst
Materiale
Tre
Taktype
Saltak
Vinduer
2
Dører
0
Balkonger
1
Synlige etasjer
1

Hendelser

09.04.2026 Supplering - Furumoen 15
31.03.2026 Ett-trinns søknad - Furumoen 15
31.03.2026 Bekreftelse på mottatt søknad - Furumoen 15