Facade
En håndtegnet fasadetegning som viser eksisterende vestgave med mål og tekstbeskrivelser.
1 / 5
FacadeChange
Soeknad
Enebolig
Fasadeendring og bruksendring i enebolig, Furumoveien 27A
📍 Furumoveien 10A , 3142 VESTSKOGEN
Nøkkelinfo
- Sakstype
- Fasadeendring
- Bygningstype
- Enebolig
- Bruksareal
- 50 m²
- Boenheter
- 1
- Kommune
- Færder
- Fylke
- Vestfold
- Gnr / Bnr
- 128 / 219
- Saksnummer
- 2025/12503
- Fase
- Søknad
Om byggesaken
Endring av fasade og bruksendring i en eksisterende enebolig på Furumoveien 27A. Bygget har et totalt areal på 50,4 m² i kjelleretasjen, med rom som gang, bod, vaskerom/WC og kjellerstue. Fasaden mot sør er i tre med saltak og to vinduer. Prosjektet innebærer endringer som kan inkludere nye vinduer eller dører i yttervegg, samt omdisponering av rom internt uten større konstruksjonsendringer.
Produkter og materialer
Vinduer
Fasadevindu i tre
🧱 tre
Antall: 2
To eksisterende fasadevindu i tre på sørfasade, mulige endringer i forbindelse med fasadeendring
Fasade
Trepanel
🧱 tre
Saltak, trepanel på sørfasade
Trepanel på sørfasade med saltak, del av fasadeendringen
Tømrer
Fasadeendring og innvendige endringer
Arbeid knyttet til fasadeendring og bruksendring i kjelleretasjen
Trapper
Innvendig trapp
Antall: 1
En innvendig trapp i eneboligen
Dører
Innvendige dører
Antall: 6
Dører i kjelleretasjen, totalt 6 dører fordelt på gang, bod, vaskerom og kjellerstue
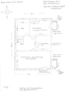
Plantegning
Enebolig 50.4 m²
Etasje 0 50.4 m²
| Rom | Areal | Vinduer | Dører |
|---|---|---|---|
| Gang 001 | 12.6 m² | 0 | 2 |
| Bod 002 | 5.2 m² | 0 | 1 |
| Vaskerom/WC 003 | 4.8 m² | 0 | 2 |
| Kjellerstue 004 | 27.8 m² | 2 | 1 |
Fasader
Kjeller
Sør
- Materiale
- Tre
- Taktype
- Saltak
- Høyde
- 8.4 m
- Vinduer
- 2
- Dører
- 0
- Synlige etasjer
- 1
Hendelser
17.04.2026
Gbnr 128/219 - Furumoveien 27A - Søknad om bruksendring
22.12.2025
Gbnr 128/219 - Furumoveien 27A - Fasadeendring og bruksendring - Nabovarsel