FacadeChange Ferdigattest Enebolig

Fasadeendring og verandautvidelse på Gårdsveien 112, Bleik

📍 Gårdsveien 112 , 8481 BLEIK

Nøkkelinfo

Sakstype
Fasadeendring
Bygningstype
Enebolig
Bruksareal
82 m²
Boenheter
1
Kommune
Andøy
Fylke
Nordland - Nordlánnda
Gnr / Bnr
39 / 114
Saksnummer
2023/1359
Fase
Ferdigattest

Om byggesaken

Prosjektet omfatter fasadeendring på en eksisterende enebolig med nytt vindu mot Gårdsveien og Fiskeværsveien, samt utvidelse av den eksisterende verandaen. Bygningen er en trebygget enebolig med saltak, totalt 82,1 m² i ett plan. Verandaen utvides for å bedre tilgjengelighet og tilrettelegging, blant annet av sosiale og helsehensyn. Fasadeendringen inkluderer nye vinduer som tilpasses eksisterende trefasade. Tiltaket er i tråd med kommuneplanens arealdel, men det er gitt dispensasjon fra reguleringsplanens bestemmelser om bygningsutforming. Det er ikke registrert nabomerknader, og ferdigattest er søkt etter fullført arbeid.

Produkter og materialer

Fasade Trepanel

🧱 tre

Trefasade med saltak, tilpasning til eksisterende materialer

Fasadeendring med trepanel som matcher eksisterende fasade

Grunnarbeid Fundamentering veranda

Fundamentering og underlag for utvidet veranda

Grunnarbeid for å sikre stabilitet i verandautvidelsen

Tømrer Bygningsarbeid

Arbeid med utvidelse av veranda og montering av nye vinduer og fasadeelementer

Tømrerarbeid knyttet til verandautvidelse og fasadeendring

Maling Utvendig maling

🧱 maling for trefasade

Maling av ny og eksisterende trefasade for å sikre estetikk og beskyttelse

Overflatebehandling av trefasade og veranda

Terrasse Verandautvidelse

🧱 tre

Utvidelse av eksisterende veranda for bedre tilgjengelighet og tilrettelegging

Utvidelse av veranda i tre, tilpasset eksisterende konstruksjon

Vinduer Fasadevindu

🧱 tre

Antall: 2

Nye vinduer mot Gårdsveien og Fiskeværsveien, tilpasset eksisterende fasade

Nye fasadevinduer for å erstatte eller supplere eksisterende vinduer i trefasade

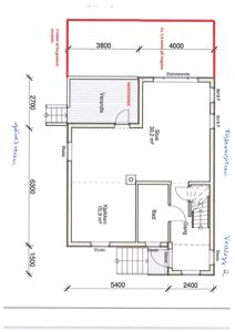
Plantegning

Enebolig 82.1 m²

Etasje 1 82.1 m²

Rom Areal Vinduer Dører
Veranda 0.0 m² 0 1
Stue 30.2 m² 4 1
Kjøkken 10.9 m² 0 1
Bad 0.0 m² 0 2
Gang 0.0 m² 1 3

Fasader

Carport

Vest
Materiale
Tre
Taktype
Saltak
Vinduer
2
Dører
1
Synlige etasjer
1

Enebolig

Ukjent
Materiale
Tre
Taktype
Saltak
Vinduer
2
Dører
1
Synlige etasjer
2

Hendelser

13.04.2026 Melding om mottatt søknad
07.04.2026 Søknad om ferdigattest
26.03.2026 Vi minner om at du må søke om ferdigattest
08.11.2023 Tillatelse til tiltak uten ansvar - gnr 39 bnr 114 - Gårdsveien 112 - Fasadeendring og utvidelse av eksisterende veranda
08.08.2023 Dispensasjonssøknad - Utfordringer i hverdagen
24.03.2023 Søknad om fasaendring og utvidelse av eksisterende veranda
24.03.2023 Oversender søknad til uttalelse - gnr 39 bnr 114 - Gårdsveien 112 - Fasadeendring og utvidelse av eksisterende veranda
23.03.2023 Fasadeendring og utvidelse av eksisterende veranda