FacadeChange Unknown Enebolig

Utvidelse av balkong på tomannsbolig i H B Haraldsens gate 10

📍 H B Haraldsens gate 10 , 3188 HORTEN

Nøkkelinfo

Sakstype
Fasadeendring
Bygningstype
Enebolig
Bruksareal
205 m²
Boenheter
2
Kommune
Horten
Fylke
Vestfold
Gnr / Bnr
132 / 34
Saksnummer
2025/18526
Fase
Unknown

Om byggesaken

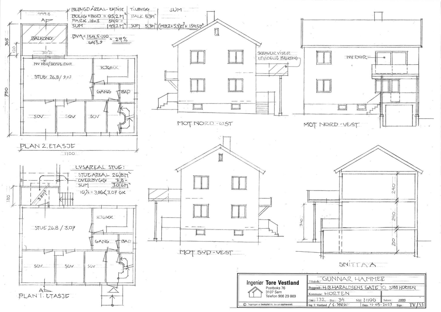
Utvidelse av eksisterende balkong i andre etasje på tomannsbolig i H B Haraldsens gate 10. Balkongen plasseres nærmere nabogrense enn hovedregelen på fire meter, og tiltaket omfatter fundamentering på forstøtningsmurer av betong. Prosjektet berører felles uteareal for bo-sameiet med to seksjoner. Det er dokumentert at lysforhold i naboleilighet fortsatt oppfyller kravene. Tiltaket har møtt nabomotstand knyttet til fundamentering og redusert lysinnslipp, og er foreløpig ikke godkjent på grunn av manglende nabosamtykke og avslag på dispensasjonssøknad.

Produkter og materialer

Balkong Utvidet balkong i andre etasje

Antall: 1

Balkong fundamentert på forstøtningsmurer av betong, utvidelse av eksisterende balkong

Utvidelse av balkong i andre etasje med fundamentering på betongmurer

Vinduer Fasadevindu

Antall: 4

Totalt 4 vinduer i bolig fordelt på to etasjer

Eksisterende vinduer i fasade som kan berøres av balkongutvidelse

Tømrer Balkongkonstruksjon

Utvidelse av balkongkonstruksjon i andre etasje

Tømrerarbeid knyttet til balkongutvidelse

Grunnarbeid Fundamentering på forstøtningsmur

🧱 Betong

Fundamentering av balkongsøyler på betong forstøtningsmur

Fundamentering for balkongutvidelse på eksisterende betongmur

Fasade Endring av fasade ved balkongutvidelse

Fasadeendring knyttet til balkongutvidelse på tomannsbolig

Fasadeendring som følge av utvidelse av balkong

Dører Balkongdør

Antall: 2

Dører til balkong i andre etasje

Dører som gir tilgang til balkong som utvides

Maling Fasademaling

Maling av fasade etter balkongutvidelse

Overflatebehandling av fasade etter endring

Plantegning

Enebolig 205.2 m²

Etasje 1 110.0 m²

Rom Areal Vinduer Dører
Stue 101 26.8 m² 2 1
Kjøkken 102 0.0 m² 0 1
Gang 103 0.0 m² 0 2
Bad 104 0.0 m² 0 1
Sov 105 0.0 m² 0 1
Sov 106 0.0 m² 0 1
Sov 107 0.0 m² 0 1

Etasje 2 95.2 m²

Rom Areal Vinduer Dører
Stue 201 26.8 m² 2 1
Kjøkken 202 0.0 m² 0 1
Gang 203 0.0 m² 0 2
Bad 204 0.0 m² 0 1
Sov 205 0.0 m² 0 1
Sov 206 0.0 m² 0 1
Sov 207 0.0 m² 0 1

Hendelser

21.04.2026 132/34 - H B Haraldsens gate 10 - endring av fasade - klage på vedtak 26/136 og 26/137 - bekrefter mottak av klage
31.03.2026 132/34 - H B Haraldsens gate 10 - endring av fasade - klage på vedtak 26/136 og 26/137
19.03.2026 132/34 - H B Haraldsens gate 10 - endring av fasade - anmodning om tilsyn og oppfølging
17.03.2026 132/34 - H B Haraldsens gate 10 - endring av fasade - klagebehandling - vedtak oppheves
17.03.2026 132/34 - H B Haraldsens gate 10 - endring av fasade - søknad avvist - vedtak
17.03.2026 132/34 - H B Haraldsens gate 10 - endring av fasade - dispensasjon fra krav til nabosamtykke - avslag - vedtak