Rendering
3D-visualiseringer av en bolig med omgivelser (hage, møbler, personer) fra ulike vinkler.
1 / 4
FacadeChange
Ferdigattest
Enebolig
Fasadeendring og bruksendring med brannskille i Idrettsveien 42, Bergen
📍 Idrettsveien 42 , 5063 BERGEN
Nøkkelinfo
- Sakstype
- Fasadeendring
- Bygningstype
- Enebolig
- Bruksareal
- 66 m²
- Boenheter
- 1
- Kommune
- Bergen
- Fylke
- Vestland
- Gnr / Bnr
- 162 / 850
- Saksnummer
- BYGG-2023/13752
- Fase
- Ferdigattest
Om byggesaken
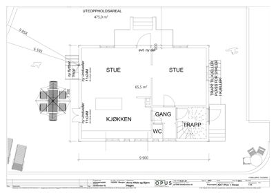
Prosjektet omfatter fasadeendring og bruksendring i en enebolig på 65,5 m² i Idrettsveien 42, Bergen. Det er etablert nye vindusdører i 1. etasje stue og seks takvinduer i loftsetasje. Innvendig er det etablert brannskille, men utvendig rømningsvei er ikke etablert. Taket er omtekket, og det er montert brannvinduer og balkongdører. Bygget har to stuer, kjøkken, gang og WC i 1. etasje, med en trapp til loftsetasje. Tiltaket inkluderer også oppdatering av brannkonsept og gjennomføringsplan. Fasadeendringene er ferdigstilt og det er søkt om ferdigattest for disse arbeider.
Produkter og materialer
Brannvern
Brannskille
Antall: 1
Innvendig brannskille i bolig
Etablering av innvendig brannskille i bolig
Grunnarbeid
Avfallshåndtering
Avfallsrapport med sortering av trevirke og isolasjon
Håndtering og sortering av byggeavfall
Dører
Balkongdører
Montering av balkongdører
Vinduer
Brannvinduer
Montering av brannvinduer i forbindelse med brannskille
Fasade
Fasadeendring
Antall: 1
Endring av fasade med nye vindusdører og takvinduer
Fasadeendring med nye vindusdører og takvinduer
Tak
Omtekking av tak
Antall: 1
Omtekking av tak på bolig
Tømrer
Ombygging og montering
Tømrerarbeid knyttet til fasadeendring og brannskille
Dører
Vindusdører i stue 1. etasje
Antall: 2
To nye vindusdører i stue i 1. etasje
Trapper
Innvendig trapp
Antall: 1
Eksisterende innvendig trapp til loftsetasje
Vinduer
Takvinduer
Antall: 6
Seks nye takvinduer i loftsetasje
Plantegning
Enebolig 65.5 m²
Etasje 1 65.5 m²
| Rom | Areal | Vinduer | Dører |
|---|---|---|---|
| STUE 101 | 32.8 m² | 2 | 1 |
| STUE 102 | 32.8 m² | 2 | 1 |
| KJØKKEN 103 | 15.0 m² | 1 | 1 |
| GANG 104 | 5.0 m² | 0 | 1 |
| WC 105 | 2.0 m² | 0 | 1 |
Hendelser
13.04.2026
Idrettsveien 42, foreløpig tilbakemelding på søknad Ferdigattest
26.03.2026
Idrettsveien 42 Supplering av søknad 162/850
26.03.2026
Idrettsveien 42 Søknad om ferdigattest 162/850
21.01.2025
Igangsettingstillatelse (1) - 162/850, Idrettsveien 42
10.01.2025
Søknad om igangsettingstillatelse- 162/850/0/0 Idrettsveien 42, endring av bygg - innvendig - Brannskille i bygg
05.09.2023
Gebyr 2023 - 162/850 Idrettsveien 42,
05.09.2023
ubw ordre 20623587
31.08.2023
Delvis rammetillatelse på vilkår - 162/850, Idrettsveien 42, bruksendring og fasadeendring bolig
30.08.2023
Orientering - 162/850/0/0 Idrettsveien 42, endring av bygg - innvendig - Brannskille i bygg
30.08.2023
Ber om en ukes ekstra frist for saksbehandling - 162/850/0/0 Idrettsveien 42, endring av bygg - innvendig - Brannskille i bygg
30.08.2023
Viser til innsendt tilleggsinformasjon - 162/850/0/0 Idrettsveien 42, endring av bygg - innvendig - Brannskille i bygg
28.08.2023
Idrettsveien 42 Supplering av søknad 162/850
15.08.2023
Utsatt frist for tilleggsopplysninger- 162/850/0/0 Idrettsveien 42, endring av bygg - innvendig - Brannskille i bygg
14.08.2023
Ber om utsettelse frist til innsending tilleggsopplysninger - 162/850/0/0 Idrettsveien 42, endring av bygg - innvendig - Brannskille i bygg
02.08.2023
Byantikvarens uttale- 162/850/0/0 Idrettsveien 42, endring av bygg - innvendig - Brannskille i bygg
02.08.2023
Tilleggskommentar- 162/850/0/0 Idrettsveien 42, endring av bygg - innvendig - Brannskille i bygg
28.07.2023
Byantikvarens uttale. Gnr 162 bnr 850, Idrettsveien 42, fasadeendring og bruksendring
12.07.2023
Tilbakemelding og bekreftelse utsatt frist for innsending tilleggsopplysninger til 14.08.2023 - 162/850/0/0 Idrettsveien 42, endring av bygg - innvendig - Brannskille i bygg
05.07.2023
Ber om tilbakemelding - 162/850/0/0 Idrettsveien 42, endring av bygg - innvendig - Brannskille i bygg
23.06.2023
Bekreftelse på mottatt søknad, varsel om fristforlengelse og behov for tilleggsopplysninger. Gnr 162 bnr 850, Idrettsveien 42, fasadeendring og bruksendring
23.06.2023
Intern høring BYAN. Gnr 162 bnr 850, Idrettsveien 42, fasadeendring og bruksendring
08.06.2023
Idrettsveien 42 Søknad om tillatelse i ett trinn 162/850
—