FacadeChange UnderBehandling Enebolig

Fasadeendring og tilbygg på enebolig i Johs Bergersens vei 12B

📍 Johs Bergersens vei 12A , 1653 SELLEBAKK

Nøkkelinfo

Sakstype
Fasadeendring
Bygningstype
Enebolig
Bruksareal
86 m²
Boenheter
1
Kommune
Fredrikstad
Fylke
Østfold
Gnr / Bnr
610 / 128
Saksnummer
2026/8709
Fase
Under behandling

Om byggesaken

Prosjektet omfatter fasadeendring og oppføring av et lite tilbygg på ca. 5 m² til en eksisterende enebolig i Johs Bergersens vei 12B. Tilbygget plasseres i tilknytning til eksisterende bygningskropp og får en terrasse over som fungerer som en liten balkong tilknyttet soverommet. Fasadeendringen innebærer oppgradering av overflater og utskifting av vinduer med et uttrykk inspirert av bygningens opprinnelige sveitserstil, for å gi et mer helhetlig og arkitektonisk gjennomarbeidet uttrykk. Bygningen har saltak med teglstein, trekledning og flere balkonger. Prosjektet inkluderer også delvis inngjerding av eiendommen. Tiltaket er lite og vurderes å ha begrenset påvirkning på grunnforhold og kulturmiljø, men må tilpasses byantikvarens anbefalinger for å bevare områdets karakter.

Produkter og materialer

Grunnarbeid Minimale terrenginngrep

Terrenginngrep hovedsakelig for hånd, minimal masseforflytning, erstatning med leirekonstruksjoner

Grunnarbeid for tilbygg med minimal påvirkning på grunnforhold og stabilitet

Tilbygg Lite tilbygg

Antall: 1

Tilbygg på ca. 5 m² med terrasse/balkong over

Oppføring av lite tilbygg med terrasse over som balkong til soverom

Balkong Terrasse/balkong over tilbygg

Antall: 1

Terrasse som fungerer som liten balkong tilknyttet soverommet

Ny balkong over tilbygget for økt uteareal og lysinnslipp

Tak Saltak med teglstein

🧱 Teglstein

Eksisterende saltak med teglstein, opprettholdes og tilpasses tilbygg

Taktekking med teglstein på saltak, inkludert oppløft i tak for bedre lys

Tømrer Bygningskonstruksjon tilbygg

🧱 Tre

Konstruksjon av tilbygg i tre med tilpasset detaljering

Tømrerarbeid for oppføring av tilbygg og tilpasning til eksisterende bygg

Gjerde Inngjerding av eiendom

Delvis inngjerding av eiendommen

Oppføring av gjerde rundt deler av tomten

Vinduer Utskifting av vinduer

Antall: 9

Vinduer med referanse til sveitserstil, to-fags vinduer eller krysspostvinduer anbefalt av byantikvar

Utskifting av eksisterende vinduer for å forbedre fasadens estetikk og lysforhold

Fasade Trekledning

🧱 Tre

Oppgradering av fasadens overflater med inspirasjon fra sveitserstil

Oppgradering og detaljering av trekledde fasader for å gi et helhetlig arkitektonisk uttrykk

Elektro Elektrisk installasjon

Elektrisk installasjon i tilbygg og oppgraderinger i eksisterende bolig

VVS VVS installasjoner

VVS-arbeider knyttet til tilbygg og eventuell oppgradering av eksisterende bad/kjøkken

Isolasjon Isolasjon i tilbygg

Isolasjon i vegger og tak i tilbygg for å oppfylle TEK17 krav

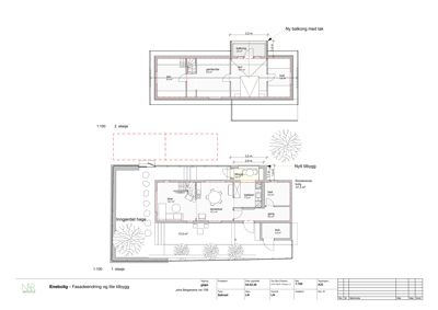
Plantegning

Enebolig 17.5 m²

Etasje 1 13.9 m²

Rom Areal Vinduer Dører
Stue 101 13.7 m² 0 0
Spisestue 102 13.1 m² 0 0
Kjøkken 103 7.3 m² 0 0
Bad 104 5.5 m² 0 0
Gang 105 6.8 m² 0 0
Bod 106 3.9 m² 0 0
Tilbygg 107 3.4 m² 0 0

Etasje 2 3.6 m²

Rom Areal Vinduer Dører
Sov 201 6.9 m² 0 0
Garderobe 202 9.5 m² 0 0
Sov 203 10.7 m² 0 0
Bod 204 3.8 m² 0 0
Balkong 205 3.6 m² 0 0

Fasader

Enebolig

Nord
Materiale
Tre
Taktype
Saltak
Takmat.
Tegl
Høyde
5.7 m
Mønehøyde
8.2 m
Vinduer
4
Dører
0
Balkonger
1
Synlige etasjer
2
Øst
Materiale
Tre
Taktype
Saltak
Takmat.
Tegl
Vinduer
1
Dører
0
Balkonger
1
Synlige etasjer
2
Vest
Materiale
Tre
Taktype
Saltak
Takmat.
Tegl
Vinduer
2
Dører
1
Balkonger
1
Synlige etasjer
2
Sør
Materiale
Tre
Taktype
Saltak
Takmat.
Tegl
Vinduer
2
Dører
2
Synlige etasjer
1

Hendelser

17.04.2026 Mangelfull søknad - Fasadeendring, Tilbygg inntil 50 m² - Johs Bergersens vei 12B - Eiendom 610/128/0/2
15.04.2026 Anmodning om status i saken og spørsmål om forventet behandlingstid - Johs Bergersens vei 12B - Eiendom 610/128/2 - Fasadeendring, Tilbygg inntil 50 m²
13.04.2026 Spørsmål om status i sak - Johs Bergersens vei 12B
18.03.2026 Ett-trinns søknad - Johs Bergersens vei 12B - Eiendom 610/128/2 - Fasadeendring, Tilbygg inntil 50 m²
18.03.2026 Bekreftelse på mottatt søknad - Ett-trinns søknad - Fasadeendring, Tilbygg inntil 50 m² - Johs Bergersens vei 12B - Eiendom 610/128/0/2