FacadeChange UnderBehandling Enebolig

Fasadendring, bruksendring og ny garasje i Lilandsvegen 46, Bergen

📍 Lilandsvegen 46 , 5258 BLOMSTERDALEN

Nøkkelinfo

Sakstype
Fasadeendring
Bygningstype
Enebolig
Boenheter
1
Kommune
Bergen
Fylke
Vestland
Gnr / Bnr
65 / 0
Saksnummer
BYGG-2026/00088
Fase
Under behandling

Om byggesaken

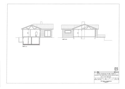
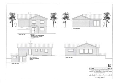
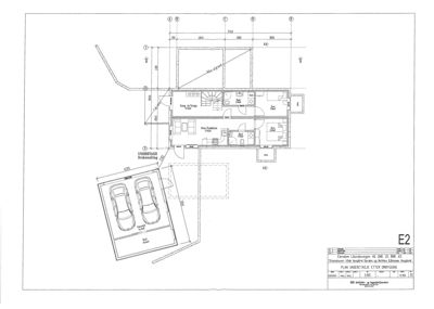
Prosjektet omfatter omfattende fasadeendringer på en eksisterende enebolig fra 1966 i Lilandsvegen 46, inkludert utvidelse og flytting av vinduer og dører i underetasjen, samt endring av kledning til liggende panel. Kjelleretasjen bygges om fra tilleggsdel til hoveddel med ny hovedinngang, stue, kjøkken, bad, vaskerom og to soverom, med innvendig takhøyde på 2,36 meter. Eksisterende garasje fra 1977 rives og erstattes med ny frittstående garasje i tre med saltak og flatt tak, gesimshøyde ca. 2,4 meter og mønehøyde opptil 3,5 meter. Terrenginngrep inkluderer rehabilitering og oppføring av støttemur i betong med høyde 2 meter, samt terrengheving for bedre uteoppholdsareal. Det etableres balansert ventilasjon i kjeller, og det skal utføres elektro- og rørleggerarbeider i våtrom. Tiltakshaver er selvbygger med dokumentert kompetanse og benytter kvalifiserte foretak for fagområder som elektro, rør og mur.

Produkter og materialer

VVS Rørleggerarbeider i våtrom

Nye vann- og avløpsinstallasjoner for to bad og vaskerom i underetasje

VVS-installasjoner i forbindelse med bruksendring og oppgradering av våtrom

Fasade Liggende kledning

🧱 Tre

Ny liggende kledning på fasade, mer historisk korrekt og enklere å vedlikeholde

Fasadeendring med utskifting av kledning på enebolig

Elektro Elektroinstallasjoner

Nytt elektrisk anlegg i underetasje og øvrige deler av bolig

Elektroarbeider i bolig i forbindelse med ombygging og bruksendring

Trapper Innvendig trapp i gang med trapp

Antall: 1

Trapp i gang mellom etasjer i enebolig

Innvendig trapp i bolig

Garasjeport Garasjeport i ny frittstående garasje

🧱 Tre

Antall: 1

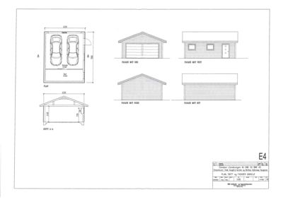
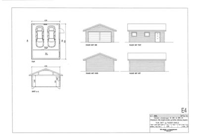
Garasje med saltak og flatt tak, gesimshøyde 2,4 m, mønehøyde 3,5 m

Garasjeport for ny garasje som erstatter eksisterende garasje

Vinduer Fasadevindu i underetasje

🧱 3-lags energiglass

Antall: 3

Nye vinduer i kjellervegg, inkludert utvidelse og flytting av vindusåpninger for forskriftsmessig dagslys og rømningsvei

Vinduer for underetasje i enebolig, tilpasset fasadeendring og bruksendring

Tømrer Tømrerarbeider utvendig og innvendig

🧱 Tre

Ombygging av kjeller, fasadeendringer, oppføring av ny garasje

Tømrerarbeider i bolig og garasje

Dører Ytterdør i underetasje

🧱 Tre/isolert

Antall: 1

Ny hovedinngangsdør flyttet til underetasje med takoverbygg

Ytterdør for ny hovedinngang i kjeller

Ventilasjon Balansert ventilasjon i kjeller

Prosjektert balansert ventilasjon for underetasje

Ventilasjonssystem for nytt oppholdsareal i kjeller

Grunnarbeid Terrenginngrep og grunnarbeid

Terrengheving og grunnarbeid i forbindelse med støttemur og uteoppholdsareal

Grunnarbeid for terrengjustering og murarbeid

Mur Støttemur i betong

🧱 Betong

Rehabilitering og oppføring av ny støttemur med høyde 2 meter langs vei og terrengheving

Forstøtningsmur og terrenginngrep

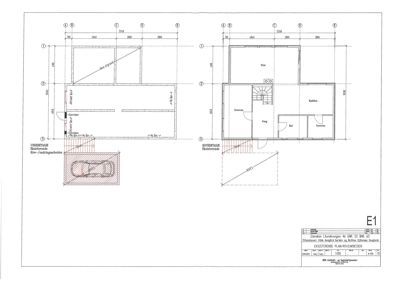
Plantegning

Enebolig 0.0 m²

Etasje 0 0.0 m²

Rom Areal Vinduer Dører
Garasje 001 0.0 m² 0 0
Gang m/trapp Gang m/trapp 18.5 m² 0 2
Stue/kjøkken Stue/kjøkken 17.6 m² 1 1
Bad Bad 3.5 m² 0 1
Sov. Sov. 8.5 m² 1 1
Terk Terk 0.0 m² 0 0
Area Area 0.0 m² 0 0

Etasje 1 0.0 m²

Rom Areal Vinduer Dører
Stue 101 0.0 m² 0 0
Soverom 102 0.0 m² 0 0
Gang 103 0.0 m² 0 0
Kjøkken 104 0.0 m² 0 0
Bad 105 0.0 m² 0 0
Soverom 106 0.0 m² 0 0

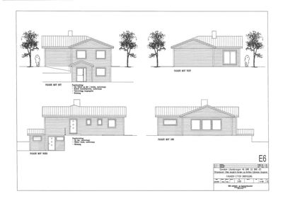
Fasader

Garasje

Sør
Materiale
Tre
Taktype
Saltak
Høyde
2.4 m
Mønehøyde
3.5 m
Vinduer
0
Dører
0
Synlige etasjer
1
Vest
Materiale
Tre
Taktype
Flatt tak
Høyde
2.4 m
Mønehøyde
2.4 m
Vinduer
2
Dører
1
Synlige etasjer
1
Nord
Materiale
Tre
Taktype
Saltak
Høyde
2.4 m
Mønehøyde
3.5 m
Vinduer
0
Dører
0
Synlige etasjer
1
Øst
Materiale
Tre
Taktype
Flatt tak
Høyde
2.4 m
Mønehøyde
2.4 m
Vinduer
0
Dører
0
Synlige etasjer
1

Hendelser

10.04.2026 Søknad om igangsettingstillatelse - 111/65/0/0 Lilandsvegen 46, fasadendring og bruksenring bolig, nybygg/riving garasje, terrenginngrep
09.04.2026 Rammetillatelse. 111/65. Lilandsvegen 46
02.04.2026 Godkjent dispensasjon fra Vestland Fylkeskommune - 111/65/0/0 Lilandsvegen 46, fasadendring og bruksenring bolig, nybygg/riving garasje, terrenginngrep
11.03.2026 Tilleggsopplysninger
25.02.2026 Mangelbrev
07.01.2026 Bekreftelse på mottatt søknad
08.12.2025 Søknad - 111/65/0/0 Lilandsvegen 46, bruksendring bolig mm