FacadeChange Soeknad Enebolig

Fasadeendring og integrert garasje på Løddesølveien 469, Arendal

📍 Løddesølveien 469 , 4821 RYKENE

Nøkkelinfo

Sakstype
Fasadeendring
Bygningstype
Enebolig
Bruksareal
366 m²
Boenheter
1
Kommune
Arendal
Fylke
Agder
Gnr / Bnr
413 / 6
Saksnummer
2026/12543
Fase
Søknad

Om byggesaken

Prosjektet omfatter oppføring av en integrert garasje på ca. 40 m² i tilknytning til en eksisterende enebolig fra 1987 på Løddesølveien 469. Garasjen bygges i betong med saltak og får veranda på taket. Det gjennomføres fasadeendringer, blant annet ombygging av vindu til dør for adkomst til garasje. Underetasjen i boligen omdisponeres fra tidligere uregistrert utleiedel til integrert del av hovedboligen med ny planløsning som inkluderer bad, teknisk rom, vaskerom, soverom og oppholdsrom. Det utføres omfattende bygningsmessige utbedringer som etterisolering av yttervegger, loft og kjeller, utskifting av vinduer og dører til 3-lags energiglass, samt rehabilitering av skorstein med isolert stålrør. Det installeres balansert ventilasjon med varmegjenvinning og vannbåren gulvvarme basert på luft-til-vann varmepumpe. Tiltaket inkluderer også ny drenering rundt bygget og oppgradering av teknisk standard i henhold til TEK17. Totalt areal for eneboligen er ca. 366 m², og underetasjen ca. 103 m². Garasjen har direkte adkomst til underetasjen via branndør.

Produkter og materialer

Grunnarbeid Drenering og grunnarbeid

🧱 Drensrør, dreneringsmaterialer

Etablering av fullverdig drenering rundt bygningen, inkludert legging av drensrør

Nytt dreneringssystem for å hindre fuktproblemer

Betong Fundament og grunnmur for garasje

🧱 Betong

Fundament og grunnmur i betong for ny garasje

Bygging av fundament og grunnmur for integrert garasje

Pipe Rehabilitering av skorstein med isolert stålrør

🧱 Isolert stålrør

Antall: 1

Isolert stålrør innført i eksisterende pipeløp for brannsikkerhet

Rehabilitering av eksisterende skorstein

Ventilasjon Balansert ventilasjon med varmegjenvinning

Balansert ventilasjon i alle oppholdsrom

Installasjon av balansert ventilasjon for bedre inneklima og energieffektivitet

Dører Ytterdører med 3-lags glass og brannmotstand

Antall: 5

U-verdi 0,83, brannmotstand EI30 for branndør

Utskifting av ytterdører og branndør til garasje

Isolasjon Utvendig etterisolering av vegger og kjeller

🧱 XPS-plater og annen isolasjon

Minst 50 mm utvendig påforing på kjeller, total isolasjonstykkelse 150 mm, utvendig etterisolering av yttervegger

Etterisolering av kjeller og yttervegger for bedre energieffektivitet

Garasjeport Integrert garasje i betong med saltak

🧱 Betong, saltak

Antall: 1

Garasje BYA ca. 40 m² med veranda på tak

Ny integrert garasje med tilhørende veranda på taket

VVS Vannbåren gulvvarme og sanitærinstallasjoner

Vannbåren gulvvarme i begge etasjer basert på luft-til-vann varmepumpe, innvendig sanitærinstallasjon

Oppgradering av varmesystem og sanitærinstallasjoner

Vinduer 3-lags energiglass vinduer

Antall: 14

U-verdi 0,8-1,2, 3-lags energiglass

Utskifting av alle vinduer til energieffektive 3-lags vinduer

Tak Saltak med isolasjon

🧱 Isolasjon, taktekking

Antall: 1

Etterisolering av kaldt loft med total tykkelse 400 mm

Isolasjon og taktekking på ny garasje og eksisterende tak

Fasade Fasadeendring med ny dør i eksisterende veggåpning

🧱 Tre

Antall: 1

Endring av vindu til dør med brannmotstand EI30 og tetting mot bolig

Fasadeendring på sørfasade med ny branndør til garasje

Tømrer Trekonstruksjoner for bolig og garasje

🧱 Tre

Montering av trekonstruksjoner i bolig og garasje

Tømrerarbeid for boligoppgradering og garasjeoppføring

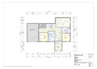
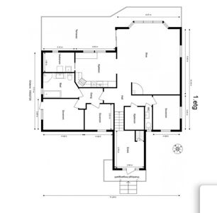
Plantegning

Enebolig 366.3 m²

Etasje 0 100.4 m²

Rom Areal Vinduer Dører
Diplom D-01 30.4 m² 0 1
Diplom D-02 29.5 m² 0 1
Bod B-01 11.5 m² 0 1
Bod B-02 10.5 m² 0 1
Bod B-03 9.0 m² 0 1
Bod B-04 3.7 m² 0 1
Kjøkken K-01 9.0 m² 0 2
Gang G-01 8.0 m² 0 0
Rengjøringsrom R-01 7.0 m² 0 1

Etasje 2 115.6 m²

Rom Areal Vinduer Dører
Kjøkken/Stue 201 85.0 m² 3 2
Soverom 202 15.6 m² 1 1
Bad 203 9.5 m² 0 1
Bod 204 5.5 m² 1 1

Etasje 1 150.3 m²

Rom Areal Vinduer Dører
Stue 101 28.3 m² 1 1
Kjøkken 102 10.4 m² 0 1
Gang 103 4.0 m² 0 2
Vaskerom 104 4.2 m² 0 1
Bad 105 4.0 m² 0 1
Soverom 106 11.0 m² 1 1
Soverom 107 11.0 m² 1 1
Soverom 108 11.0 m² 1 1
Soverom 109 11.0 m² 1 1
Entré 110 3.2 m² 0 1
WC 111 2.7 m² 0 1
Terrasse 112 16.0 m² 0 0

Underetasje 103.4 m²

Etasje 0 103.4 m²

Rom Areal Vinduer Dører
Stue 001 33.0 m² 1 1
Soverom 002 12.0 m² 1 1
Soverom 003 12.0 m² 1 1
Kjøkken 004 12.0 m² 1 1
Bad 005 4.0 m² 0 1
Gang 006 10.0 m² 0 0
Entré 007 10.0 m² 0 1
Bod 008 10.0 m² 1 1

Fasader

Enebolig

Vest
Materiale
Tre
Taktype
Saltak
Vinduer
3
Dører
1
Synlige etasjer
1
Nord
Materiale
Tre
Taktype
Saltak
Vinduer
3
Dører
1
Synlige etasjer
2
Sør
Materiale
Tre
Taktype
Saltak
Vinduer
3
Dører
1
Synlige etasjer
1
Øst
Materiale
Tre
Taktype
Saltak
Vinduer
2
Dører
1
Synlige etasjer
1

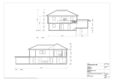
Hovedbygg

Sørvest
Taktype
Saltak
Høyde
6.5 m
Mønehøyde
8.2 m
Vinduer
0
Dører
0
Synlige etasjer
2

Hendelser

21.04.2026 Løddesølveien 469, melding om mottatt søknad
20.04.2026 Løddesølveien 469 Søknad om tillatelse i ett trinn 413/6