FacadeChange UnderBehandling Enebolig

Fasadeendring og inngangsoppgradering i Neumanns gate 5, Drammen

📍 Neumanns gate 5 , 3044 DRAMMEN

Nøkkelinfo

Sakstype
Fasadeendring
Bygningstype
Enebolig
Bruksareal
265 m²
Boenheter
1
Kommune
Drammen
Fylke
Buskerud
Gnr / Bnr
111 / 486
Saksnummer
25/34152
Fase
Under behandling

Om byggesaken

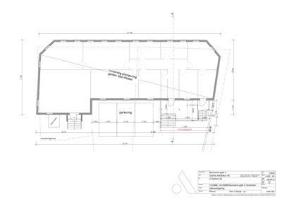
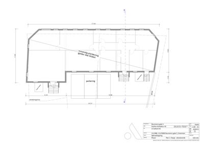
Prosjektet omfatter omfattende fasadeendringer på en eksisterende enebolig i Neumanns gate 5, Drammen, med et samlet areal på ca. 265 m². Tiltaket inkluderer utskifting av alle vinduer med nye i tre som følger byggets opprinnelige arkitektoniske uttrykk, oppgradering av inngangspartier med nye dører, trapper, terrasse og takoverbygg i tre, samt ny ytterkledning med stående dobbelfalset panel. Fasaden males i grønne nyanser med perlehvit ramme, og taket fornyes med ny takkonstruksjon og takpanner. Tiltaket er nøye tilpasset det omkringliggende kulturmiljøet, og det er søkt dispensasjon for plassering nærmere nabogrense og byggegrenser mot vei. Prosjektet innebærer en marginal økning i bebygd areal og har fokus på å bevare byggets historiske karakter samtidig som funksjonalitet og sikkerhet forbedres.

Produkter og materialer

Fasade Ny ytterkledning og maling

🧱 Stående dobbelfalset trekledning

Trekledning males i lys grønn, sørfasade i mørkere tone, vinduer i mørk grønn med perlehvit ramme, terrasse og trapp i grå toner

Oppgradering av fasade med ny kledning og fargevalg tilpasset kulturmiljø

Trapper Utvendige trapper ved inngangspartier

🧱 Tre

Antall: 2

Nye trapper i tre med rekkverk, oppført iht. gjeldende tekniske krav

Nye trapper til inngangspartier med forbedret sikkerhet og funksjonalitet

Dører Nye inngangsdører med glassfelt

🧱 Tre med glassfelt

Antall: 4

Dører med glassfelt for bedre lysinnslipp, tilpasset fasadens arkitektur

Nye dører til hovedinngang og inngang til 2. etasje

Annet Dispensasjonssøknader og nabovarsling

Søknad om dispensasjon fra avstandskrav mot nabogrense og byggegrenser mot fylkesvei og europavei, nabovarsel sendt og kvittert

Nødvendig for lovlig gjennomføring av tiltaket

Terrasse Terrasse foran inngangspartier

🧱 Tre

Antall: 1

Felles terrasse i tre med sitteplass, overdekket med tak tilpasset byggets arkitektur

Terrasse med trapp ned til bakkenivå, delvis løftbar for kjelleradkomst

Vinduer Utskifting av vinduer i 1. og 2. etasje

🧱 Tre

Antall: 22

Vinduer med samme sprosseinndeling som opprinnelige, malt i grønn NCS S 7020-G10Y med perlehvit ramme (10416)

Nye trevinduer tilpasset byggets opprinnelige arkitektoniske uttrykk

Tak Nytt saltak med takpanner

🧱 Tegl takpanner

Antall: 1

Ny takkonstruksjon og taktekking med takpanner, flatt tak mellom bygningene beholdes uendret

Fornyelse av eksisterende saltak

Grunnarbeid Oppmåling av eiendomsgrenser

Oppmåling av eiendomsgrenser for å dokumentere avstand til nabogrense

Nødvendig for å sikre lovlig plassering av tiltaket

Fasader

Enebolig

Vest
Materiale
Tre
Taktype
Saltak
Takmat.
Tegl
Høyde
7.6 m
Mønehøyde
10.2 m
Vinduer
4
Dører
0
Synlige etasjer
2
Nord
Materiale
Tre
Taktype
Saltak
Takmat.
Tegl
Høyde
8.1 m
Mønehøyde
10.8 m
Vinduer
12
Dører
1
Synlige etasjer
2
Sør
Materiale
Tre
Taktype
Saltak
Takmat.
Tegl
Høyde
7.8 m
Mønehøyde
10.8 m
Vinduer
8
Dører
2
Balkonger
1
Synlige etasjer
2
Øst
Materiale
Tre
Taktype
Saltak
Takmat.
Tegl
Høyde
7.6 m
Mønehøyde
10.8 m
Vinduer
2
Dører
1
Balkonger
1
Synlige etasjer
2

Hendelser

09.04.2026 Neumanns gate 5 - Forespørsel om status - dispensasjon fra avstandskrav mot vei
27.03.2026 Neumanns gate 5 Supplering av søknad 111/486
24.03.2026 Neumanns gate 5 Supplering av søknad 111/486
23.03.2026 Neumanns gate 5 Supplering av søknad 111/486
19.03.2026 Neumanns gate 5, svar på anmodning om uttalelse - søknad om dispensasjon
05.03.2026 Neumanns gate 5, anmodning om uttalelse fra Statens Vegvesen
05.03.2026 Neumanns gate 5, svar fra Drammen kommune avd. Samferdsel, vei og park
05.03.2026 Neumanns gate 5, ber om avklaring vedr. dispensasjonssøknaden
20.02.2026 Neumanns gate 5 Supplering av søknad 111/486
06.02.2026 Neumanns gate 5 - Tordenskiolds gate 114 , Dispensasjon fra plankrav og avstandskrav mot Fv. 2728 - Europavei E18 - Dispensasjonssøknad - Tilbakemelding fra fylkeskommunen
29.01.2026 Tordenskiolds gate 114, søknad om dispensasjon fra byggegrense
16.01.2026 Neumanns gate 5, utsettelse av frist for ytterligere opplysninger
16.01.2026 Neumanns gate 5, fristutsettelse til 15.05.2026
13.01.2026 111/486, Neumanns gate 5 - Fasadeendring - Fylkeskommunens uttalelse
08.01.2026 Neumanns gate 5 - avklaringer
22.12.2025 Neumanns gate 5, vi trenger flere opplysninger for å behandle søknaden din
19.12.2025 Gnr/Bnr 111/486, Neumanns gate 5 - spørsmål til bestemmelser i kommuneplanens arealdel
15.12.2025 Neumanns gate 5, anmodning om uttalelse fra Buskerud fylkeskommune
08.12.2025 Neumanns gate 5, ønsker oppdatring på søknaden om rammetillatelse
13.09.2025 Neumanns gate 5, melding om mottatt søknad
12.09.2025 Neumanns gate 5 Søknad om rammetillatelse 111/486