FacadeChange UnderBehandling Enebolig

Fasadeendring og bruksendring i enebolig, Olsvikveien 168

📍 Olsvikveien 168 , 5184 OLSVIK

Nøkkelinfo

Sakstype
Fasadeendring
Bygningstype
Enebolig
Bruksareal
2 m²
Boenheter
1
Kommune
Bergen
Fylke
Vestland
Gnr / Bnr
141 / 22
Saksnummer
BYGG-2026/12262
Fase
Under behandling

Om byggesaken

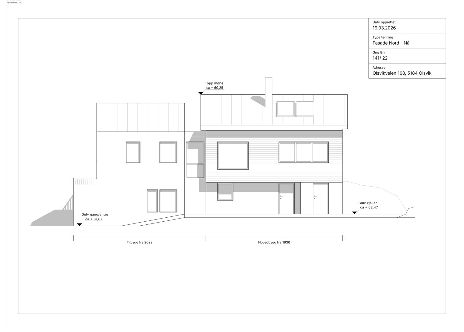
Eksisterende enebolig fra 1936 med tilbygg fra 2022 får ny yttervegg i kjeller mot nord, oppført i trekonstruksjon på nytt armert stripefundament. Gulvet i underetasjen senkes med ca. 40 cm for å oppnå romhøyde på 2,2 meter i nytt bad. Det skjer en bruksendring av del av underetasjen fra tilleggsdel til hoveddel. Fasadeendringen innebærer at murveggen i kjeller erstattes med trekledning, og veggen bygges i flukt med eksisterende vegg i 2. etasje. Tiltaket inkluderer dispensasjon fra byggegrense mot vei med ca. 42 cm. Fasaden mot nord har 7 vinduer og 2 dører, og taket er saltak. Arbeidet omfatter også oppføring av ny bærevegg og etablering av nytt bad i underetasjen.

Produkter og materialer

VVS Vann og avløp bad

VVS-installasjon for nytt bad i underetasje

Rørleggerarbeid for vann og avløp i nytt bad

Gulv Senking av gulv i underetasje

Antall: 1

Gulv senkes med ca. 40 cm for å oppnå romhøyde 2,2 meter i nytt bad

Senking av gulv i underetasje for nytt bad og bruksendring

Fasade Yttervegg i tre

🧱 Trekonstruksjon med stripefundament

Antall: 1

Ny yttervegg i kjeller mot nord, trekonstruksjon på armert stripefundament, erstatter eksisterende murvegg

Ny yttervegg i tre med isolasjon og trekledning, plassert i flukt med eksisterende vegg i 2. etasje

Dører Ytterdør

Antall: 2

2 ytterdører i fasade nord, plassert i ny yttervegg

Ytterdører i fasade nord, inkludert ny dør i ny yttervegg

Elektro Elektrisk installasjon bad og ny vegg

Elektrisk installasjon i nytt bad og ny yttervegg

El-installasjon for belysning, stikkontakter og ventilasjon i bad og ny vegg

Isolasjon Veggisolasjon

🧱 Isolasjon i yttervegg

Isolasjon i ny trekonstruksjon yttervegg

Isolasjon for ny yttervegg i kjeller

Bad Nytt bad i underetasje

Antall: 1

Etablering av nytt bad i underetasje med tilhørende våtromsarbeider

Nytt bad med toalett, dusj og vask, tilpasset senket gulv

Grunnarbeid Stripefundament

🧱 Armert betong

Antall: 1

Nytt armert stripefundament under ny yttervegg i kjeller

Fundament for ny yttervegg i kjeller

Tømrer Bærevegg i tre

🧱 Tre

Antall: 1

Ny bærevegg i tre i kjeller for å erstatte murvegg

Bærevegg i tre som del av fasadeendring og bruksendring

Maling Innvendig og utvendig maling

Maling av ny yttervegg og innvendige flater i bad og kjeller

Overflatebehandling av nye konstruksjoner og vegger

Vinduer Fasadevindu

🧱 Tre eller PVC (ikke spesifisert)

Antall: 7

7 vinduer i fasade nord, plassert i ny yttervegg og eksisterende vegg

Vinduer i fasade nord, inkludert nye vinduer i ny yttervegg

Fasader

Enebolig

Nord
Materiale
Tre
Taktype
Saltak
Høyde
6.8 m
Mønehøyde
69.2 m
Vinduer
7
Dører
2
Synlige etasjer
2

Hendelser

13.04.2026 Spørsmål- 141/22/0/0 Olsvikveien 168, fasadeendring, bruksendring bolig
08.04.2026 Bekreftelse på mottatt søknad
31.03.2026 Olsvikveien 168 Søknad om tillatelse i ett trinn 141/22