FacadeChange Soeknad Enebolig

Fasadeendring og planløsning i enebolig, Blekeveien 16

📍 Øvre Blekeveien 16 , 5003 BERGEN

Nøkkelinfo

Sakstype
Fasadeendring
Bygningstype
Enebolig
Bruksareal
35 m²
Boenheter
2
Kommune
Bergen
Fylke
Vestland
Gnr / Bnr
167 / 1238
Saksnummer
BYGG-2026/12399
Fase
Søknad

Om byggesaken

Endring av fasade på vestside av en eksisterende trehus enebolig med saltak i Blekeveien 16. Prosjektet inkluderer opprettelse av en ny boenhet på 35 m² i underetasjen med ny trappeadkomst via friområde. Fasadeendringen innebærer justeringer for å øke lysinnslipp til den nye boenheten. Bygget har tre etasjer, 12 vinduer og 2 dører på vestfasaden, samt 4 balkonger og pipe. Det planlegges også brannrømning over naboeiendom, og det søkes om unntak fra energi- og lydkrav samt plankrav.

Produkter og materialer

Vinduer Fasadevindu

🧱 Tre

Antall: 12

Fasadevindu i tre på vestfasade som inngår i fasadeendringen for økt lysinnslipp

Isolasjon Lyd- og varmeisolasjon

Søknad om unntak fra energi- og lydkrav i forbindelse med fasadeendring og ny boenhet

Isolasjon for lyd og varme i fasade og planløsning, med søknad om dispensasjon

Tømrer Innvendige vegger og planløsning

Endring av planløsning for ny boenhet i underetasje

Tømrerarbeid for ny planløsning og rominndeling i underetasje

Grunnarbeid Terrengtilpasning

Tilkomst via friområde med mulig grunnarbeid for trapp og adkomst

Grunnarbeid for ny trappeadkomst via friområde til underetasje

Brannvern Brannrømning

Brannrømning planlagt over naboeiendom, krever avtale eller tinglysing

Brannrømning over naboeiendom som del av sikkerhetsløsning for ny boenhet

Fasade Trepanel

🧱 Tre

Endring av fasade med trepanel på vestside av enebolig med saltak

Fasadeendring med trepanel for å tilpasse ny planløsning og øke lysinnslipp

Dører Ytterdør

🧱 Tre

Antall: 2

Ytterdører i tre på vestfasade som inngår i fasadeendringen

Trapper Innvendig trapp

Antall: 1

Trappeadkomst fra 1. etasje til underetasje vurderes for ny boenhet, med behov for eventuell ny trapp via friområde

Trapp for adkomst til ny boenhet i underetasje, vurderes ny løsning for bedre tilgjengelighet

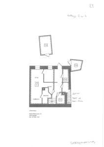
Plantegning

Enebolig 0.0 m²

Etasje 0 0.0 m²

Rom Areal Vinduer Dører
STUE 1 0.0 m² 2 1
TEKNISK ROM TS1 0.0 m² 0 1
TEKNISK ROM TS2 0.0 m² 0 1
TEKNISK ROM TS3 0.0 m² 0 1
TEKNISK ROM TS4 0.0 m² 0 1
ENTRÉ ENTRÉ 0.0 m² 0 1
KJØKKEN KJØKKEN 0.0 m² 0 1
BAD/WC BAD/WC 0.0 m² 0 1

Fasader

Enebolig

Vest
Materiale
Tre
Taktype
Saltak
Vinduer
12
Dører
2
Balkonger
4
Synlige etasjer
3

Hendelser

09.04.2026 Bestilling av forhåndskonferanse. Referansenummer HBADXL1