FacadeChange UnderBehandling Enebolig

Fasadeendring og tilbygg på enebolig, Øvre Våganeset 9

📍 Øvre Våganeset 9 , 5106 ØVRE ERVIK

Nøkkelinfo

Sakstype
Fasadeendring
Bygningstype
Enebolig
Bruksareal
395 m²
Boenheter
1
Kommune
Bergen
Fylke
Vestland
Gnr / Bnr
209 / 377
Saksnummer
BYGG-2023/12434
Fase
Under behandling

Om byggesaken

Tiltaket omfatter enebolig på Øvre Våganeset 9 med totalt ca. 395 m² BRA fordelt på to etasjer. Prosjektet inkluderer fjerning av takterrasse med trappehus, utvidelse av påbygg i 2. etasje, fasadeendringer med justering av vinduer og terrassedører, samt heving av taket på eksisterende carport med 59 cm. Kledningen endres fra stående til liggende trepanel. Carporten får utvidet tak som fungerer som takoverbygg over inngangspartiet. Totalt nytt areal er ca. 77,5 m², og samlet utnyttelse blir 42,5 % BRA på tomten. Bygget har saltak og flatt tak, med gesimshøyde på ca. 5,14 m og mønehøyde på 8,2 m. Det er ett trappetrinn i bygget. Tiltaket krever dispensasjon fra byggegrense mot sjø, nabogrense og kommunal vei. Prosjektet er i tråd med TEK17 og visuelle kvalitetskrav.

Produkter og materialer

Dører Terrassedør og ytterdør

Justering av bredde på terrassedører, flytting av inngangsdør

Endringer i dørplassering og størrelse i fasadeendring

Tak Saltak og flatt tak

🧱 Taktekking ikke spesifisert

Heving av tak på carport med 59 cm, fjerning av takterrasse, nytt takvindu 1,0 x 1,6 m

Heving og utvidelse av tak på carport, fjerning av takterrasse, nytt takvindu

VVS Bad og vaskerom

Nye bad og vaskerom i tilbygg og bruksendring, totalt flere bad i huset

Oppgradering og etablering av våtrom i tilbygg og eksisterende bygg

Trapper Innvendig trapp

Antall: 1

Eksisterende trapp opprettholdes, ingen nye trapper nevnt

Innvendig trapp i eneboligen

Garasjeport Carporttak

Antall: 1

Heving av tak på eksisterende carport med 59 cm, utvidet tak som takoverbygg over inngangsparti

Oppgradering og heving av carporttak for bedre bruk og inngangsparti

Elektro Generell elektroinstallasjon

Ikke spesifisert, men nødvendig for tilbygg og endringer

Elektriske installasjoner i tilbygg og fasadeendringer

Rekkverk Balkongrekkverk

🧱 Tre eller metall

Antall: 2

Eksisterende balkonger opprettholdes, eventuelle nye rekkverk iht. TEK17

Rekkverk på balkonger og terrasser

Gulv Innvendige gulv

Ikke spesifisert, men ombygging av bod til oppholdsrom og stue i kjeller

Innvendige gulv i nye oppholdsrom etter bruksendring

Maling Utvendig og innvendig maling

Endring av kledning og fasade krever maling, samt innvendige overflater

Maling av nye og endrede fasadeflater og innvendige rom

Grunnarbeid Terrengjustering

Heving av terreng i carportområdet med 30-40 cm

Terrengjustering i carportområdet for tilpasning til hevet tak

Fasade Kledning

🧱 Tre, liggende panel

Endring fra stående til liggende kledning

Ny liggende trepanelkledning på fasader som del av fasadeendring

Tømrer Tilbygg og påbygg

🧱 Tre

Tilbygg 1. etasje nord 47,1 m², tilbygg 2 etasjer vest 13,5 m², omgjøring av altan til bolig 6,8 m²

Bygging av tilbygg og omgjøring av altan til boligrom

Vinduer Fasadevindu og takvindu

Antall: 1

Nytt takvindu 1,0 x 1,6 m, justering av vindusstørrelser og terrassedørers bredde

Nye og justerte vinduer og terrassedører i fasadeendring

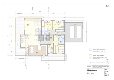
Plantegning

Enebolig 395.2 m²

Etasje 1 264.7 m²

Rom Areal Vinduer Dører
Stue 101 60.0 m² 2 1
Kjøkken 102 25.8 m² 1 1
Gang 103 15.2 m² 0 4
Sov 104 18.1 m² 1 1
Sov 105 7.0 m² 1 1
Sov 106 12.6 m² 1 1
Sov 107 12.9 m² 1 1
Bad 1 108 6.6 m² 0 1
Bad 109 4.8 m² 0 1
V.F. 110 5.7 m² 0 1
wc 111 2.2 m² 0 1
Bod 112 3.8 m² 0 1

Etasje 2 130.5 m²

Rom Areal Vinduer Dører
Stue 201 35.2 m² 2 1
Kjøkken 202 26.9 m² 1 1
Gang 203 5.2 m² 0 2
Bad 204 5.9 m² 0 1
Vaskerom 205 4.0 m² 0 1
Sov 206 8.0 m² 1 1
Sov 207 12.0 m² 1 1
Sov 208 18.1 m² 1 1
Bad 209 6.4 m² 0 1
Bad 210 2.7 m² 0 1
Opphold 211 12.0 m² 1 1
Gang 212 5.2 m² 0 1

Fasader

Enebolig

Vest
Materiale
Tre
Taktype
Saltak
Høyde
5.1 m
Mønehøyde
8.2 m
Vinduer
4
Dører
1
Balkonger
1
Synlige etasjer
2
Nord
Materiale
Tre
Taktype
Flatt tak
Høyde
2.3 m
Mønehøyde
2.3 m
Vinduer
6
Dører
1
Balkonger
1
Synlige etasjer
1

Hendelser

06.03.2026 Viser til søknad om endring av gitt rammetillatelse - 209/377/0/0 Øvre Våganeset 9, endring av bygg - utvendig - Fasade tilbygg
12.02.2026 Anmodning om uttalelse til søknadspliktig tiltak
03.02.2026 Øvre Våganeset 9 Søknad om endring av gitt tillatelse eller godkjenning 209/377
17.07.2023 Fakturagrunnlag, 209/377
17.07.2023 ubw ordre 20620680 Tillatelse/avslag
13.07.2023 Avslag på del av søknad
13.07.2023 Rammetillatelse, Øvre Våganeset 9, endring av bygg - utvendig - fasade tilbygg
11.07.2023 Beregning tegning - 209/377/0/0 Øvre Våganeset 9, endring av bygg - utvendig - Fasade tilbygg
10.05.2023 Øvre Våganeset 9, anmodning om uttalelse
18.04.2023 Bekreftelse på mottatt søknad
13.04.2023 Øvre Våganeset 9 Søknad om rammetillatelse 209/377