FacadeChange Soeknad Enebolig

Fasadeendring, tilbygg og bruksendring i enebolig på Øvre Valland 19

📍 Øvre Valland 19 , 5600 NORHEIMSUND

Nøkkelinfo

Sakstype
Fasadeendring
Bygningstype
Enebolig
Bruksareal
244 m²
Boenheter
1
Kommune
Kvam
Fylke
Vestland
Gnr / Bnr
33 / 118
Saksnummer
26/1441
Fase
Søknad

Om byggesaken

Eksisterende enebolig på Øvre Valland 19 gjennomgår fasadeendring med fjerning av eksisterende balkong og oppføring av ny altan med understøttelse, samt terrasse på terreng. Det etableres nye vinduer og altandør på flere fasader, inkludert nye rømningsvinduer i kjellerboder som gjøres om til soverom. Hele boligen etterisoleres utvendig med 10 cm isolasjon og får ny trekledning. Det planlegges mindre innvendige planendringer i kjeller med flytting og riving av vegger. Nytt bæresystem og søylefundamenter under altan etableres. Altan og terrasse tilpasses terreng med mulighet for trappetrinn ned til hage. Totalt tilbygg er ca. 17,4 m² overdekket areal. Bygningen har saltak og trekledning, med gesims- og mønehøyde på henholdsvis 6 og 8 meter.

Produkter og materialer

Vinduer Rømningsvinduer i kjellerboder

Antall: 3

Vinduer med dimensjon 1100 x 900 mm (fast) og 600 x 900 mm (opning), sidehengsla innadslåande, godkjent som rømningsveg med fastmontert møbel under

Nye vinduer i kjellerboder for rømning og dagslys

Terrasse Altan og terrasse på grunn

🧱 tre og betongfundament

Ny altan ca. 17,4 m² med understøttelse på 5 søylepunkt, terrasse på terreng inntil 6,6 m bredde, tilpasset terreng med mulighet for trapp/trinn ned til hage

Oppføring av ny altan og terrasse med bæresystem og søyler

Tømrer Bæresystem og veggflytting

Nødvendig bæresystem for altan, flytting og riving av vegger i kjeller og hovedplan

Tømrerarbeid knyttet til bæresystem, veggflytting og planendringer

Vinduer Fasadevindu

🧱 tre

Antall: 6

Nye vinduer i stue og kjøkken, inkludert kombinasjon av fast og opningsbare vinduer, dimensjoner bl.a. 900 x 1700 mm og 300 x 2100 mm

Nye vinduer i flere fasader for bedre lys og ventilasjon

Dører Altandør og ny ytterdør

🧱 tre eller glass

Antall: 2

Ny altandør mot sør og ny dør i kjeller, fjerning av eksisterende balkongdør

Dører til altan og kjeller med tilpasning til ny planløsning

Fasade Trekledning og etterisolering

🧱 tre og isolasjon

Etterisolering av hele boligen utvendig med 10 cm isolasjon, ny trekledning liggende eller stående

Utvendig etterisolering og ny trekledning på eksisterende enebolig

Trapper Utendørs trapp/trinn

Mulig trapp eller trinn ned til hage fra terrasse og altan

Trapp for å ta opp høydeforskjell mellom terrasse/altan og terreng

Grunnarbeid Søylefundamenter

🧱 betong

Antall: 5

5 søylepunkt med cc 2400 mm under ny altan, antall og avstand kan endres etter dimensjonering

Fundamentering for bæresystem under ny altan

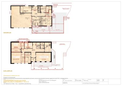
Plantegning

Enebolig 65.6 m²

Etasje 1 48.2 m²

Rom Areal Vinduer Dører
Stue STUE 41.4 m² 3 1
Kjøkken KJØKKEN 10.0 m² 2 1
Soverom SOV I 11.5 m² 1 1
Entré ENTRE 0.0 m² 0 2
Bad/WC BAD, WC 0.0 m² 1 1
Vaskerom V.F. 0.0 m² 1 1
Soverom SOV II 9.0 m² 1 1
Soverom SOV III 6.6 m² 1 1

Etasje 0 17.4 m²

Rom Areal Vinduer Dører
Bod BOD 0.0 m² 1 1
Soverom SOVEROM 0.0 m² 1 1
Hobbyrom HOBBYROM 0.0 m² 2 1
Soverom SOVEROM 12.0 m² 1 1
Gang GANG 0.0 m² 0 2
Vaskerom/Tørkerom VASK TØRK 0.0 m² 1 1
Bad/WC DUSJ WC 0.0 m² 1 1
Bod BOD 0.0 m² 1 1
Soverom SOVEROM 0.0 m² 1 1
Vaskerom V.F. 0.0 m² 1 1

Fasader

Enebolig

Sør
Materiale
Tre
Taktype
Saltak
Høyde
6.0 m
Mønehøyde
8.0 m
Vinduer
6
Dører
0
Synlige etasjer
2
Nord
Materiale
Tre
Taktype
Saltak
Høyde
6.0 m
Mønehøyde
8.0 m
Vinduer
2
Dører
1
Synlige etasjer
2
Vest
Materiale
Tre
Taktype
Saltak
Høyde
6.0 m
Mønehøyde
8.0 m
Vinduer
1
Dører
0
Synlige etasjer
2
Øst
Materiale
Tre
Taktype
Saltak
Høyde
6.0 m
Mønehøyde
8.0 m
Vinduer
1
Dører
0
Synlige etasjer
2

Hendelser

15.04.2026 Førebels svar på søknad om løyve til tiltak i eitt steg på gnr 33 bnr 118 på Øvre Valland. Fasadeendring og bruksendring
15.04.2026 Søknad om løyve til tiltak i eitt steg på gnr 33 bnr 118 på Øvre Valland. Fasadeendring og bruksendring