FacadeChange Soeknad Enebolig

Fasadeendring og bruksendring på enebolig i Spinellveien 29B

📍 Spinellveien 29B , 1639 GAMLE FREDRIKSTAD

Nøkkelinfo

Sakstype
Fasadeendring
Bygningstype
Enebolig
Bruksareal
145 m²
Boenheter
1
Kommune
Fredrikstad
Fylke
Østfold
Gnr / Bnr
603 / 107
Saksnummer
2026/9903
Fase
Søknad

Om byggesaken

Eneboligen på Spinellveien 29B gjennomgår fasadeendringer med utskifting og forstørrelse av flere vinduer på fasadene nord og vest. Innvendig ombygges kjellerstue (26 m²), soverom i 3. etasje (10 m²), råloft nord til stue (14 m²), og deler av garasjen ombygges til soverom (9 m²) med ny døråpning mellom garasje og kjellerstue. Det etableres isolerte vegger med dobbel 2"4 og 100 mm Glava isolasjon for å avlaste bæringen i leca. Bad i underetasjen utvides med dusjnisje. Det installeres ny radonvifte i kjeller. Fasadeendringene inkluderer nye vinduer i ulike størrelser, blant annet 100x120 cm og 100x80 cm, samt en ny døråpning på 90x200 cm. Bygget har saltak og trekledning, med pipe og garasjeport på vestfasaden.

Produkter og materialer

Garasjeport Garasjeport

Antall: 1

Eksisterende garasjeport på vestfasade

Garasjeport beholdes, del av garasje bygges om til soverom

Fasade Kledning

🧱 Tre

Eksisterende trekledning beholdes, fasadeendring gjelder vinduer og døråpning

Fasade med trekledning og saltak

Tak Saltak

🧱 Tre og taktekking

Eksisterende saltak opprettholdes

Taktype på eneboligen

Bad Dusjnisje og våtromsarbeid

Utvidelse av bad i underetasje med dusjnisje, utført av faglærte våtromsarbeidere

Oppgradering og utvidelse av bad i kjeller

Vinduer Fasadevindu

🧱 tre med 3-lags glass

Antall: 6

Vinduer i størrelser 100x120 cm, 100x80 cm, og 60x60 cm, inkludert rømningsgodkjent vindu med stige

Utskifting og forstørrelse av fasadevindu på nord- og vestfasade

Tømrer Vegger og bæring

🧱 2"4 trekonstruksjon, dobbel ramme, 100 mm Glava isolasjon

Dobbel 2"4 på hver side av døråpning og over, isolert vegg mellom garasje og soverom, gipsplate som brannvegg mot garasje

Oppbygging og forsterkning av vegger ved ny døråpning og romombygging

Dører Innvendig dør

🧱 tre

Antall: 1

Ny døråpning 90x200 cm mellom garasje og kjellerstue

Ny døråpning med forsterket bæring i vegg mellom garasje og kjellerstue

VVS Radonvifte

Antall: 1

Ny radonvifte installert i underetasjen, radonmålinger under 100 Bq/m³

Radonventilasjon for kjeller

Trapper Innvendig trapp

Antall: 1

Eksisterende trapp mellom etasjer

Trapp i eneboligen

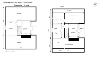
Plantegning

Enebolig 144.7 m²

Etasje 0 100.7 m²

Rom Areal Vinduer Dører
Garasje GARASJE 0.0 m² 0 0
Soverom Sov 8,5 8.5 m² 0 0
Bad Bad 0.0 m² 0 0
Kombinert bad-/vaskerom Kombinert bad-/vaskerom 0.0 m² 0 0
Gang GANG 0.0 m² 0 0
Matrom MAT 0.0 m² 0 0
Hall HALL 0.0 m² 0 0
Vaskerom VF 0.0 m² 0 0
Soverom Sov 3 7.5 m² 0 0
Sov 4 SOV 4 8.5 m² 0 0
Stue STUE 26.0 m² 0 0
Kombinert bad/vaskerom KOMBINERT BAD/VASKEROM 5.0 m² 0 0
Kaldloft 0.0 m² 0 0

Etasje 2 44.0 m²

Rom Areal Vinduer Dører
Stue 201 14.0 m² 1 1
Sov 5 202 10.0 m² 1 1
Kaldloft 203 12.0 m² 0 0
Kaldloft 204 18.0 m² 0 0
Kaldloft 0.0 m² 0 0
Loft 0.0 m² 0 0

Etasje 1 0.0 m²

Rom Areal Vinduer Dører
Stue 0.0 m² 0 0
Stue/Sov 5 0.0 m² 0 0
Balkong 0.0 m² 0 0

Fasader

Enebolig

Nord
Materiale
Tre
Taktype
Saltak
Vinduer
3
Dører
0
Synlige etasjer
2
Vest
Materiale
Tre
Taktype
Saltak
Vinduer
6
Dører
1
Balkonger
1
Synlige etasjer
2

Hendelser

20.04.2026 Tilleggsopplysninger - Fasadeendring og bruksendring - Spinellveien 29B
17.04.2026 Tilleggsopplysninger - Fasadeendring og bruksendring - Spinellveien 29B
09.04.2026 Tilleggsopplysninger - Spinellveien 29B - Eiendom 603/107 - Fasadeendring og bruksendring
09.04.2026 Tilleggsopplysninger - Spinellveien 29B - Eiendom 603/107 - Fasadeendring og bruksendring
31.03.2026 Søknad uten ansvarsrett - Spinellveien 29B - Eiendom 603/107 - Fasadeendring og bruksendring