FacadeChange Soeknad Enebolig

Fasadeendring og bruksendring av enebolig i Strandgata 11, Florø

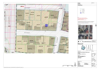
📍 Strandgata 11 , 6905 FLORØ

Nøkkelinfo

Sakstype
Fasadeendring
Bygningstype
Enebolig
Bruksareal
78 m²
Boenheter
1
Kommune
Kinn
Fylke
Vestland
Gnr / Bnr
202 / 6
Saksnummer
2026/4406
Fase
Søknad

Om byggesaken

Eksisterende enebolig fra ca. 1880 i Strandgata 11, Florø, gjennomgår fasadeendring og bruksendring. Kjellermur i dårlig forfatning erstattes med bindingsverkskonstruksjon og ny ringmur for å sikre bygningen. Kjelleren, tidligere uinnredet, innredes til to hybelenheter med nye vinduer og inngangsdører for tilfredsstillende dagslys og rømningsveier. Yttervegger kles med trepanel tilpasset eksisterende uttrykk, og taket har saltak med tegl. Totalt areal er ca. 78,5 m² per etasje, med to etasjer over kjeller. Tiltaket ivaretar kulturhistoriske verdier og er tilpasset reguleringsplan og omsynssone. Det foreligger nabomerknader knyttet til bruksendring og uteareal, samt konflikt om adkomst og parkering.

Produkter og materialer

Maling Maling og overflatebehandling

Overflatebehandling av ny kledning og vinduer for estetikk og holdbarhet

Maling av fasade og vinduer

Isolasjon Isolasjon i yttervegger og kjeller

Isolasjon i bindingsverk og vegger for å hindre kuldeinntrenging

Isolasjon for energibesparende og komfortabel innredning

Tak Saltak med tegl

🧱 Tegl

Eksisterende saltak med tegl, fasadeendring tilpasses eksisterende tak

Taktekking med tegl på saltak

Gulv Innvendige gulv i kjeller

Oppgradering av gulv i kjeller for oppholdsrom

Gulv for innredet kjellerhybel

Bad Bad i kjeller

Antall: 1

Badrom i kjellerhybel

Sanitærinstallasjoner og overflater for bad i kjeller

VVS Sanitær og vanninstallasjoner

Oppgradering av vann- og avløpsinstallasjoner i kjeller for bruksendring

VVS-installasjoner for kjellerhybler

Fasade Utvendig kledning i tre

🧱 Trepanel tilpasset eksisterende fasade

Kledning til yttervegger i bindingsverk, tilpasset eksisterende boligfasade

Utvendig kledning for fasadeendring på bindingsverksvegger i kjeller

Grunnarbeid Drenering og grunnforbedring

Tiltak for å sikre grunnmur og drenering rundt kjeller

Grunnarbeid for stabilitet og fuktsikring

Tømrer Bindingsverk yttervegg

🧱 Tre

Bindingsverkskonstruksjon som erstatning for mur i kjeller

Montering av bindingsverk for yttervegger i kjeller

Elektro Elektriske installasjoner

Elektriske anlegg for kjellerhybler og fasadeendring

Elektroinstallasjoner for nye rom og fasade

Dører Nye inngangsdører

Antall: 2

Nye inngangsdører til kjellerhybler med tilfredsstillende rømningsmulighet

Dører for adkomst og rømningsvei i kjeller

Vinduer Nye vinduer i kjeller

Antall: 6

Nye vinduer med minimum 0,60 m høyde og 0,50 m bredde, samlet minst 1,50 m i sum høyde og bredde for dagslys og rømningsvei

Vinduer for dagslys og rømningsveier i kjeller

Betong Ringmur plasstøpt

🧱 Betong

Ny ringmur som erstatning for dårlig mur i kjeller

Plasstøpt betongringmur for fundamentering og stabilisering

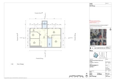
Plantegning

Enebolig 78.5 m²

Etasje 1 78.5 m²

Rom Areal Vinduer Dører
Kjøkken 001 12.4 m² 1 1
Soverom 002 13.5 m² 1 1
Bad 003 5.0 m² 0 1
Stue 004 18.1 m² 1 2
Soverom 005 8.4 m² 1 1
Soverom 006 7.5 m² 1 1
Gang 007 4.1 m² 0 2
Bad/Vaskerom 008 3.7 m² 0 1

Fasader

Enebolig

Sør
Materiale
Tre
Taktype
Saltak
Takmat.
Tegl
Vinduer
4
Dører
1
Synlige etasjer
2
Øst
Materiale
Tre
Taktype
Saltak
Takmat.
Tegl
Vinduer
2
Dører
0
Synlige etasjer
2
Nord
Materiale
Tre
Taktype
Saltak
Vinduer
6
Dører
2
Synlige etasjer
2
Vest
Materiale
Tre
Taktype
Saltak
Vinduer
4
Dører
0
Synlige etasjer
2

Hendelser

21.04.2026 Søknad om tillatelse i ett trinn gbnr 202/6