FacadeChange UnderBehandling Enebolig

Fasadeendring og nye dører på enebolig i Strandgaten 17, Bergen

📍 Strandgaten 17 , 5013 BERGEN

Nøkkelinfo

Sakstype
Fasadeendring
Bygningstype
Enebolig
Kommune
Bergen
Fylke
Vestland
Gnr / Bnr
165 / 23
Saksnummer
BYGG-2026/12265
Fase
Under behandling

Om byggesaken

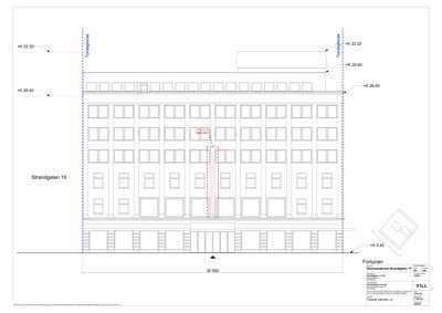
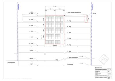
Bygget i Strandgaten 17 er en kontor- og næringsbygning oppført i to trinn, med en eldre del fra 1926 og påbygg fra 1968. Prosjektet omfatter utskifting av to vinduer i 7. etasje til balkongdører for økt tilgang til takterrasse, utvidelse av vinduer i bakgården ved å fjerne brystninger for bedre lysinnslipp, samt oppgradering og reetablering av fasadeskilt på flere fasader. Fasaden i bakgården males i en ensartet farge for å gi et helhetlig uttrykk. Tiltaket inkluderer også gjenåpning av en opprinnelig inngangsdør med tilhørende nye uthengsskilt. Byggets konstruksjon består av betongsøyler, ståldragere og istøpte dekker, og tiltakene påvirker ikke byggets volum eller karakter ut mot gaten. Materialer som mørklakkert aluminium benyttes for vinduer, og fasaden pusset og malt etter behov. Tiltaket forbedrer tilgjengelighet og arbeidsmiljø, samtidig som det ivaretar kulturmiljøhensyn.

Produkter og materialer

Annet Flyttbare plantekasser på hjul

Plantekasser for inndeling av takterrasse i soner

Inndeling av takterrasse i flere soner med plantekasser

Trapper Eksisterende trapperom med nye dører

Antall: 2

Nye dører etableres i eksisterende utsparinger i trapperom for tilgang til takterrasse

Nye dører i trapperom for økt takterrassetilgang

Vinduer Utvidede vinduer i bakgårdsfasade

🧱 Mørklakkert aluminium

Antall: 24

Brystning under vindu fjernes, større glassflater for bedre lysinnslipp, fasaden pusset og malt

Utvidelse av alle vinduer i bakgård for bedre lys og romfølelse

Dører Balkongdører i 7. etasje

🧱 Materiale tilpasses tilstøtende vinduer, antatt aluminium eller tilsvarende

Antall: 2

Nye dører etableres i eksisterende utsparinger, brystning fjernes til overkant terrassedekke, dører tilpasses fasadens uttrykk

To nye balkongdører i 7. etasje for økt tilgang til takterrasse

Fasade Pusset og malt fasade i bakgård

🧱 Pusset overflate, maling i ensartet farge

Fasaden males i samme farge for helhetlig uttrykk, oppgradering etter behov

Oppgradering og maling av bakgårdsfasade

Skilt Uthengsskilt og fasadeskilt

🧱 Aluminium, neon, lysbokser med print

Antall: 5

Skilt på øvre og nedre gesims, fasade mot Strandgaten, inngangspartiet i Fortunen og baldakin mot Strandkaien, tilpasses byggets farger og arkitektur

Oppdatering og reetablering av fasadeskilt og uthengsskilt for næringsvirksomhet

Grunnarbeid Terrassedekke tilpasning

Brystning kappes ned til overkant terrassedekke, terrassedekke eksisterende

Tilpasning av brystning og terrassedekke for nye dører

Maling Fasademaling bakgård

🧱 Utendørs maling

Maling i ensartet farge for helhetlig uttrykk

Maling av bakgårdsfasade

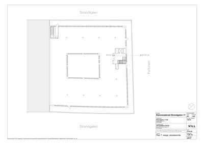
Plantegning

Eksisterende plan 0.0 m²

Etasje 7 0.0 m²

Rom Areal Vinduer Dører
Gang 0 0.0 m² 0 0

Fasader

Hovedbygg

Sørvest
Taktype
Flatt tak
Høyde
26.6 m
Mønehøyde
32.2 m
Vinduer
38
Dører
1
Synlige etasjer
4
Ukjent
Materiale
Betong
Høyde
25.8 m
Vinduer
24
Dører
0
Synlige etasjer
3

Strandkaien

Sørøst
Materiale
Betong
Taktype
Flatt tak
Høyde
26.6 m
Mønehøyde
32.2 m
Vinduer
38
Dører
1
Synlige etasjer
4

Hendelser

13.04.2026 Følgebrev
13.04.2026 Vedrørende tilleggsopplysninger
08.04.2026 Bekreftelse på mottatt søknad
01.04.2026 Strandgaten 17 Søknad om rammetillatelse 165/23