Photo
Fotografi av en hvit, tobygget bygning (en med skrått tak og en med flatt tak) på en grønn tomt med fjell i bakgrunnen.
1 / 11
FacadeChange
Rammetillatelse
Enebolig
Fasadeendring og rehabilitering av enebolig
📍 Unstadveien 119
Nøkkelinfo
- Sakstype
- Fasadeendring
- Bygningstype
- Enebolig
- Kommune
- Sør-Odal
- Fylke
- Innlandet
- Gnr / Bnr
- 85 / 71
- Saksnummer
- 26/873
- Fase
- Rammetillatelse
Om byggesaken
Saken gjelder søknad om tillatelse til fasadeendring, rehabilitering og endring av vinduer i enebolig på Unstadveien 119. Saken inkluderer også behandling av en søknad om skadefelling av bever.
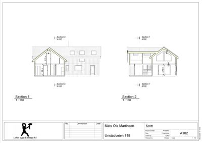
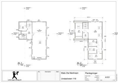
Plantegning
Enebolig 219.4 m²
Etasje 1 118.4 m²
| Rom | Areal | Vinduer | Dører |
|---|---|---|---|
| Bad 100 | 7.6 m² | 0 | 1 |
| Gang 101 | 9.7 m² | 0 | 1 |
| Vaskerom 102 | 4.1 m² | 0 | 1 |
| Stue/Kjøkken 103 | 62.2 m² | 4 | 1 |
Etasje 2 101.0 m²
| Rom | Areal | Vinduer | Dører |
|---|---|---|---|
| Sov 1 200 | 12.4 m² | 1 | 1 |
| Bad 201 | 4.0 m² | 0 | 1 |
| Lofstue 202 | 44.9 m² | 2 | 1 |
| Sov 2 203 | 7.1 m² | 1 | 1 |
| Sov 3 204 | 6.9 m² | 1 | 1 |
| Sov 4 205 | 8.7 m² | 1 | 1 |
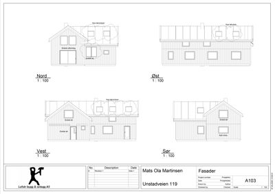
Fasader
Enebolig
Nord
- Materiale
- Tre
- Taktype
- Saltak
- Takmat.
- Tegl
- Vinduer
- 5
- Dører
- 1
- Synlige etasjer
- 2
Øst
- Materiale
- Tre
- Taktype
- Saltak
- Takmat.
- Tegl
- Vinduer
- 6
- Dører
- 0
- Synlige etasjer
- 2
Vest
- Materiale
- Tre
- Taktype
- Saltak
- Takmat.
- Tegl
- Vinduer
- 5
- Dører
- 2
- Synlige etasjer
- 2
Sør
- Materiale
- Tre
- Taktype
- Saltak
- Takmat.
- Tegl
- Vinduer
- 3
- Dører
- 0
- Synlige etasjer
- 2
Hendelser
15.04.2026
Tillatelse til tiltak - Endring av bygg - gnr 85 bnr 71
09.04.2026
Svar på henvendelse vedrørende skadefelling på bever
09.04.2026
Søknad om skadefelling av bever
09.04.2026
Søknad om skadefelling av bever
09.04.2026
Supplerende tegninger
09.04.2026
Reviderte tegninger
27.03.2026
Supplering
27.03.2026
Kulturminnefaglig uttalelse
13.03.2026
Oversender søknad til uttalelse - Endring av bygg - gnr 85 bnr 71
13.03.2026
Foreløpig tilbakemelding - Endring av bygg - gnr 85 bnr 71
10.03.2026
Søknad om tillatelse i ett trinn gnr 85 bnr 71