FacadeChange Soeknad Enebolig

Fasadeendring på enebolig i Wallemsvikveien 12A, Bergen

📍 Wallemsvikveien 12A , 5165 LAKSEVÅG

Nøkkelinfo

Sakstype
Fasadeendring
Bygningstype
Enebolig
Bruksareal
65 m²
Boenheter
1
Kommune
Bergen
Fylke
Vestland
Gnr / Bnr
146 / 184
Saksnummer
BYGG-2026/12333
Fase
Søknad

Om byggesaken

Eksisterende enebolig fra 1968 i Wallemsvikveien 12A gjennomgår fasadeendringer som inkluderer utvidelse og justering av vinduer og dører på alle fasader, etablering av nye vinduer og takvinduer, samt flytting av inngangsparti. Byggets klimaskjerm oppgraderes med utvendig etterisolering (50 mm) og ny stående trekledning på hoveddelen, mens kjelleretasjen får fasadeplater med pussfinish og isolerende egenskaper. Tiltaket moderniserer fasadens uttrykk og forbedrer lysinnslipp og energistandard uten vesentlig volumendring eller innvendig arealtap. Byggets opprinnelige karakter og proporsjoner opprettholdes, og tiltaket inkluderer også mindre justeringer i dørplasseringer og vindusoppdeling for bedre balanse og helhet.

Produkter og materialer

Trapper Innvendig trapp

Antall: 1

Utbedring av eksisterende trapp nevnt i plantegninger, men ikke del av denne søknad

Oppgradering av trapp inngår i øvrige tiltak som omsøkes separat

Dører Ytterdører og terrassedør

🧱 Tre/isolert dør med glassfelt

Antall: 5

Inngangsdør flyttes og endres, kjellerdør erstattes med ny inngangsdør, justering av terrassedør i hovedetasje

Justering og flytting av dørplasseringer i fasadene for bedre funksjon og estetikk

Isolasjon Utvendig påforing

🧱 Mineralull eller tilsvarende isolasjon

50 mm utvendig etterisolering på fasade for forbedret energistandard

Etterisolering av eksisterende vegger med minimal økning i veggtykkelse

Tømrer Montering av kledning og vinduer

Montering av ny trekledning, fasadeplater, vinduer og dører

Utførelse av fasaderehabilitering og endringer i vindus- og døråpninger

Vinduer Fasadevindu og takvindu

🧱 Trelags energiglass

Antall: 15

Flere vindustyper med mål som V0 2200x1500, V1 900x1500, V2 1200x1500, V6 900x1300, DH1 900x2100, DH2 1300x2100, takvinduer i loftsetasje

Utvidelse, justering og etablering av nye vinduer i fasader og takvinduer i loftsetasje for økt lysinnslipp og rømningsvei

Fasade Kledning og fasadeplater

🧱 Stående trekledning på hoveddel, pussede fasadeplater i kjeller

Ny stående trekledning for hoveddelen, fasadeplater med pussfinish og isolerende egenskaper i kjelleretasjen

Rehabilitering og oppgradering av klimaskjerm for bedre holdbarhet og isolasjon

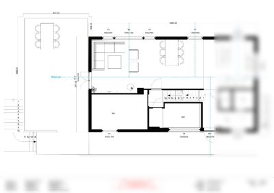
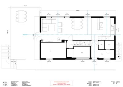
Plantegning

Enebolig 65.0 m²

Etasje 0 0.0 m²

Rom Areal Vinduer Dører
Redskaper 1 0.0 m² 0 0
Gang 2 0.0 m² 0 0
Vaskerom 3 0.0 m² 0 0
Vaskerom 4 0.0 m² 0 0
Bod 5 0.0 m² 0 0
Brensel 6 0.0 m² 0 0
Mat 7 0.0 m² 0 0

Etasje 1 65.0 m²

Rom Areal Vinduer Dører
Stue 101 35.0 m² 2 1
Kjøkken 102 10.0 m² 1 1
Bad 103 5.0 m² 0 1
Gang 104 15.0 m² 0 2
Bod 105 4.1 m² 0 1
Entre 106 5.0 m² 0 1

Etasje 2 0.0 m²

Rom Areal Vinduer Dører
Soverom 201 0.0 m² 1 1
Rom 202 0.0 m² 0 1
Loft 203 0.0 m² 2 0

Fasader

Uthus

Ukjent
Vinduer
2
Dører
0
Synlige etasjer
2

Enebolig

Nord
Materiale
Tre
Taktype
Saltak
Høyde
5.3 m
Vinduer
3
Dører
1
Balkonger
1
Synlige etasjer
2
Vest
Materiale
Tre
Taktype
Flatt tak
Vinduer
8
Dører
2
Balkonger
1
Synlige etasjer
2
Sør
Materiale
Tre
Taktype
Saltak
Høyde
7.7 m
Vinduer
2
Dører
1
Balkonger
1
Synlige etasjer
2
Øst
Materiale
Tre
Taktype
Flatt tak
Vinduer
3
Dører
1
Synlige etasjer
1

Hendelser

08.04.2026 Wallemsvikveien 12A Søknad om tillatelse i ett trinn 146/184