NewConstruction UnderBehandling Enebolig

Ny enebolig med garasje i Søgardsgrenda, Tylldalen

📍 4/242 , 2510 TYLLDALEN

Nøkkelinfo

Sakstype
Nybygg
Bygningstype
Enebolig
Bruksareal
328 m²
Boenheter
1
Kommune
Tynset
Fylke
Innlandet
Gnr / Bnr
4 / 242
Saksnummer
2025/2191
Fase
Under behandling

Om byggesaken

Ny enebolig over to etasjer med totalt 201,1 m² BRA, bestående av stue, kjøkken, flere soverom, bad, vaskerom og sportsbod i første etasje, samt kontor, loftstue, flere soverom, bad og walk-in garderobe i andre etasje. Boligen har en trapp og flere vinduer fordelt på rommene. I tillegg oppføres en frittstående garasje på 8x13 meter med flatt tak, bygget i tre, med garasjeport og flere dører og vinduer. Bygget har privat vannforsyning og avløp, og det er utført grunnarbeid, betongarbeid, tømrerarbeid, rørleggerarbeid og pipeinstallasjon. Garasjen ferdigstilles etter boligen. Prosjektet har fått midlertidig brukstillatelse for boligen, mens garasjen gjenstår med utvendig kledning, porter og vinduer.

Produkter og materialer

Elektro Elektriske installasjoner

Elektriske installasjoner antatt nødvendig for bolig og garasje

Trapper Innvendig trapp i L-form

Antall: 1

Trapp mellom første og andre etasje i boligen

Vinduer Fasadevindu

🧱 tre eller tilsvarende

Antall: 14

Vinduer fordelt på stue, soverom, vaskerom, sportsbod, kontor, loftstue og walk-in garderobe

Garasjeport Garasjeport til garasje

Antall: 1

Garasjeport til garasje med flatt tak

Bad Baderomsinnredning og fliser

Antall: 2

Bad i begge etasjer, med nødvendig våtromsinnredning

Tømrer Trekonstruksjoner og montering

🧱 tre

Tømrerarbeid for bolig og garasje, inkludert montering av trekonstruksjoner

Grunnarbeid Graving og tomtearrondering

Grunnarbeid for bolig og garasje

Gulv Innvendige gulv

Innvendige gulv i bolig, materialer ikke spesifisert

Tak Flatt tak på garasje

Flatt tak på garasje, bolig taktype ikke spesifisert

Dører Ytterdører og innerdører

Antall: 12

Ytterdører og innerdører i bolig og garasje

VVS Rørinstallasjoner

Rørleggerarbeid for bolig og garasje

Pipe Pipe og ildsted

Antall: 1

Pipe og ildsted i bolig

Betong Fundamenter og grunnmur

Betongarbeider for fundamenter og grunnmur

Fasade Trepanel

🧱 tre

Trepanel på bolig og garasje, garasje med flatt tak

Plantegning

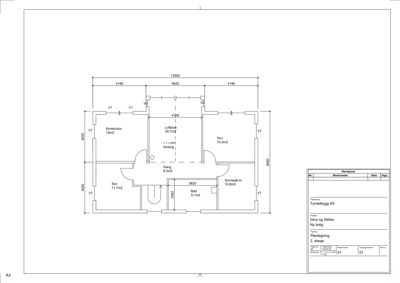
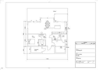
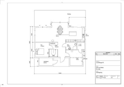
Enebolig 201.1 m²

Etasje 1 120.5 m²

Rom Areal Vinduer Dører
Stue 101 50.0 m² 3 1
Sov 102 12.9 m² 1 1
Entre 103 10.2 m² 0 2
Bad 104 4.4 m² 0 1
Vask 105 15.0 m² 1 1
Sportsbod 106 6.6 m² 1 1

Etasje 2 80.6 m²

Rom Areal Vinduer Dører
Kontor/sov 201 15.0 m² 2 1
Lofstue 202 20.7 m² 2 0
Sov 203 15.3 m² 1 1
Gang 204 9.2 m² 0 0
Sov 205 11.7 m² 1 1
Bad 206 9.1 m² 0 1
Sov/walk-in 207 10.6 m² 1 1

Fasader

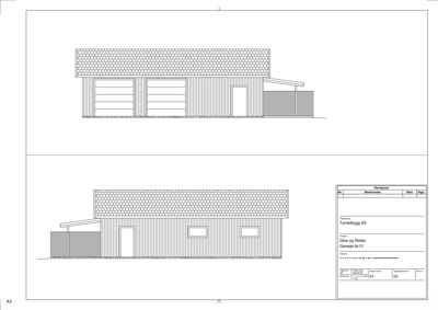
Garasje

Nord
Materiale
Tre
Taktype
Flatt tak
Vinduer
0
Dører
1
Synlige etasjer
1
Sør
Materiale
Tre
Taktype
Flatt tak
Vinduer
2
Dører
1
Synlige etasjer
1

Hendelser

22.04.2026 Melding om delegert vedtak
31.03.2026 Søknad om midlertidig brukstillatelse gbnr 4/242
19.08.2025 Melding om delegert vedtak - GBNR 4/242 - Enebolig og garasje - Tillatelse til ett-trinn
29.07.2025 Søknad om tillatelse i ett trinn gbnr. 4/242