NewConstruction UnderBehandling Enebolig

Ny enebolig med garasje i Aallsgate 28B, Porsgrunn

📍 Aallsgate 10 , 3922 PORSGRUNN

Nøkkelinfo

Sakstype
Nybygg
Bygningstype
Enebolig
Bruksareal
177 m²
Boenheter
1
Kommune
Porsgrunn
Fylke
Telemark
Gnr / Bnr
200 / 4248
Saksnummer
2026/2450
Fase
Under behandling

Om byggesaken

Ny enebolig i to etasjer med totalt 176,6 m² BRA og 117,9 m² BYA, oppført i tre med saltak og flatt tak på enkelte deler. Boligen inneholder to stuer, to kjøkken, tre soverom, to bad, to toaletter, gangarealer, bod og en integrert garasje på 15 m². Fasadene er i tre med balansert vindusplassering og flere balkonger. Bygget er tilpasset terrenget med minimal terrengbearbeiding og har funksjonelle uteområder med solforhold i henhold til krav. Teknisk plan inkluderer VA-ledninger og felles innkjøring. Boligen er prosjektert med fokus på volum, høyde og materialbruk som harmonerer med nabobebyggelsen.

Produkter og materialer

Fasade Trepanel

🧱 Tre

Fasader i tre med balansert vindusplassering, inkludert balkonger på flere fasader

Trepanel til fasade med tilhørende balkonger

Maling Innvendig og utvendig maling

Ikke spesifisert, men nødvendig for trefasader og innvendige overflater

Maling av fasade og innvendige flater

Tømrer Innvendige vegger og tak

🧱 Tre

Tømrerarbeid for bolig i tre med saltak og flatt tak

Tømrerarbeid for boligens konstruksjon og innvendige overflater

Tak Saltak og flatt tak

🧱 Tegl på flatt tak, saltak med ukjent materiale

Saltak på hoveddelen, flatt tak med tegl på deler av bygget

Taktekking med saltak og flatt tak med teglmateriale

Gulv Innvendige gulv

Ikke spesifisert, men vanlig for bolig med stue, kjøkken og soverom

Innvendige gulv i bolig

Dører Ytterdører og balkongdører

Antall: 14

Totalt 14 dører inkludert inngangsdører, balkongdører og dører til garasje

Ytterdører og balkongdører i trebolig

Trapper Innvendige trapper

Antall: 2

To trapper mellom etasjer i bolig

Innvendige trapper i bolig

Terrasse Balkonger

🧱 Tre

Antall: 3

Balkonger på fasade nord, sør og vest

Balkonger i tre tilknyttet bolig

Garasjeport Garasjeport til integrert garasje

Antall: 1

Garasje på 15 m² med dør til bolig

Garasjeport til integrert garasje

Vinduer Fasadevindu

Antall: 14

Balansert vindusplassering i fasader, totalt 14 vinduer fordelt på to etasjer

Vinduer til fasade i trebolig

Grunnarbeid Terrengtilpasning og fundamentering

Minimal terrengbearbeiding, støttemur og lysgrav i terreng

Grunnarbeid med terrengtilpasning, støttemur og lysgrav

Elektro Elektrisk anlegg

Elektrisk anlegg for bolig, ingen løfteinnretninger planlagt

Elektrisk installasjon for bolig

VVS VA-ledninger og sanitærinstallasjoner

VA-ledninger prosjektert i henhold til kommunale krav, bad og toaletter i bolig

VVS-installasjoner for bolig med bad, toalett og teknisk rom

Ventilasjon Ventilasjonsanlegg

Ikke spesifisert, men vanlig for bolig i henhold til TEK

Ventilasjonsanlegg for bolig

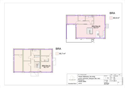
Plantegning

Enebolig 176.6 m²

Etasje 1 95.7 m²

Rom Areal Vinduer Dører
Stue 101 30.0 m² 2 2
Kjøkken 102 10.0 m² 1 1
Bad 103 6.0 m² 0 1
Gang 104 5.0 m² 0 2
Sove 1 105 12.0 m² 1 1
Sove 2 106 12.0 m² 1 1
Toalett 107 2.0 m² 0 1
Stue 108 15.4 m² 0 1
Bod 109 5.0 m² 0 1
Garasje 110 15.0 m² 0 1

Etasje 2 80.9 m²

Rom Areal Vinduer Dører
Stue 201 35.0 m² 2 1
Kjøkken 202 10.0 m² 1 1
Bad 203 6.0 m² 0 1
Gang 204 5.0 m² 0 2
Sove 1 205 12.0 m² 1 1
Sove 2 206 12.0 m² 1 1
Toalett 207 2.0 m² 0 1

Fasader

Ny bolig

Vest
Materiale
Tre
Taktype
Flatt tak
Takmat.
Tegl
Vinduer
5
Dører
2
Balkonger
1
Synlige etasjer
2

Enebolig

Nord
Materiale
Tre
Taktype
Saltak
Vinduer
1
Dører
1
Balkonger
1
Synlige etasjer
2
Sør
Materiale
Tre
Taktype
Saltak
Vinduer
2
Dører
1
Balkonger
1
Synlige etasjer
2

Hendelser

16.04.2026 Tilbakemelding - Gbnr. 200/4248, Aallsgate - Oppføring av enebolig
09.04.2026 Supplering av søknad - Gbnr. 200/4248, Aallsgate
20.03.2026 Mangelfull søknad - Gbnr. 200/4248, Aallsgate - Oppføring av enebolig
09.03.2026 Foreløpig svar - Gbnr. 200/4248, Aallsgate - Oppføring av enebolig
02.03.2026 Søknad om rammetillatelse - Gbnr. 200/4248, Aallsgate - Nytt bygg - bolig
02.03.2026 Supplering av søknad - Gbnr. 200/4248, Aallsgate - Nytt bygg - bolig