NewConstruction Ferdigattest Enebolig

Ny mikrohus med lekeplass i Åkresundvegen, Godøya

📍 Åkresundvegen 11 , 6055 GODØYA

Nøkkelinfo

Sakstype
Nybygg
Bygningstype
Enebolig
Bruksareal
31 m²
Boenheter
1
Kommune
Giske
Fylke
Møre og Romsdal
Gnr / Bnr
126 / 286
Saksnummer
2025/2495
Fase
Ferdigattest

Om byggesaken

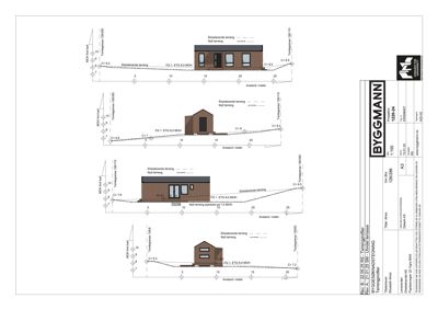
Ny frittliggende mikrohus på 30,7 m² BRA oppført i bindingsverk av tre med saltak og stående kledning. Bygget har ett plan med gesimshøyde på 2,85 m og mønehøyde på 3,69 m. Mikrohuset inneholder stue/kjøkken, to soverom, bad og bod/teknisk rom. Det er relativt store vindusflater som gir et moderne uttrykk. Tomten på 695 m² har opparbeidet parkeringsareal og en felles lekeplass på over 100 m² med klatrestativ, husker, sandkasse, balansestokk og benker, i tråd med reguleringsplanens rekkefølgekrav. Lekeplassen er ferdigstilt etter forsinkelser grunnet konkurs hos leverandør. Alle nødvendige fagområder er dekket av ansvarlige foretak med godkjente erklæringer. Ferdigattest er gitt i april 2026.

Produkter og materialer

Grunnarbeid Tomtearbeid og parkering

Opparbeidet parkeringsareal på 36 m², tomt på 695 m²

Grunnarbeid for tomt og parkeringsplass

Fasade Stående kledning

🧱 Tre

Stående kledning i tre, tradisjonelt utseende

Yttervegger med stående trepanel

Vinduer Fasadevindu

🧱 Tre/aluminium ramme ikke spesifisert

Antall: 9

Relativt store vindusflater, 3 vinduer nord, 2 sør, 2 vest, 2 øst

Vinduer i alle fasader for godt lysinnslipp

Lekeplass Lekeapparater og uteområde

Lekeplass på over 100 m² med klatrestativ, husker, sandkasse, balansestokk og benker, fallunderlag med fallsand, gressdekke

Felles lekeplass opparbeidet i henhold til reguleringsplanens rekkefølgekrav

Terrasse Terrasse/platting

🧱 Tre

Utvidet terrasse iht. tegninger

Terrasse/platting tilknyttet mikrohuset

Elektro Elektriske installasjoner

Elektriske varmekabler og panelovner

Elektrisk varme og installasjoner

VVS Innvendig sanitæranlegg

Utført av Nordstrand VVS AS og Rørlegger - AS, inkludert elektriske varmekabler og panelovner

Sanitærinstallasjoner og varmefordeling

Dører Ytterdører

🧱 Tre eller glass, ikke spesifisert

Antall: 5

1 dør nord, 2 dører sør, 1 dør vest, 1 dør øst

Ytterdører i alle fasader

Tak Saltak

🧱 Tre, taktekking ikke spesifisert

Saltak med mønehøyde 3,689 m og gesimshøyde 2,851 m

Saltak med tradisjonell konstruksjon

Overvann Overvannshåndtering

Prosjektert og utført av Røsvik Maskin og Transport, inkl. dimensjonering for klimajustert 100-års nedbør

Overvannshåndtering på tomt

Tømrer Bindingsverk og konstruksjon

🧱 Tre

Utført av Direktehandel AS

Tømrerarbeid for mikrohusets konstruksjon

Fasader

Enebolig

Nord
Materiale
Tre
Taktype
Saltak
Høyde
2.9 m
Mønehøyde
3.7 m
Vinduer
3
Dører
1
Synlige etasjer
1
Sør
Materiale
Tre
Taktype
Saltak
Høyde
2.9 m
Mønehøyde
3.7 m
Vinduer
2
Dører
2
Synlige etasjer
1
Vest
Materiale
Tre
Taktype
Saltak
Høyde
2.9 m
Mønehøyde
3.7 m
Vinduer
2
Dører
1
Synlige etasjer
1
Øst
Materiale
Tre
Taktype
Saltak
Høyde
2.9 m
Mønehøyde
3.7 m
Vinduer
2
Dører
1
Synlige etasjer
1

Hendelser

22.04.2026 Vedtak - Gbnr 126/286 - Åkresundvegen 11 - Mikrobustad - Ferdigattest
21.04.2026 Gbnr 126/286 - Søknad om ferdigattest
16.04.2026 Gbnr 126/286 - Åkresundvegen - Mikrobustad - Korrespondanse om ferdigattest
13.04.2026 Gbnr 126/286 - Åkresundvegen - Mikrobustad - vedr. ferdigattest
13.04.2026 Gbnr 126/286 - Åkresundvegen - Mikrobustad - supplerande informasjon
13.04.2026 Gbnr 126/286 - Åkresundvegen - Mikrobustad - supplerande opplysninger
16.12.2025 Gbnr 126/286 - Åkresundvegen - Mikrobustad - Informasjon om mellombels bruksløyve
10.12.2025 Gbnr 126/286 - Åkresundvegen - Mikrobustad - søknad om mellombels brukstillatelse
08.12.2025 Gbnr 126/286 - Åkresundvegen - innmåling mikrohus
03.12.2025 Gbnr 126/286 - Åkresundvegen - Mikrobustad - supplering av søknad
30.06.2025 Vedtak - Gbnr 126/286 - Åkresundvegen - Mikrobustad
27.05.2025 Gbnr 126/286 - Supplering av søknad
20.05.2025 Gbnr 126/286 - Åkresundvegen - Mikrobustad - Etterspør supplerande opplysningar
06.05.2025 Gbnr 126/286 - Godøya - Søknad om tillatelse i ett trinn - mikrohus