NewConstruction Igangsettingstillatelse Enebolig

Ny bolig med naust og næringsdel på Andabeløy 163C

📍 Andabeløy 163C , 4434 ANDABELØY

Nøkkelinfo

Sakstype
Nybygg
Bygningstype
Enebolig
Bruksareal
246 m²
Boenheter
1
Kommune
Flekkefjord
Fylke
Agder
Gnr / Bnr
109 / 240
Saksnummer
25/00112
Fase
Igangsettingstillatelse

Om byggesaken

Ny bolig på tre plan med samlet bruksareal på 439,5 m² og bebygd areal på 245,5 m² oppføres på Andabeløy 163C. Bygget inkluderer to boligetasjer over en underetasje som fungerer som naust og næringsdel for marin virksomhet. Boligen har saltak med 35 graders takvinkel, fasader i tre og teglsteinstak. Underetasjen er betongkonstruksjon dimensjonert for stormflo og havstigning. Det etableres felles spillvannssystem med mekanisk rensing via 3-kamret slamavskiller og utslipp i sjø på minimum 10 meters dyp, 50 meter fra land. Overvann ledes til terreng for naturlig infiltrasjon. Det er én trapp i boligen, flere soverom, bad, vaskerom og stuer fordelt på etasjene. Det er godkjent plassering med nabosamtykke og avstand til nabogrense iht. regelverk. Prosjektet har igangsettingstillatelse for grunn- og betongarbeider, og tiltakshaver har selvbyggeransvar for flere deler av prosjektet.

Produkter og materialer

Grunnarbeid Veg- og grunnarbeider

Grunnarbeider for bygg og utearealer

Grunnarbeid for bolig og tilhørende uteområder

Dører Ytterdører og innerdører

🧱 tre eller tilsvarende

Antall: 15

Ytterdører og innerdører i bolig og naust/næringsdel

Dører for adkomst og rominndeling i bolig og naust

Ventilasjon Ventilasjonsanlegg

Ventilasjon iht. TEK17

Ventilasjonsløsning for bolig

Tak Saltak med teglstein

🧱 Teglstein

Antall: 1

Saltak med 35 graders takvinkel

Taktekking for bolig med teglstein

Vinduer Fasadevindu

🧱 tre/alu eller tilsvarende

Antall: 14

Vinduer i flere rom, inkludert soverom og stue, med krav til personsikkerhetsglass

Fasadevindu i boligets etasjer for lys og utsyn

Fasade Trepanel

🧱 Tre

Fasader i tre

Utvendig kledning i tre for bolig

Overflater Innvendige gulv og vegger

🧱 Eikeparkett og fliser (antatt)

Standard innvendige overflater i bolig, bad og vaskerom

Innvendige overflater for boligrom

VVS Vannforsyning

🧱 PE100 SDR11 rør 110 mm og 32 mm

Ny kommunal hovedvannledning med tilknytning til boligene, inkludert brannkum og brannventiler

Vannforsyningssystem med brannvannuttak

Terrasse Veranda

🧱 Tre

Antall: 1

Veranda med bebygd areal 80 m² i andre etasje

Utendørs veranda tilknyttet bolig

VVS Avløpsanlegg med slamavskiller og pumpekum

🧱 PVC SR8 rør 110 mm, 3-kamret slamavskiller

Felles spillvannssystem med mekanisk rensing og utslipp i sjø på minimum 10 m dyp, 50 m fra land

Avløpssystem med slamavskiller, pumpekum og sjøutslipp

Betong Plasstøpte betongkonstruksjoner

🧱 Betong

Betongfundament og underetasje dimensjonert for stormflo og havstigning

Betongkonstruksjoner for naust og næringsdel under bolig

Elektro Elektrisk anlegg

Elektrisk installasjon iht. TEK17 og forskrifter

Elektrisk anlegg for bolig og naust

Trapper Innvendig trapp

🧱 tre eller betong

Antall: 1

Trapp mellom etasjer i bolig

Innvendig trapp for adkomst mellom boligetasjer

Maling Utvendig og innvendig maling

Maling av trefasader og innvendige flater

Overflatebehandling for fasader og innvendige rom

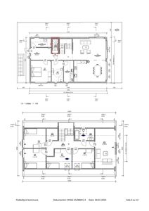
Plantegning

Enebolig 245.5 m²

Etasje 1 165.5 m²

Rom Areal Vinduer Dører
Stue 101 92.0 m² 2 1
Soverom 102 25.0 m² 1 1
Gang 103 15.5 m² 0 1
Bad 104 15.5 m² 0 1
Vaskerom 105 8.0 m² 0 1
Bad 106 9.7 m² 0 1
Sov 107 16.8 m² 1 1

Etasje 2 80.0 m²

Rom Areal Vinduer Dører
Soverom 201 40.0 m² 2 1
Soverom 202 40.0 m² 2 1
Gang 203 18.8 m² 0 2
Bad 204 6.3 m² 0 1
Stue 205 21.0 m² 1 1
Sov 206 11.5 m² 1 1
Sov 207 11.6 m² 1 1
Sov 208 11.5 m² 1 1

Bolig med naust og næringsdel 995.7 m²

Etasje 0 158.3 m²

Rom Areal Vinduer Dører
Bod BTA bod 39.0 m² 0 1
Sjøbod BTA sjøbod 119.3 m² 0 1

Etasje 1 270.0 m²

Rom Areal Vinduer Dører
P-rom 1.etasje P-rom 1.etasje 127.6 m² 0 0
BTA 1.etasje BTA 1.etasje 142.1 m² 0 0

Etasje 2 167.0 m²

Rom Areal Vinduer Dører
BTA 2.etasje BTA 2.etasje 95.0 m² 0 0
Terrasse BTA terrasse 108.9 m² 0 0

Etasje 3 193.9 m²

Rom Areal Vinduer Dører
Bod BRA bod 35.5 m² 0 1
Sjøbod BRA sjøbod 112.4 m² 0 1
ÅOA BRA ÅOA 76.3 m² 0 0

Etasje 4 206.5 m²

Rom Areal Vinduer Dører
Bod BYA bod 35.5 m² 0 1
Sjøbod BYA sjøbod 112.4 m² 0 1
ÅOA BYA ÅOA 80.0 m² 0 0

Hendelser

09.04.2026 25/00112-11 Administrativt vedtak om igangsetting av grunn- og betongarbeider, samt innvilget selvbyggeransvar på gnr. 109, bnr. 240 - Andabeløy 163C
07.04.2026 25/00112-8 Andabeløy 163C Supplering av søknad 109/240
07.04.2026 25/00112-7 Supplering, flere mål på sit.plan + samtykke
07.04.2026 25/00112-9 Administrativt vedtak om rammetillatelse til bolig med naust og næringsdel på gnr. 109, bnr. 240 - Andabeløy 163C
30.03.2026 25/00112-6 Status i byggesak 25/00112 Andabeløy 109/240
26.03.2026 25/00112-5 Vedtak om tillatelse til utslipp via slamavskiller til sjø – Andabeløy 163C, gnr. 109 bnr. 240 og 25 vedtak
08.10.2025 25/00112-4 Andabeløy 163C Supplering av søknad -endring i søknad om rammetillatelse rammetillatelse
12.03.2025 25/00112-3 Bekreftelse på mottatt epost
20.01.2025 25/00112-2 Andabeløy 163C Søknad om igangsettingstillatelse 109/240 igangsettingstillatelse
09.01.2025 25/00112-1 Andabeløy 163C Søknad om rammetillatelse 109/240 rammetillatelse