NewConstruction UnderBehandling Enebolig

Hovedombygging og ny garasje på Asdal 87, Arendal

📍 Asdal 87 , 4824 BJORBEKK

Nøkkelinfo

Sakstype
Nybygg
Bygningstype
Enebolig
Bruksareal
277 m²
Boenheter
1
Kommune
Arendal
Fylke
Agder
Gnr / Bnr
436 / 711
Saksnummer
2026/839
Fase
Under behandling

Om byggesaken

Prosjektet omfatter total hovedombygging og transformasjon av en eldre bolig med tilhørende anneks på Asdal 87 i Arendal. Boligen skal heves for å oppnå tilstrekkelig takhøyde, med riving av tak og 2. etasje, og muligens store deler av 1. etasje, mens kjelleretasjen bevares og oppgraderes med ny innvendig trapp, etterisolering og drenering. Tilbygget mot nord kobler sammen annekset med hovedhuset, og består av en etasje med bad, teknisk rom og soverom. Fasaden får tradisjonell saltakskonstruksjon med trekledning i brungrå farge og skiferkledning på sokkel og mur. Store vindusflater og balkonger på 0,8 m dybde gir godt lys og utsikt mot elva. Ny frittstående garasje på 49 m² oppføres på tomten. Totalt bruksareal økes fra 147 m² til 277 m², med boareal økt fra 81 m² til 215 m². Tiltaket er tilpasset hensynssoner for flom, skred og kulturmiljø, med dispensasjonssøknader for rivning og bygging i 100-metersbeltet langs Nidelva.

Produkter og materialer

Gulv Innvendige gulv i oppholdsrom og våtrom

Nye gulvkonstruksjoner med tilstrekkelig bæreevne og isolasjon

Oppgradering av gulv i hele boligen, inkludert bad

Betong Kjellergulv pigges opp og senkes

🧱 Betong

Innvendig pigging og etterisolering av kjellergulv for økt takhøyde og bedre isolasjon

Oppgradering av kjelleretasjen for bruk som oppholdsrom

Elektro Elektriske installasjoner i ny og ombygd bolig

Oppgradering av elektriske anlegg i henhold til gjeldende forskrifter

Nye elektriske installasjoner i bolig og tilbygg

VVS Sanitærinstallasjoner for bad og vaskerom

Nye bad og teknisk rom med sanitærinstallasjoner iht. TEK17

Oppgradering av våtrom og tekniske installasjoner

Grunnarbeid Drenering og oppgradering av grunnmur

Dreneringsarbeid rundt kjeller, mur behandlet med vanntett sementbasert slemming

Tiltak for å sikre mot fukt og flom, samt oppgradering av eksisterende grunnmur

Vinduer Store fasadevinduer med aluminiumsprofilerte trevinduer

🧱 Aluminiumsprofilerte trevinduer

Antall: 21

Mørkegrå, vedlikeholdsfrie, inkludert 12 vinduer mot øst, 5 mot sør, 2 mot nord og 2 mot vest

Store vindusflater for god dagslysinnslipp og utsikt, inkludert gavelvinduer og dobbelt skyvedør

Rekkverk Balkongrekkverk

Antall: 3

Rekkverk på balkonger med 0,8 m dybde, ikke understøttet med søyler

Sikkerhetsrekkverk på balkonger for vindusvask og fasadevedlikehold

Tak Saltak med båndtekking eller tilsvarende platemateriale

🧱 Stål/båndtekking

Antall: 1

Tradisjonell saltakskonstruksjon med møneretning vendt mot elva og gårdsplassen

Nytt tak på bolig og tilbygg med vedlikeholdsvennlig takmateriale

Trapper Innvendig trapp mellom kjeller og 1. etasje

Antall: 1

Ny trapp planlagt for innlemming av kjeller i oppholdsareal

Innvendig trapp for tilkomst mellom kjeller og oppholdsrom

Garasjeport Garasjeport til ny garasje

Antall: 1

Port til ny frittstående garasje på 49 m²

Garasjeport for biloppstilling

Fasade Trekledning og skiferkledning

🧱 Royalimpregnert trekledning og skiferkledning på sokkel og mur

Brungrå stående rett trekledning, mørk platekledning på gavler, skiferkledning på mur og anneks

Fasade med tradisjonelle og vedlikeholdsvennlige materialer som bryter opp volum og skala

Dører Ytterdører og skyvedører i aluminiumsprofilerte trekarmer

🧱 Aluminiumsprofilerte trekarmer

Antall: 7

Mørkegrå, vedlikeholdsfrie, inkludert 1 dør mot øst, 3 mot sør, 1 mot vest, og 2 innvendige dører i 2. etasje

Ytterdører og skyvedører for utgang til balkonger og uteplass

Ventilasjon Ventilasjons- og klimainstallasjoner

Planlagt ventilasjon og klimainstallasjoner i henhold til TEK17

Nye ventilasjonsanlegg for forbedret inneklima

Maling Innvendig og utvendig maling

Maling av fasader, vinduer, dører og innvendige flater

Overflatebehandling for beskyttelse og estetikk

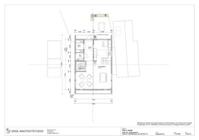
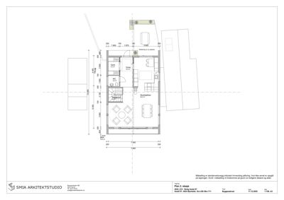
Plantegning

Enebolig 76.6 m²

Etasje 2 76.6 m²

Rom Areal Vinduer Dører
Stue/kjøkken 201 55.0 m² 3 1
Entre 202 8.2 m² 0 1
Gard. 203 4.2 m² 0 1
WC 204 2.6 m² 0 1
Trapperom 205 4.4 m² 0 0

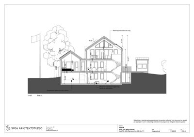
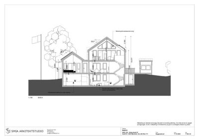
Fasader

Enebolig

Nord
Materiale
Tre
Taktype
Saltak
Takmat.
Stål
Vinduer
2
Dører
0
Synlige etasjer
2
Øst
Materiale
Tre
Taktype
Saltak
Høyde
2.4 m
Vinduer
12
Dører
1
Balkonger
2
Synlige etasjer
3
Sør
Materiale
Tre
Taktype
Saltak
Vinduer
5
Dører
3
Balkonger
1
Synlige etasjer
2
Vest
Materiale
Tre
Taktype
Saltak
Vinduer
2
Dører
1
Synlige etasjer
1

Hendelser

21.04.2026 Uttalelse fra Agder Fylkeskommune
17.03.2026 Kulturminnefaglig uttalelse til riving - gnr/bnr 436/711 - Asdal 87 - ombygging og riving
11.03.2026 Uttalelse til søknad om dispensasjon - 436/711
19.02.2026 Oversendelse på høring
19.02.2026 436/711/0/0 - Asdal 87 - endring av bygg - hovedombygging - tilbakemelding
19.02.2026 Oversendelse på høring
13.02.2026 436/711 - Ber om tilbakemelding
09.01.2026 Asdal 87, melding om mottatt søknad
08.01.2026 Asdal 87 Søknad om tillatelse i ett trinn 436/711