NewConstruction Rammetillatelse Enebolig

Ny enebolig med garasje i Arnemo, Tynset

📍 Aumliveien 39 , 2500 TYNSET

Nøkkelinfo

Sakstype
Nybygg
Bygningstype
Enebolig
Bruksareal
211 m²
Boenheter
1
Kommune
Tynset
Fylke
Innlandet
Gnr / Bnr
41 / 73
Saksnummer
2025/3707
Fase
Rammetillatelse

Om byggesaken

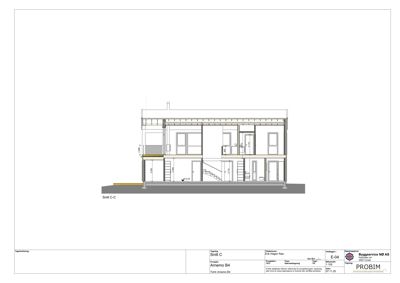
Ny toetasjes enebolig med saltak og tilhørende frittliggende garasje med pulttak oppføres på tomt B4 i Arnemo boligfelt, Tynset. Boligen har et bruksareal på 211,3 m² og bebygd areal på 166,4 m², med moderne uttrykk preget av stående trepanel i jordfarger og mørke vinduer og dører. Tomten er skrånende, og terrenget på sør- og vestsiden bygges opp i nivåer for å redusere fyllingsbehov og skape funksjonelle uteområder. Garasjen er under 50 m² og plasseres nær eiendomsgrense i henhold til reguleringsbestemmelser. Bygningen inneholder flere rom fordelt på to etasjer, inkludert stuer, kjøkken, soverom, bad, vaskerom og boder. Det er to balkonger og en trapp i boligen. Terrenginngrepene er planlagt for å minimere skadevirkninger og tilpasses reguleringsplanens krav. Offentlig vann- og avløpsnett tilknyttes, og det er etablert ansvarlige foretak for alle fagområder i prosjektet.

Produkter og materialer

Kjøkken Kjøkkeninnredning

Antall: 1

Kjøkken i 2. etasje

Kjøkkeninnredning og utstyr

Tak Saltak bolig, pulttak garasje

Antall: 2

Saltak på bolig, pulttak på garasje

Taktekking for bolig og garasje

Elektro El-skap og elektriske installasjoner

El-skap i bolig

Elektriske installasjoner i bolig

Fasade Utvendig kledning

🧱 Tre, stående panel i jordfarger

Moderne uttrykk med jordfarger

Utvendig kledning på bolig og garasje

Pipe Pipe

Antall: 1

Pipe på bolig

Pipe for bolig

Betong Plasstøpte punktfundamenter

🧱 Betong

Fundamenter for bolig og garasje

Betongfundamenter for bygg

Tømrer Trekonstruksjoner

🧱 Tre

Montering av trekonstruksjoner for bolig og garasje

Tømrerarbeid for bolig og garasje

Ventilasjon Ventilasjonsanlegg

Ventilasjons- og klimainstallasjoner for bolig

Ventilasjonssystem for bolig

Balkong Balkonger

Antall: 2

To balkonger på bolig

Balkonger til uteopphold

Grunnarbeid Terrengfylling og planering

🧱 Massedeponering og fyllmasser

Terreng oppbygget i nivåer for utearealer og avkjørsel

Grunnarbeid for tilpasning av tomt og uteområder

Vinduer Fasadevindu bolig og garasje

🧱 Mørke rammer

Antall: 14

Mørke vinduer i bolig og garasje

Vinduer til bolig og garasje

Garasjeport Garasjeport

Antall: 1

Garasjeport til frittliggende garasje

VVS Sanitærinstallasjoner

Sanitærinstallasjoner i bolig

VVS-installasjoner for bolig

Trapper Innvendig trapp

Antall: 1

Innvendig trapp mellom etasjer i bolig

Utendørs Utearealer og landskapsutforming

Opparbeidelse av utearealer, terrengfylling, adkomst og parkeringsplass

Uteområder og landskapsarbeid rundt bolig og garasje

Bad Baderomsinnredning og fliser

Antall: 2

Bad i 1. og 2. etasje

Bad med sanitærutstyr og fliser

Gulv Innvendige gulv

Ikke spesifisert, men bolig har flere rom med gulvflater

Innvendige gulvflater i bolig

Dører Ytterdører bolig og garasje

🧱 Mørke dører

Antall: 14

Mørke ytterdører i bolig og garasje

Ytterdører til bolig og garasje

Plantegning

Enebolig 192.9 m²

Etasje 1 116.6 m²

Rom Areal Vinduer Dører
Entre 101 7.1 m² 0 2
Stue 102 12.2 m² 1 1
Sov 103 9.1 m² 1 1
Sov 104 10.4 m² 1 1
Bod 105 7.0 m² 0 1
Sov 106 8.8 m² 1 1
Gang 107 7.2 m² 0 2
Bad 108 7.0 m² 0 1
Vask/tekn. 109 6.7 m² 0 1
Gang 110 3.8 m² 0 1
Bod 112 3.8 m² 0 1

Etasje 2 76.3 m²

Rom Areal Vinduer Dører
Stue 201 24.0 m² 2 2
Kjøkken 202 12.0 m² 1 1
Gang 203 8.0 m² 0 2
Bad 204 6.0 m² 0 1
Vaskerom 205 4.0 m² 0 1
Gang 206 10.0 m² 0 1
Sovegang 207 12.3 m² 0 0

Fasader

Garasje

Vest
Materiale
Tre
Taktype
Flatt tak
Vinduer
0
Dører
1
Synlige etasjer
1
Øst
Materiale
Tre
Taktype
Flatt tak
Vinduer
2
Dører
2
Synlige etasjer
1

Bolig

Vest
Materiale
Tre
Taktype
Flatt tak
Vinduer
5
Dører
2
Balkonger
2
Synlige etasjer
2
Sør
Materiale
Tre
Taktype
Saltak
Vinduer
3
Dører
1
Balkonger
1
Synlige etasjer
2

Enebolig

Nord
Materiale
Tre
Taktype
Saltak
Vinduer
1
Dører
2
Synlige etasjer
2
Øst
Materiale
Tre
Taktype
Flatt tak
Vinduer
2
Dører
2
Synlige etasjer
2

Hendelser

21.04.2026 Vedrørende klagesaker for tomtene B4 og B5 på Arnemo
09.04.2026 Foreløpig melding - Klage på byggetillatelse - Gbnr. 41/73 i Tynset kommune
01.04.2026 Oversending av klage på vedtak om byggetillatelse for enebolig med garasje. Tomt B4, reguleringsplan for Arnemo.
23.03.2026 25/3707 - Arnemo - B4 - Klage på vedtak datert 04.03.2026
04.03.2026 Melding om delegert vedtak - GBNR 41/73 - Enebolig og garasje - Tillatelse til tiltak.
26.02.2026 2025/3707 Gnr. 41 Bnr. 73. Arnemo Krav om dekning av sakskostnader
05.02.2026 Beslutning med bakgrunn i mottatt klage
16.01.2026 Bekreftelse på mottatt klage på vedtak nr 25/482
15.01.2026 SV: 25/3707 – 41/73 - Arnemo - Klage på tillatelse til tiltak og anmodning om utsatt iverksetting
15.01.2026 SV: 25/3707 – 41/73 - Arnemo - Klage på tillatelse til tiltak og anmodning om utsatt iverksetting
15.01.2026 Vs: 25/3707 – 41/73 - Arnemo - Klage på tillatelse til tiltak og anmodning om utsatt iverksetting
11.12.2025 Svar - 25/3707 - 41/73 Arnemo - Angående klage
11.12.2025 25/3707 - 41/73 Arnemo - Angående klage
28.11.2025 Melding om delgert vedtak - GBNR 41/73 - Bolig med garasje - Tillatelse til tiltak
28.11.2025 Fakturagrunnlag - GBNR 41/73 - Bolig med garasje - Tillatelse til tiltak
25.11.2025 Søknad om tillatelse i ett trinn 41/73