NewConstruction UnderBehandling Enebolig

Ny enebolig med garasje på Bakkekroken 7E, Hyggen

📍 Bakkekroken 7E , 3442 HYGGEN

Nøkkelinfo

Sakstype
Nybygg
Bygningstype
Enebolig
Bruksareal
371 m²
Boenheter
2
Kommune
Asker
Fylke
Akershus
Gnr / Bnr
277 / 5
Saksnummer
22/4500
Fase
Under behandling

Om byggesaken

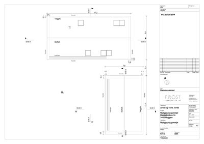
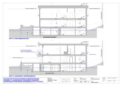
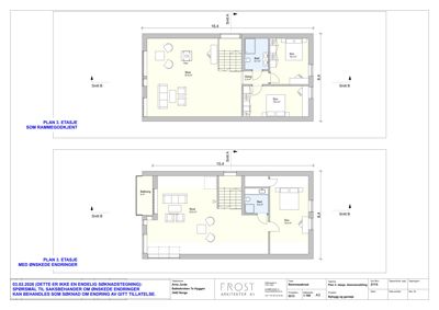
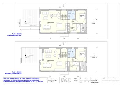
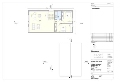
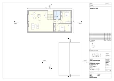
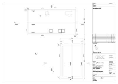
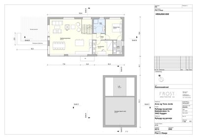
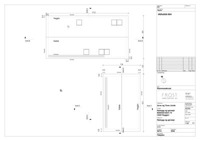
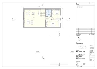
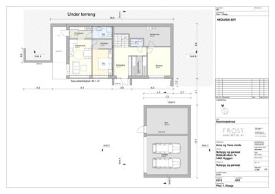
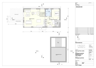
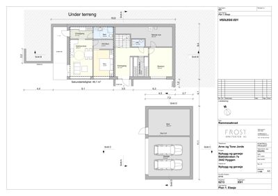
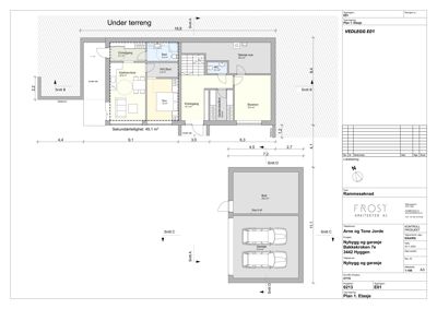
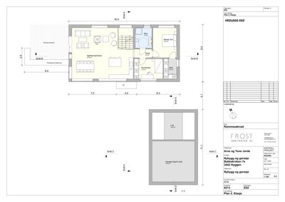
Ny frittliggende enebolig med integrert sekundær boenhet og tilhørende garasje/uthus oppføres på eiendommen Bakkekroken 7E i Hyggen, Asker kommune. Boligen er planlagt i tre etasjer med saltak, lys trekledning og tradisjonell form som harmonerer med omkringliggende bebyggelse. Totalt oppvarmet BRA er ca. 348 m², med garasje og bod på ca. 75 m². Boligen har flere soverom, bad, tekniske rom, stuer og kjøkken, samt balkong på 6 m². Garasjen har plass til to biler og bod. Eiendommen er på ca. 4023 m², med bebyggelsen plassert på flatere deler av tomten for å minimere terrenginngrep. Det er etablert vann- og avløpsanlegg, brannkum og adkomst via eksisterende vei. Geoteknisk vurdering konkluderer med at tiltaket ikke utløser kvikkleireskredfare. Utomhusplan viser støttemurer, gruslagt oppkjørsel og utearealer. Prosjektet har fått dispensasjon fra plankravet i kommuneplanen etter politisk vedtak, og igangsettingstillatelse er under behandling.

Produkter og materialer

Betong Grunnmur og fundamentering

🧱 Betong

Grunnmur benyttes eksisterende, ny bolig fundamenteres på berg

Betongfundament og grunnmur for bolig og garasje

Trapper Innvendig trapp

Antall: 2

To trapper i bolig, intern trapp mellom etasjer

Innvendige trapper i bolig

Elektro Strømforsyning

Ny strømkabel dimensjonert for bolig og garasje lagt frem til eiendommen

Elektrisk installasjon og strømtilførsel

Maling Innvendig og utvendig maling

Maling av fasader og innvendige flater antatt nødvendig

Maling og overflatebehandling

Gulv Innvendige gulv

Ikke spesifisert i dokumenter, men bolig har tekniske rom og oppholdsrom

Innvendige gulv i bolig

Bad Bad og WC

Antall: 4

Bad og WC i bolig og sekundærleilighet, i henhold til TEK17

Sanitærinstallasjoner og baderomsinnredning

Rekkverk Glassrekkverk balkong

🧱 Glass

Antall: 1

Glassrekkverk på balkong i 3. etasje

Rekkverk for balkong

Dører Ytterdører og balkongdør

🧱 Tre

Antall: 8

Ytterdører til bolig og garasje, inkludert dør til balkong

Ytterdører i tre til bolig og garasje, samt balkongdør

Grunnarbeid Støttemurer og terrengjustering

🧱 Stein og betong

Antall: 4

Støttemurer med høyder fra 0,5 til 2,7 meter, terrengjusteringer rundt bolig og garasje

Støttemurer og terrengarbeid for tilpasning av tomt

Fasade Trekledning

🧱 Tre

Lys trekledning på bolig og garasje

Fasadebekledning i tre

Terrasse Markterrasse og balkong

Antall: 2

Markterrasse til bolig og sekundærleilighet, balkong på 6 m² i 3. etasje

Uteoppholdsarealer på terreng og balkong

Vinduer Fasadevindu

🧱 Tre

Antall: 22

Vinduer i bolig og garasje, inkludert takvinduer i 3. etasje, med plassering for utsikt mot vest

Fasadevindu i tre til bolig og garasje, inkludert takvinduer

Tømrer Innvendige vegger og tak

🧱 Tre

Innvendige vegger og tak i bolig og sekundærleilighet

Tømrerarbeid for boliginteriør

VVS Vann- og avløpsinstallasjoner

Offentlig vann- og avløpsnett tilkoblet, inkludert brannkum på eiendommen

Vann- og avløpsinstallasjoner, sanitærabonnement må godkjennes

Garasjeport Dobbel garasjeport

Antall: 1

Garasje med plass til to biler, port ikke spesifisert

Garasjeport for biloppstilling

Tak Saltak og valmtak

🧱 Takstein eller lignende

Antall: 2

Saltak på bolig og garasje, takvinkel 30 grader

Taktekking for bolig og garasje med saltak og valmtak

Fasader

Enebolig

Øst
Materiale
Tre
Taktype
Saltak
Høyde
6.2 m
Mønehøyde
8.6 m
Vinduer
3
Dører
0
Synlige etasjer
2
Sør
Materiale
Tre
Taktype
Flatt tak
Høyde
6.2 m
Mønehøyde
8.6 m
Vinduer
7
Dører
1
Synlige etasjer
2
Nord
Materiale
Tre
Taktype
Flatt tak
Høyde
6.2 m
Mønehøyde
8.6 m
Vinduer
5
Dører
0
Synlige etasjer
2
Vest
Materiale
Tre
Taktype
Valmtak
Høyde
6.2 m
Mønehøyde
8.6 m
Vinduer
5
Dører
2
Synlige etasjer
2

Nybygg og garasje

Nord
Materiale
Tre
Taktype
Saltak
Høyde
6.2 m
Mønehøyde
8.6 m
Vinduer
6
Dører
1
Synlige etasjer
2

Hendelser

09.04.2026 277/5 Bakkekroken 7E - Søknad om igangsettingstillatelse
18.02.2026 277/5 Bakkekroken 7E - Tilbakemelding nr. 2 på om endringer kan behandles som en søknad om endring av gitt tillatelse
13.02.2026 277/5 Bakkekroken 7E - Spørsmål om status på svar om ønskede endringer kan behandles som søknad om endring av tillatelse
12.02.2026 277/5 Bakkekroken 7E - Oppfølgingsspørsmål til forespørsel om ønskede endringer og kommunens vurdering av krav til ny søknad
12.02.2026 277/5 Bakkekroken 7E - Tilbakemelding på om endringene kan behandles som en søknad om endring av gitt tillatelse
06.02.2026 277/5 Bakkekroken 7E - Spørsmål om ønskede endringer kan behandles som søknad om endring av tillatelse
21.01.2026 277/5 Bakkekroken 7E - Ønsker samtale om en mulig søknad om endring av tillatelse
21.12.2023 277/5 Svar på spørsmål om igangsettingstillatelse og brannkum
09.11.2023 277/5 Spørsmål om igangsettingstillatelsessøknad og brannkum
12.09.2023 277/5 Godkjent rammesøknad - Nybygg enebolig og garasje
08.09.2023 277/5 Informasjon om saksbehandlingstid
05.09.2023 277/5 Melding om politisk vedtak - Nybygg enebolig og garasje
05.09.2023 277/5 Kopi av politisk sak - klagebehandling - Vedlegg til saksfremlegg
05.09.2023 277/5 Kopi av politisk sak - klagebehandling - Saksfremlegg med vedlegg
04.09.2023 277/5 Saksprotokoll PB, 30082023, Sak 83-23 - Nybygg enebolig og garasje
30.06.2023 277/5 Kvittering for mottatt klage - Nybygg enebolig og garasje
26.06.2023 277/5 Ber om status på behandling av klage - Nybygg enebolig og garasje
12.06.2023 277/5 Klage på avslag på søknad - Nybygg enebolig og garasje
19.05.2023 277/5 Avslag på rammesøknad om nybygg enebolig og garasje
04.05.2023 277/5 E-postkorrepondanse om saksgang
16.03.2023 277/5 E-postkorrespondanse om saksbehandlingstid - Nybygg enebolig og garasje
01.03.2023 277/5 Redegjørelse og supplering av søknad - Nybygg enebolig og garasje
28.02.2023 277/5 Gjennomføringsplan - Nybygg enebolig og garasje
07.02.2023 277/5 Varsel om avslag på søknad om nybygg enebolig og garasje
02.01.2023 277/5 Svar på nabovarsel - Nybygg enebolig og garasje
29.12.2022 277/5 Kvitteringsbrev - Nybygg enebolig og garasje
28.12.2022 277/5 Søknad om nybygg enebolig og garasje