NewConstruction UnderBehandling Enebolig

Ny enebolig med utleiedel i Bankgata 54, Bodø

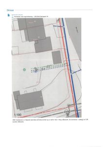
📍 Bankgata 54 , 8004 BODØ

Nøkkelinfo

Sakstype
Nybygg
Bygningstype
Enebolig
Bruksareal
212 m²
Boenheter
2
Kommune
Bodø
Fylke
Nordland - Nordlánnda
Gnr / Bnr
2025 / 3126
Saksnummer
2026/2998
Fase
Under behandling

Om byggesaken

Ny enebolig i to etasjer med utleiedel på Bankgata 54 i Bodø kommune. Bygget har et samlet oppvarmet bruksareal på ca. 170,6 m² og et totalt areal på 211,8 m² inkludert boder og sportsboder. Boligen har saltak og tre som fasademateriale, med flere vinduer og dører fordelt på alle fasader. Planløsningen inkluderer stue/kjøkken, flere soverom, bad, vaskerom, gang/trapp og boder. Det er etablert uteoppholdsarealer på bakkenivå med plattinger. Bygget er plassert nord på tomten med hensyn til solforhold, støy og nabobebyggelse. Støyutredning viser at deler av fasaden ligger i gul støysone fra vegtrafikk og flystøy, og det anbefales vinduer med lydreduksjon og balansert ventilasjon for å sikre tilfredsstillende innendørs støynivå. Det foreligger godkjent avkjørselstillatelse og tilknytning til offentlig vann- og avløpsnett. Prosjektet er i søknadsfase med pågående tilleggsdokumentasjon.

Produkter og materialer

Garasjeport Garasjeport

Antall: 2

Garasjeporter tilknyttet bolig og utleiedel

Gulv Isolert gulv på grunn

🧱 Trykkfast isolasjon klasse 38

300 mm isolasjon, U-verdi 0,123 W/(m²K)

Isolert gulv på grunn for bolig

Terrasse Platting uteoppholdsareal

Antall: 2

To uteoppholdsarealer på bakkenivå vest for bygget, begge som platting

Uteoppholdsarealer for rekreasjon og opphold

Vinduer Lydisolerende vinduer

Antall: 14

R’w + Ctr ≥ 38 dB for soverom, R’w + Ctr ≥ 32 dB for øvrige støyfølsomme rom

Vinduer med høy lydisolasjon for å tilfredsstille krav til innendørs støynivå i gul støysone fra veg- og flytrafikk

Maling Innvendig og utvendig maling

Maling av fasade og innvendige flater

Ventilasjon Balansert ventilasjon

Antall: 2

Balansert ventilasjon for bolig og utleiedel, med lydisolasjon EI30, R’w 55 dB

Balansert ventilasjon for å sikre tilfredsstillende innendørs lydnivå

Betong Fundament og grunnmur

Betongarbeid for fundament og grunnmur

Tak Saltak

🧱 Tre

Antall: 1

Isolasjon 300 mm mineralull klasse 34, U-verdi 0,118 W/(m²K)

Saltak med god isolasjon over kaldt loft

Fasade Trepanel

🧱 Tre

Trepanel som fasademateriale på alle fasader

VVS Vannbåren varme

Vannbåren varme i utleiedel, skorstein i hoveddel

Oppvarming med vannbåren varme i utleiedel og skorstein i hoveddel

Dører Ytterdører

🧱 Tre

Antall: 7

Ytterdører i tre til bolig og utleiedel

Pipe Skorstein

🧱 Mur

Antall: 2

Skorstein til hoveddel og utleiedel

VVS Sanitærinstallasjoner

Tilkobling til offentlig vann- og avløpsnett, inkl. spillvann, overvann og vannledning

Sanitærinstallasjoner med godkjent tilknytning til kommunalt nett

Tømrer Bygging av boligkonstruksjon

Tømrerarbeid for oppføring av bolig og utleiedel

Grunnarbeid Tomtearbeid og oppmåling

Oppmåling og grensepåvisning, justering av tomtegrense

Grunnarbeid med oppmåling og tilpasning til tomtegrense

Elektro Elektriske installasjoner

Elektriske installasjoner i bolig og utleiedel

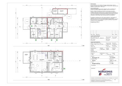
Plantegning

Enebolig 211.8 m²

Etasje 1 105.9 m²

Rom Areal Vinduer Dører
Stue/Kjøkken 101 38.3 m² 3 2
Soverom 102 15.0 m² 1 1
Gang/Trapp 103 7.4 m² 0 1
Bad 104 5.3 m² 0 1
Vask 105 3.8 m² 0 1
Terrasse 106 8.9 m² 0 1

Etasje 2 105.9 m²

Rom Areal Vinduer Dører
Soverom 201 7.9 m² 1 1
Soverom 202 6.7 m² 1 1
Kjøkken/Stue 203 14.2 m² 1 1
Gang 204 3.8 m² 0 1
Bad 205 7.0 m² 0 1
Bod 206 4.0 m² 0 1
Gang 207 8.4 m² 0 1
Bad 208 3.8 m² 0 1
Bod 209 4.0 m² 0 1
Sportsbod 210 2.5 m² 0 1
Sportsbod 211 5.0 m² 0 1

Fasader

Enebolig

Sør
Materiale
Tre
Taktype
Saltak
Vinduer
6
Dører
0
Synlige etasjer
2
Vest
Materiale
Tre
Taktype
Saltak
Vinduer
2
Dører
1
Balkonger
1
Synlige etasjer
2
Nord
Materiale
Tre
Taktype
Saltak
Vinduer
3
Dører
1
Balkonger
1
Synlige etasjer
2
Øst
Materiale
Tre
Taktype
Saltak
Vinduer
2
Dører
1
Synlige etasjer
2

Hendelser

20.04.2026 Supplering av søknad - Bankgata 54
25.03.2026 Foreløpig svar - behov for tilleggsdokumentasjon
17.03.2026 Supplering av søknad - Bankgata 54
02.02.2026 Foreløpig svar - behov for tilleggsdokumentasjon
29.01.2026 Supplering av søknad
15.01.2026 Kopi av Rammesøknad - Bankgata 54 - 2025/3126
14.01.2026 Supplering av søknad 2
14.01.2026 Supplering av søknad 1