NewConstruction UnderBehandling Enebolig

Ny enebolig med fradeling i Barstrandveien, Gimsøysand

📍 Barstrandveien 101 , 8314 GIMSØYSAND

Nøkkelinfo

Sakstype
Nybygg
Bygningstype
Enebolig
Bruksareal
68 m²
Boenheter
1
Kommune
Vågan
Fylke
Nordland - Nordlánnda
Gnr / Bnr
51 / 9
Saksnummer
26/513
Fase
Under behandling

Om byggesaken

Ny enebolig på 68 m² BRA med saltak og trekledning oppføres på en fradelt tomt på 2715 m² i Barstrandveien, Gimsøysand. Boligen har ett plan med kjøkken/stue, to soverom, bad, teknisk rom/WC og vindfang/gang. Bygget har totalt 9 vinduer og 6 dører, samt en utvendig trapp og en balkong. Det etableres minirenseanlegg for sanitært avløpsvann med kjemisk/biologisk rensegrad og tilhørende utslipp til bekk. Tomten har parkering på 36 m² og utvidet bruk av eksisterende avkjørsel fra fylkesvei. Bygget tilpasses terreng og eksisterende bebyggelse med gesimshøyde på 3,75 m og pulttak. Det er gitt dispensasjon fra plankravet med vilkår for jordvern og kulturminnehensyn.

Produkter og materialer

Elektro Ventilasjon og klimainstallasjoner

Ventilasjon- og klimainstallasjoner i bolig

Grunnarbeid Tomtearbeid og fradeling

Fradeling av tomt på 2715 m², opparbeidelse av adkomst og parkering

Grunnarbeid for ny tomt med adkomst og parkering

Betong Plasstøpte betongkonstruksjoner

🧱 Betong

Plasstøpte betongkonstruksjoner for fundament og bærende konstruksjoner

VVS Minirenseanlegg

Antall: 1

Kjemisk/biologisk renseanlegg for 5 PE med 90% reduksjon av fosfor og BOF5, tømmefrekvens minimum hvert 2. år

Minirenseanlegg for sanitært avløpsvann med utslipp til bekk

Rekkverk Balkongrekkverk

Rekkverk på balkong

Trapper Utvendig trapp

Antall: 1

Utvendig trapp til inngangsparti

Garasjeport Garasje

Antall: 1

Illustrert garasje på tomt (areal ikke spesifisert)

Gulv Innvendige gulvflater

Innvendige gulvflater i bolig, materialer ikke spesifisert

Terrasse Balkong

🧱 Tre

Antall: 1

Balkong tilknyttet bolig

Bad Sanitærutstyr og fliser

Sanitærinstallasjoner og overflater på bad og WC

Tømrer Trekonstruksjoner

🧱 Tre

Tømrerarbeid og montering av trekonstruksjoner for bolig og garasje

Tak Saltak

🧱 Tre, taktekking ikke spesifisert

Antall: 1

Saltak med gesimshøyde 3,75 m, tilpasset terreng og nabobebyggelse

Vinduer Fasadevindu

🧱 Tre

Antall: 9

Fasadevinduer i tre, fordelt på alle fasader

Dører Ytterdør og balkongdør

🧱 Tre

Antall: 6

Ytterdører og balkongdør i tre til inngang, balkong og utvendige rom

Fasade Trekledning

🧱 Tre

Trekledning på alle fasader

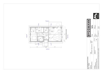
Plantegning

Enebolig 68.0 m²

Etasje 1 68.0 m²

Rom Areal Vinduer Dører
Kjøkken/Stue 101 27.8 m² 1 1
Soverom 102 13.0 m² 1 1
Soverom 103 9.3 m² 1 1
Bad 104 4.7 m² 0 1
Teknisk/WC 105 3.9 m² 0 1
Vf/Gang 106 8.4 m² 0 2

Fasader

Enebolig

Øst
Materiale
Tre
Taktype
Saltak
Vinduer
1
Dører
1
Synlige etasjer
1
Nord
Materiale
Tre
Taktype
Saltak
Vinduer
4
Dører
0
Synlige etasjer
1
Vest
Materiale
Tre
Taktype
Saltak
Vinduer
3
Dører
1
Synlige etasjer
1
Sør
Materiale
Tre
Taktype
Saltak
Vinduer
3
Dører
0
Synlige etasjer
1

Hendelser

20.04.2026 Tilbakemelding om mangler - Fradeling/ny bolig/minirenseanlegg - gbn 51/9 8314 Gimsøysand
20.04.2026 Dokumentasjon naturfare
23.02.2026 Søknad om tillatelse i ett trinn 51/9