NewConstruction UnderBehandling Enebolig

Ny enebolig med riving på Bekkenesvegen 81, Kjerrgarden

📍 Bekkenesvegen 81 , 5314 KJERRGARDEN

Nøkkelinfo

Sakstype
Nybygg
Bygningstype
Enebolig
Bruksareal
306 m²
Boenheter
1
Kommune
Askøy
Fylke
Vestland
Gnr / Bnr
37 / 61
Saksnummer
2023/14250
Fase
Under behandling

Om byggesaken

Ny enebolig på totalt 306,2 m² BRA fordelt på to etasjer bygges på Bekkenesvegen 81, Kjerrgarden. Boligen har saltak i tre, med fasader i treverk, og inkluderer en garasje på 43,8 m². Første etasje inneholder blant annet to soverom, kjellerstue, bad, WC, vaskerom, sportsbod og treningsrom, mens andre etasje har stue/kjøkken, soverom, bad, garderobe og bod. Utomhusanlegget omfatter uteoppholdsareal, parkerings- og kjøreareal samt nødvendig tomteopparbeiding med fyllinger og skjæringer. Vann- og avløpsledninger føres fram til eksisterende fellesanlegg med tilknytning til offentlig vann og privat avløp. Tiltaket erstatter en eldre bolig med en større, moderne bolig som oppfyller dagens tekniske krav og universell utforming. Bygget er tilpasset terrenget med mønehøyde på 7,5 meter over planert terreng og opprettholder avstand til sjø og nabogrense i henhold til regelverk. Det er gitt dispensasjon fra kommuneplanens arealdel LNF-formål og byggegrense mot sjø etter politisk behandling, med vilkår om hensyn til natur, friluftsliv og hekketid for fugl.

Produkter og materialer

Terrasse Terrasse på 44,8 m²

Antall: 1

Terrasse i 2. etasje på 44,8 m²

Utendørs terrasseareal til bolig

Garasjeport Port til garasje

🧱 Ikke spesifisert

Antall: 1

Garasjeport på fasade Sør

Garasjeport til integrert garasje på 43,8 m²

Vinduer Fasadevindu

🧱 Tre med 3-lags glass

Antall: 22

Vinduer fordelt på fasader: Vest 6, Nord 6, Øst 4, Sør 6

Fasadevinduer i tre med energiglass for bolig

Betong Grunnmur og fundament

🧱 Betong

Grunnmur og fundament til ny bolig

Betongfundament og grunnmur for bolig

Isolasjon Isolasjon i vegger og tak

🧱 Mineralull eller tilsvarende

Isolasjon iht. TEK17 for bolig

Isolasjon i vegger, tak og gulv for energieffektiv bolig

Trapper Innvendig trapp

Antall: 1

En innvendig trapp mellom etasjene

Innvendig trapp i bolig

Dører Ytterdører og balkongdører

🧱 Tre

Antall: 6

Dører fordelt på fasader: Vest 1, Øst 1, Sør 2, samt 2 dører i andre etasje

Ytterdører og balkongdører i tre til bolig

Gulv Innvendige gulvflater

Gulv i bolig, ikke nærmere spesifisert

Innvendige gulvflater i bolig

Tak Saltak og flatt tak

🧱 Tre, stål takmateriale på flatt tak

Saltak på fasader Vest, Nord og Øst; flatt tak med stål på Sørfasade

Tak med saltak og flatt tak med stålmateriale

Tømrer Bærekonstruksjon og kledning

🧱 Tre

Trekonstruksjon og utvendig trepanel

Tømrerarbeid for bærekonstruksjon og kledning i tre

VVS Vann- og avløpsledninger

Nye vann- og avløpsledninger tilknyttet offentlig vann og privat avløp, inkludert fellesledninger over gbnr. 37/2

Vann- og avløpsinstallasjoner for bolig og utomhusanlegg

Bad Baderomsinnredning og våtrom

Antall: 2

To bad i bolig, ett i hver etasje, med våtromsstandard

Bad med våtromsinnredning og sanitærutstyr

Maling Utvendig maling

Maling av utvendig trepanel

Overflatebehandling av fasade

Elektro Elektrisk anlegg

Elektrisk installasjon iht. TEK17

Elektrisk anlegg for bolig

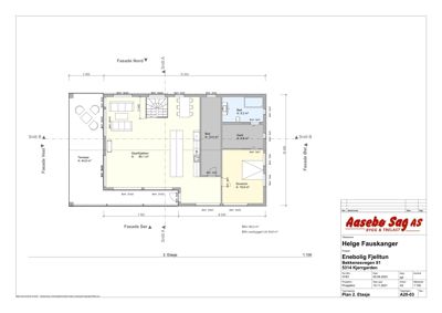
Plantegning

Enebolig 306.2 m²

Etasje 2 140.0 m²

Rom Areal Vinduer Dører
Stue/Kjøkken 201 80.1 m² 3 2
Soverom 202 19.9 m² 1 1
Bad 203 9.3 m² 0 1
Gard 204 8.8 m² 0 1
Bod 205 14.0 m² 0 1

Etasje 1 166.2 m²

Rom Areal Vinduer Dører
Soverom 101 12.2 m² 1 1
Soverom 102 12.0 m² 1 1
Kjellerstue 103 19.9 m² 2 1
Gang 104 8.6 m² 0 2
Gang 105 14.3 m² 0 2
Bad 106 8.6 m² 0 1
WC 107 2.2 m² 0 1
Trening 108 17.4 m² 2 1
Vaskerom 109 10.4 m² 1 1
Sportsbod 110 8.3 m² 0 1
Garasje 111 43.8 m² 1 1

Fasader

Enebolig

Vest
Materiale
Tre
Taktype
Saltak
Vinduer
6
Dører
1
Balkonger
1
Synlige etasjer
2
Nord
Materiale
Tre
Taktype
Saltak
Vinduer
6
Dører
0
Synlige etasjer
2
Øst
Materiale
Tre
Taktype
Saltak
Vinduer
4
Dører
1
Synlige etasjer
2
Sør
Materiale
Tre
Taktype
Flatt tak
Takmat.
Stål
Vinduer
6
Dører
2
Balkonger
1
Synlige etasjer
2

Hendelser

20.04.2026 Gbnr 37/61 - Søknad om ferdigattest
28.12.2023 Gbnr 37/61 - Tillatelse til tiltak
20.09.2023 Gbnr 37/61 - Ber om oppklaring
20.09.2023 Gbnr 37/61 - Oppklaring
20.09.2023 Gbnr 37/61 - Klage på avslag
20.09.2023 Gbnr 37/61 - Ber om oppklaring
20.09.2023 Gbnr 37/61 - Situasjonsplan med VA
20.09.2023 Gbnr 37/61 - Avslag på søknad
06.09.2023 Gbnr 37/61 - Svar fra Barn og unges representant
29.08.2023 Gbnr 37/61 - Uttale fra Statsforvaltaren i Vestland
18.08.2023 Gbnr 37/61 - Uttalelse fra miljø og landbruk
20.07.2023 Gbnr 37/61 - Oversender søknad til uttalelse
20.07.2023 Gbnr 37/61 - Oversender søknad til uttalelse
18.07.2023 Gbnr 37/61 - Søknad om tillatelse i ett trinn