NewConstruction UnderBehandling Enebolig

Ny enebolig med integrert dobbelgarasje i Bekkinga, Hagan

📍 Bekkinga 1 , 1481 HAGAN

Nøkkelinfo

Sakstype
Nybygg
Bygningstype
Enebolig
Bruksareal
474 m²
Boenheter
1
Kommune
Nittedal
Fylke
Akershus
Gnr / Bnr
3 / 615
Saksnummer
26/00339
Fase
Under behandling

Om byggesaken

Ny enebolig på totalt 474 m² BRA fordelt på to etasjer med flatt tak og betongfasade. Boligen har en stor integrert dobbelgarasje på 141,4 m² i første etasje, samt svømmebasseng og veranda på 89,7 m². Planløsningen inkluderer flere soverom, bad, stuer, kjøkken og tekniske rom. Utomhusplan viser bearbeidet terreng med hensyn til natur og fuglearter. Det er planlagt overvannsplan og tilkobling til kommunalt vann- og avløpsnett med felles ledningstrase for flere tomter i området. Garasjen er dimensjonert for fire parkeringsplasser og sportsbod. Prosjektet inkluderer også tiltak for overvannshåndtering og naturhensyn.

Produkter og materialer

Dører Ytterdører og terrassedører

Antall: 15

Dører i fasader og til veranda, inkludert garasjeportdør

Ytterdører og terrassedører, totalt 15 stk, inkludert garasjeport

Fasade Betongfasade

🧱 Betong

Fasade i betong med flatt tak, inkludert pipe og garasjeport

Betongfasade med flatt tak, pipe og garasjeport iht fasadetegninger

Terrasse Veranda

Antall: 1

Veranda på 89,7 m² med 6 vinduer og 1 dør

Stor veranda tilknyttet boligens 1. etasje

Tak Flatt tak

Flatt tak på hele bygget

Flatt tak over hele eneboligen

Vinduer Fasadevindu

Antall: 23

Vinduer fordelt på fasader, inkludert 3 vinduer i stue, 6 i veranda, og flere i soverom og kjøkken

Fasadevindu i betongfasade, antall 23 fordelt på ulike rom

Bad Bad og vaskerom

Antall: 4

Bad i underetasje og 1. etasje, inkludert vaskerom

Bad og vaskerom med nødvendige installasjoner og overflater

Grunnarbeid Graving og fundamentering

Graving for fundamentering, overvannshåndtering og VA-ledningstrase

Grunnarbeid for fundamentering av bolig, garasje og overvannsløsninger

Natur Naturhensyn og vegetasjon

Tiltak for å ivareta hekkende fugl og vegetasjon, inkludert hekkesesonghensyn

Naturhensyn med kartlegging og tilrettelegging for fuglearter under byggeprosessen

Betong Fundament og støttemurer

🧱 Betong

Fundamentering av bolig og eventuelle støttemurer iht utomhusplan

Betongfundament og støttemurer for terrengtilpasning

Gulv Innvendige gulv

Innvendige gulv i bolig, antatt parkett og fliser i våtrom

Ventilasjon Mekanisk ventilasjon

Ventilasjonssystem for bolig iht forskrifter

VVS VA-tilkobling og sanitærabonnement

Tilkobling til kommunalt vann- og avløpsnett via felles ledningstrase med tinglyst avtale

VA-tilkobling med dokumentert ledningstrase og sanitærabonnement i egen sak

Annet Svømmebasseng med teknisk rom

Antall: 1

Svømmebasseng med teknisk rom i underetasje, tilkobling og tømming planlagt

Svømmebasseng med tilhørende teknisk rom og tilkobling til VA

Kjøkken Kjøkkeninnredning

Antall: 1

Kjøkken på 30 m² med tilhørende innredning

Fullt utstyrt kjøkken i 1. etasje

Garasjeport Dobbel garasjeport

Antall: 1

Integrert dobbelgarasje på 141,4 m² med garasjeport

Dobbel garasjeport til integrert garasje

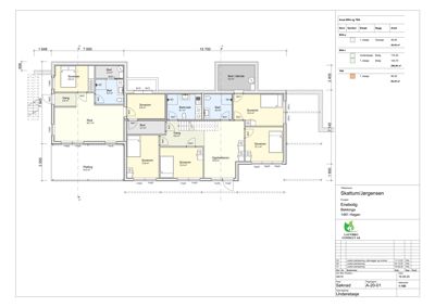
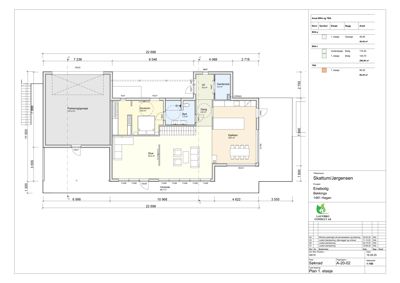
Plantegning

Enebolig 474.1 m²

Etasje 1 299.9 m²

Rom Areal Vinduer Dører
Stue 101 52.4 m² 3 2
Veranda 102 89.7 m² 6 1
Soverom 103 18.6 m² 1 1
Kjøkken 104 30.0 m² 1 1
Gang 105 4.6 m² 0 3
Bad 106 7.5 m² 0 1
VF 107 4.9 m² 0 1
Garderobe 108 4.2 m² 0 1
Parkering/garasje 001 141.4 m² 0 1

Etasje 0 174.2 m²

Rom Areal Vinduer Dører
Platting 001 24.9 m² 0 1
Stue 002 24.7 m² 1 1
Gang 003 2.6 m² 0 2
Soverom 004 9.6 m² 1 1
Bad 005 6.4 m² 0 1
Bod 006 3.2 m² 0 1
Soverom 007 8.6 m² 1 1
Bod 008 4.7 m² 0 1
Soverom 009 12.6 m² 1 1
Soverom 010 12.2 m² 1 1
Gang 011 9.6 m² 0 3
Bad/vask 012 8.1 m² 0 1
Bad 013 6.6 m² 0 1
Soverom 014 14.0 m² 1 1
Soverom 015 12.1 m² 1 1
Oppholdsrom 016 19.9 m² 0 1

Fasader

Enebolig

Øst
Materiale
Betong
Taktype
Flatt tak
Vinduer
4
Dører
2
Synlige etasjer
1
Nord
Materiale
Betong
Taktype
Flatt tak
Vinduer
1
Dører
1
Balkonger
1
Synlige etasjer
1
Vest
Materiale
Betong
Taktype
Flatt tak
Vinduer
10
Dører
1
Balkonger
1
Synlige etasjer
2
Sør
Materiale
Betong
Taktype
Flatt tak
Vinduer
1
Dører
1
Balkonger
1
Synlige etasjer
2

Hendelser

14.04.2026 26/00339-15 Svar på e-post om supplering - 3/615 - Status
10.04.2026 26/00339-14 Anmodning om supplerende dokumentasjon - 3/615 - Status
27.03.2026 26/00339-2 1/1 - Vedtak om utbetaling - Skogfond - 2026
26.03.2026 26/00339-1 1/1 - Søknad om utbetaling - Skogfond - 2026
23.03.2026 26/00339-12 Spørsmål til overvannsnotat - 3/615
23.03.2026 26/00339-13 Svar på spørsmål til overvannsnotat - 3/615
10.03.2026 26/00339-11 Supplering av søknad - 3/615 - Brekkinga
03.03.2026 26/00339-8 Spørsmål vedrørende tilkobling og prosess - 3/615
03.03.2026 26/00339-10 Svar vedrørende prosess - 3/615 - VA
24.02.2026 26/00339-7 Tilkoblingsforslaget - Bekkinga 3/615
18.02.2026 26/00339-6 Tilkoblingsforslaget - 3/615 - Bekkinga
16.02.2026 26/00339-5 Tilkoblingsforslaget - Bekkinga 3/615
13.02.2026 26/00339-3 Anmodning om supplerende dokumentasjon - 3/615 - Bekkinga - Enebolig med integrert garasje