NewConstruction UnderBehandling Enebolig

Ny enebolig med naust og kai på Bjoavegen 160, Ølensvåg

📍 Bjoavegen 153A , 5582 ØLENSVÅG

Nøkkelinfo

Sakstype
Nybygg
Bygningstype
Enebolig
Bruksareal
315 m²
Boenheter
1
Kommune
Vindafjord
Fylke
Rogaland
Gnr / Bnr
308 / 1
Saksnummer
2022/3969
Fase
Under behandling

Om byggesaken

Ny enebolig på totalt 315 m² BRA fordelt på flere etasjer med flatt og saltak, bygget i tre med saltak på vestfasade og flatt tak på øst- og sørfasade. Boligen har blant annet bad, gang, bod, naust, terrasse og overbygg. Naustet har mønehøyde på 5,3 meter og BYA på 38,3 m². Det er etablert parkeringsplass med platting som er integrert med boligen, og det er søkt og gitt dispensasjon for plassering nærmere vei enn regulert byggegrense. Bygget har pipe, tilknytning til privat vannverk og kommunalt avløp. Det foreligger godkjente ansvarsrettserklæringer for prosjektering og utførelse, og det er gitt midlertidig brukstillatelse med gjenstående mindre arbeider. Det er også søkt om dispensasjon for gangsti i 100-metersbeltet mot sjø for tilgjengelig adkomst.

Produkter og materialer

Rekkverk Utvendig rekkverk

Permanente rekkverk og utvendig trapp gjenstår før ferdigattest

Utvendig rekkverk og trapp for sikkerhet

Gulv Innvendige gulv

Innvendige gulv i bolig

Betong Betongdekke og støttemurer

🧱 Betong

Betongplate for parkering og støttemurer

Betongarbeider for parkering og støttemurer

Garasjeport Garasjeport

Antall: 1

Garasjeport på sørfasade

Annet Naust og kai

🧱 Tre og betong

Naust med mønehøyde 5,3 m og BYA 38,3 m², kai og fylling i sjø med tillatelse etter havne- og farvannsloven

Naust og kai tilknyttet boligen

Dører Ytterdører og boddører

🧱 Tre

Antall: 7

Ytterdører og dører til bod og naust i tre

Terrasse Terrasse og platting

🧱 Tre

Terrasse på ca 30,8 m² og overbygget dekke utvendig på 24 m²

Utearealer med terrasse og overbygget platting

VVS Sanitærinstallasjoner

Utført av Rørlegger Haraldseid AS, inkl. tilknytning til kommunalt avløp og privat vannverk

Sanitærinstallasjoner og tilknytning til vann og avløp

Membran Vanntetting

Membran for vanntetting i våtrom og fundament

Fasade Trepanel

🧱 Tre

Trepanel på alle fasader

Trepanel som fasadekledning

Vinduer Fasadevindu

🧱 Tre

Antall: 19

Fasadevindu i tre, fordelt på flere fasader med varierende størrelser

Annet Gangsti og mur

🧱 Betong og grus

Gangsti i 100-metersbeltet mot sjø med dispensasjon, samt mindre mur for tilkomst

Tilgjengelig gangsti og mur for adkomst til bolig

Elektro Elektriske installasjoner

Elektriske installasjoner iht. forskrifter

Trapper Innvendig trapp

Antall: 1

Innvendig trapp mellom etasjer

Tak Saltak og flatt tak

🧱 Tre og taktekking

Saltak på vestfasade, flatt tak på øst- og sørfasade, maks mønehøyde 12,62 m

Tak med kombinasjon av saltak og flatt tak i tre

Bad Baderomsinnredning

Antall: 2

Bad med sanitærutstyr og fliser

Grunnarbeid Fundamentering og grunnmur

🧱 Betong

Fundamentering og grunnmur for bolig og naust

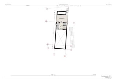
Plantegning

Enebolig 315.0 m²

Etasje 1 208.2 m²

Rom Areal Vinduer Dører
BRA 101 65.3 m² 1 1
Disponibelt 102 43.8 m² 0 1
Bod 103 3.9 m² 0 1
Bad 104 4.3 m² 0 1
Gang 105 12.2 m² 0 1
Nåust 106 30.7 m² 0 1
Teerrasse 107 30.8 m² 0 0
Overbygg 108 6.7 m² 0 0

Etasje 4 106.8 m²

Rom Areal Vinduer Dører
Overbygget dekke Utv 401 24.0 m² 0 0
Sports-Bod 402 11.0 m² 0 1
BRA 403 13.0 m² 0 1
Entre 404 13.0 m² 0 0
Teknisk rom 405 10.0 m² 0 0
Gang 406 45.8 m² 0 0

Fasader

Villa Aarekol

Vest
Materiale
Tre
Taktype
Saltak
Vinduer
6
Dører
1
Balkonger
1
Synlige etasjer
2
Nord
Materiale
Tre
Taktype
Saltak
Vinduer
0
Dører
0
Synlige etasjer
1
Øst
Materiale
Tre
Taktype
Flatt tak
Høyde
12.2 m
Mønehøyde
12.2 m
Vinduer
0
Dører
0
Synlige etasjer
2
Sør
Materiale
Tre
Taktype
Flatt tak
Høyde
12.6 m
Mønehøyde
12.6 m
Vinduer
12
Dører
2
Balkonger
2
Synlige etasjer
3

Hendelser

15.04.2026 Høring - Bustad - Gnr. 308 bnr. 1 fnr. 1 - Bjoavegen 160
09.04.2026 Bjoavegen 153A, 160 Supplering av søknad 308/1
18.03.2026 Bjoavegen 153A, 160 Søknad om endring av gitt tillatelse eller godkjenning 308/1
11.12.2024 Ber om utgreiing Bjoavegen 153A
10.12.2024 Ber om utgreiing Bjoavegen 153A
02.12.2024 24/22586 Ber om utgreiing Bjoavegen 153A
29.11.2024 Byggearbeid på 308/11-Øensvåg
27.11.2024 Klageavgjer i byggesak gnr 308 bnr 1
15.10.2024 Ber om utgreiing Bjoavegen 153A
14.10.2024 Ber om utgreiing
11.10.2024 Byggearbeid på 308/11-Øensvåg
07.10.2024 Mellombels bruksløyve - tiltak med ansvarsrett - gnr 308 bnr 1 - Bjoavegen 160 - Bustad
07.10.2024 Innmåling bustadar - Bjoavegen 153A og 153B
24.09.2024 Tilbakemelding om mangler - gnr 308 bnr 1 - Bjoavegen 160 - Bustad
23.09.2024 Bjoavegen 153A, 160 Søknad om midlertidig brukstillatelse 308/1
19.09.2024 Klagesak etter plan- og bygningslova - Vindafjord kommune - gnr. 308 bnr. 1
10.09.2024 Bjoavegen 153A
25.06.2024 Klage på løyve til oppføring av bustad på gnr. 308 bnr. 1, Laberget, Ølensvåg