NewConstruction Igangsettingstillatelse Enebolig

Ny enebolig med garasje og bod i Bruksveien 79, Bærum

📍 Bruksveien 79 , 1367 SNARØYA

Nøkkelinfo

Sakstype
Nybygg
Bygningstype
Enebolig
Bruksareal
385 m²
Boenheter
1
Kommune
Bærum
Fylke
Akershus
Gnr / Bnr
43 / 716
Saksnummer
2024/188
Fase
Igangsettingstillatelse

Om byggesaken

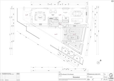
Prosjektet omfatter oppføring av en ny enebolig på 385 m² BRA fordelt på to etasjer, med saltak og flatt tak på ulike deler. Boligen har flere rom inkludert stue, kjøkken/spisestue, flere boder, garasje på 38 m², og tekniske rom. Det bygges også en frittliggende bod og en pergola i tre. Uteområdet inkluderer støpt platting, pergola, trappekonstruksjoner, terrasse, gangveier i betong, beplantning med busker, trær og hekk, samt opparbeidet uteoppholdsareal på ca. 1065 m². Det er gjennomført miljøtekniske undersøkelser og tiltaksplan for forurenset grunn med tiltak for massehåndtering. Det er gitt dispensasjon for enkelte tiltak innenfor 30-metersbeltet langs sjøen. Prosjektet har godkjente igangsettingstillatelser og omfattende ansvarsrett for prosjektering og utførelse.

Produkter og materialer

Rekkverk Rekkverk på terrasser og trapper

Rekkverk på terrasser og trapper iht. tegninger.

Sikkerhetsrekkverk for uteområder.

Gulv Innvendige gulvflater

Gulvflater i bolig, inkludert eikeparkett og fliser i våtrom.

Innvendige gulvflater i bolig.

Ventilasjon Ventilasjonsanlegg for boenhet

Ventilasjonsanlegg med kanalføringer for boenheten.

Ventilasjonsløsning for bolig.

Grunnarbeid Masseutskifting og miljøsanering

Fjerning av forurensede fyllmasser i toppjord (tilstandsklasse 3 og 4) og masseutskifting ned til rent fjell eller leire. Massehåndtering iht. tiltaksplan for forurenset grunn.

Miljøsanering av forurenset grunn med masseutskifting og håndtering av overskuddsmasser til godkjent deponi.

Kjøkken Kjøkkeninnredning

Kjøkkeninnredning i bolig.

Innredning for kjøkken.

VVS Sanitærinstallasjoner og vannbåren varme

Sanitærinstallasjoner, vannbåren gulvvarme, vann- og avløpsanlegg, inkl. privat ledningsanlegg med GPS-innmåling.

VVS-installasjoner for bolig og uteområder.

Betong Plasstøpte betongkonstruksjoner

🧱 Betong

Plasstøpte betongkonstruksjoner for fundamenter, plattinger, trapper og gårdsplass.

Betongarbeider for fundamentering og utomhusplattinger.

Terrasse Støpt platting og terrasse

🧱 Betong

Støpt platting foran bolig med utvidelse mot nordøst for pergola og utespiseplass.

Betongterrasse og platting for uteopphold.

Garasjeport Motorisert skyveport

Antall: 1

Motorisert skyveport med Garda SmartService system for fjernstyring.

Skyveport til garasje og avkjørsel.

Tak Saltak og flatt tak

🧱 Takstein og båndtekking

Saltak på bolig med takstein, flatt tak på garasje, båndtekking av tak og veggkledning.

Taktekking med takstein og båndtekking.

Stål Bærende metallkonstruksjoner

🧱 Stål

Montering av bærende metallkonstruksjoner knyttet til betongkonstruksjoner.

Bærende stålrammer og konstruksjoner for bolig og garasje.

Dører Ytterdører og innerdører

🧱 Tre og glass

Antall: 26

Ytterdører og innerdører i bolig, garasje og bod, inkludert skyveport og gangport i avkjørsel.

Dører for bolig, bod, garasje og uteareal, inkludert motorisert skyveport med smartstyring.

Tømrer Trekonstruksjoner og montering

🧱 Tre

Tømrerarbeid for bolig, bod, pergola og levegg, inkludert montering av trekonstruksjoner og stålkonstruksjoner utenfor betong.

Trekonstruksjoner for bolig, bod og utearealer.

Mur Støttemurer og dekke

🧱 Mur og betong

Rehabilitering av eksisterende støttemur langs sjø, oppføring av lav mur/platting med dekkeforkant maks 0,5-1 m fra tomtegrense.

Murarbeid for støttemur og uteareal.

Vinduer Fasadevindu og takvindu

🧱 Glass og tre/aluminium

Antall: 24

Fasadevindu i bolig og garasje, takvinduer i bolig, 3 vinduer i stue, 2 i kjøkken, 6 i nord/vest fasade, 1 i bod, 1 i vinrom, 1 i soverom, 1 i bad, 1 i balkong, 1 i badstue, 1 i vaskerom, 1 i teknisk rom.

Vinduer med 3-lags energiglass tilpasset bolig og garasje.

Bad Våtromsinnredning og fliser

Bad og vaskerom med membraner og flislegging.

Innredning og overflater i våtrom.

Utendørs Beplantning, gressplen, hekk og gangveier

Beplantning med busker, stauder, prydvekster, ca. 7 trær, bøkehekk langs tomtegrense, gressplen, gangstier med tråkkheller og grus, steinbed, regnbed, pergola i tre, levegg i tre, støpt trapp i terreng, støpt gangvei i betong.

Opparbeidelse av uteområder med beplantning og harde flater.

Elektro Porttelefon og elektrisk styring

Porttelefon og motorisert skyveport med Garda SmartService system for fjernstyring.

Elektriske installasjoner for port og uteområder.

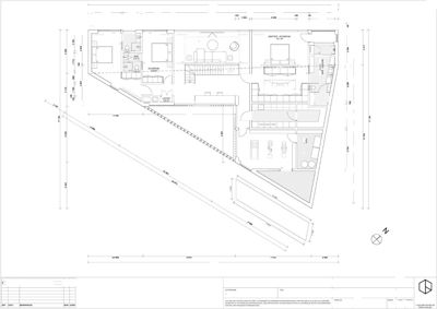
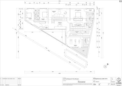
Plantegning

Enebolig 385.0 m²

Etasje 1 178.5 m²

Rom Areal Vinduer Dører
Stue 101 34.9 m² 3 1
Forstue 102 24.8 m² 1 1
Kjøkken / Spisestue 103 43.1 m² 2 1
Vinrom 104 2.4 m² 1 1
WC 105 2.1 m² 0 1
Entré / Hall 106 12.7 m² 0 1
Trapp 107 3.4 m² 0 0
Garasje 108 38.0 m² 1 1
Bod 109 1.6 m² 0 1
Bod 110 13.3 m² 0 1
Bod 111 3.0 m² 0 1
Bod 112 3.0 m² 0 1
Bod 113 9.3 m² 0 1

Etasje 2 206.5 m²

Rom Areal Vinduer Dører
Soverom 201 17.1 m² 1 1
Bad 202 2.9 m² 0 1
Soverom 203 13.9 m² 1 1
Bad 204 2.9 m² 0 1
Medierom 205 22.5 m² 1 1
Gang / Hall 206 26.8 m² 0 3
Master - Soverom 207 18.1 m² 1 1
Master - Garderobe 208 17.8 m² 0 1
Master - Bad 209 10.2 m² 1 1
Badstue 210 2.3 m² 1 1
Balkong 211 2.3 m² 0 1
Vaskerom 212 9.7 m² 0 1
Bod 213 5.7 m² 0 1
Teknisk rom 214 6.1 m² 0 1
Trimrom 215 19.9 m² 0 1
Lager 216 8.7 m² 0 1
Lintøy 217 0.6 m² 0 1

Fasader

Pergola

Sørøst
Materiale
Tre
Høyde
2.5 m
Vinduer
0
Dører
0
Synlige etasjer
1
Sørvest
Materiale
Tre
Høyde
2.5 m
Vinduer
0
Dører
0
Synlige etasjer
1
Nordvest
Materiale
Tre
Høyde
2.5 m
Vinduer
0
Dører
0
Synlige etasjer
1
Nordøst
Materiale
Tre
Høyde
2.5 m
Vinduer
0
Dører
0
Synlige etasjer
1

Enebolig

Sør
Materiale
Mur
Taktype
Saltak
Høyde
3.1 m
Mønehøyde
8.1 m
Vinduer
3
Dører
1
Synlige etasjer
2
Øst
Materiale
Mur
Taktype
Saltak
Høyde
3.1 m
Mønehøyde
8.1 m
Vinduer
1
Dører
1
Synlige etasjer
2
Sør/Vest
Materiale
Mur
Taktype
Saltak
Vinduer
4
Dører
1
Synlige etasjer
2
Nord/Vest
Materiale
Mur
Taktype
Flatt tak
Høyde
6.7 m
Mønehøyde
11.2 m
Vinduer
6
Dører
1
Synlige etasjer
2
Nord
Materiale
Tre
Taktype
Saltak
Høyde
7.0 m
Mønehøyde
11.2 m
Vinduer
1
Dører
2
Synlige etasjer
2
Sørvest
Materiale
Tre
Taktype
Saltak
Høyde
8.7 m
Mønehøyde
11.2 m
Vinduer
2
Dører
1
Synlige etasjer
2
Sør-Vest
Materiale
Tre
Taktype
Saltak
Høyde
8.7 m
Mønehøyde
11.2 m
Vinduer
2
Dører
1
Synlige etasjer
2

Hendelser

20.04.2026 Oversender endringssøknad til uttalelse - Bruksveien 79 - endring av uteoppholdsareal for enebolig
20.04.2026 Uttalelse fra Vei og trafikk til Bruksveien 79 - endring av uteoppholdsareal - oppføring av port med portstolper langs kommunal vei
20.04.2026 Intern oversendelse - Bruksveien 79 - endring av uteoppholdsareal - oppføring av port med portstolper langs kommunal vei
20.04.2026 Oversender endringssøknad til uttalelse - Bruksveien 79 - endring av uteoppholdsareal for enebolig
17.04.2026 Supplering av søknad - Bruksveien 79 - enebolig med garasje - frittliggende bod
17.04.2026 Sjekkliste - Bruksveien 79 - endringssøknad
17.04.2026 Bekreftelse på mottatt søknad - behov for komålettwering - Bruksveien 79
27.02.2026 Supplering av søknad - Bruksveien 79 - enebolig med garasje - frittliggende bod
27.01.2026 Foreløpig svar på søknadsdokumentasjon mottatt 18-12-2025 - Bruksveien 79
18.12.2025 Søknad om endring av gitt tillatelse - Bruksveien 79 - enebolig med garasje - frittliggende bod
18.09.2025 Igangsettingstillatelse 3 - Bruksveien 79 - enebolig med garasje
09.09.2025 Igangsettingssøknad 3 - Bruksveien 79 - enebolig med garasje - frittliggende bod
23.07.2025 Igangsettingstillatelse 2 - Bruksveien - enebolig med garasje
02.07.2025 Igangsettingssøknad 2 - Bruksveien - enebolig med garasje - frittliggende bod
23.05.2025 Igangsettingstillatelse 1 - bruksveien - byggetiltak
21.05.2025 Uttalelse MILO - bruksveien - enebolig med garasje
21.05.2025 Supplering - Bruksveien - enebolig med garasje - frittliggende bod
19.05.2025 Intern oversendelse - bruksveien - enebolig med garasje
28.04.2025 Igangsettingssøknad 1 - Bruksveien - enebolig med garasje - frittliggende bod