NewConstruction Soeknad Enebolig

Ny enebolig med riving på Bygdavegen 85, Hjelmeland

📍 Bygdavegen 85 , 4130 HJELMELAND

Nøkkelinfo

Sakstype
Nybygg
Bygningstype
Enebolig
Bruksareal
179 m²
Boenheter
1
Kommune
Hjelmeland
Fylke
Rogaland
Gnr / Bnr
52 / 3
Saksnummer
2026/451
Fase
Søknad

Om byggesaken

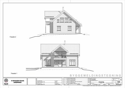
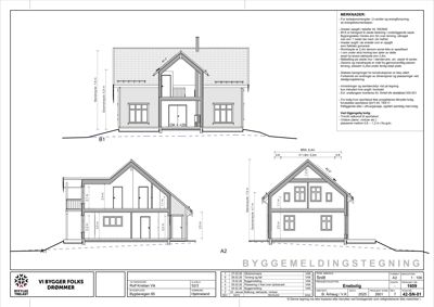
Ny enebolig på 179 m² BRA fordelt på to etasjer bygges på Bygdavegen 85 i Hjelmeland. Boligen har saltak med takvinkel 40°, gesimshøyde 4,7-5,8 m og mønehøyde 7,6-7,9 m. Første etasje inneholder hall/trapp, bad med WC, vaskerom, stue og kjøkken/allrom, mens andre etasje har TV-stue, bad med WC, bod og tre soverom. Fasaden er i tre med flere vinduer og dører, inkludert balkong på nordfasaden. Det etableres nytt utslippsanlegg med minirenseanlegg av typen August AT 15 for 10 personekvivalenter. Eksisterende våningshus rives, men opprinnelig del med verneverdi beholdes. Grunnforhold er vurdert som stabile uten fare for kvikkleireskred. Prosjektet inkluderer omfattende grunnarbeid, betongarbeid, innvendig sanitær, ventilasjon, montering av ildsted og stålpipe, samt tetthetsmåling og kontroll av våtrom.

Produkter og materialer

Riving Riving av eksisterende bygg

Antall: 1

Riving av nyere tilbygg på eksisterende våningshus, opprinnelig bygg beholdes

Riving av nyere tilbygg på våningshus

Grunnarbeid Grunnarbeid og legging av ledninger

Antall: 1

Grunnarbeid ifm oppføring av våningshus, legging av utvendige ledninger

Grunnarbeid og VA-ledninger for ny bolig

Ventilasjon Ventilering av byggegrunn

Antall: 1

Ventilering av byggegrunn (radonrør)

Radonrør og ventilasjon av byggegrunn

Gulv Våtromsbelegg

Antall: 1

Legging av våtromsbelegg og membran

Våtromsbelegg og membran i våtrom

Tømrer Tømrerarbeid inkl. ventilasjon

🧱 Tre

Antall: 1

Tømrerarbeid utføres av tiltakshaver som selvbygger

Tømrerarbeid og ventilasjon i bolig

Betong Plasstøpt betong

🧱 Betong

Antall: 1

Støping/opprettelse av fall på gulv, membran og tetting mot sluk

Betongarbeid for gulv og våtrom

Annet Minirenseanlegg

🧱 Polypropylen

Antall: 1

August AT 15 minirenseanlegg for 10 personekvivalenter, biologisk rensing med kjemisk felling, CE-merket og SINTEF-godkjent

Minirenseanlegg for sanitært avløpsvann med kapasitet til 10 pe

Dører Ytterdør

🧱 Tre

Antall: 3

Ytterdører i tre, inkludert hovedinngang og balkongdør

Vinduer Fasadevindu

🧱 Tre

Antall: 15

Fasadevindu i tre, fordelt på fasader med totalt 15 stk

Pipe Stålpipe

🧱 Stål

Antall: 1

Montering av stålpipe og ildsted

Stålpipe og ildsted monteres i boligen

VVS Innvendig sanitær

Antall: 1

Utførelse av innvendig sanitærarbeid, ventilering av byggegrunn (radonrør)

Sanitærinstallasjoner og radonventilasjon

Tak Saltak

🧱 Ukjent tre/tekking

Antall: 1

Takvinkel 40°, gesimshøyde 4,7-5,8 m, mønehøyde 7,6-7,9 m

Saltak med angitte høyder og takvinkel

Rekkverk Balkongrekkverk

🧱 Tre

Antall: 1

Rekkverk til balkong på nordfasade

Fasader

Enebolig

Ukjent
Materiale
Tre
Taktype
Saltak
Vinduer
6
Dører
1
Balkonger
1
Synlige etasjer
2
Nord
Materiale
Tre
Taktype
Saltak
Høyde
5.8 m
Mønehøyde
7.6 m
Vinduer
5
Dører
1
Balkonger
1
Synlige etasjer
2
Sør
Materiale
Tre
Taktype
Saltak
Høyde
4.7 m
Mønehøyde
7.9 m
Vinduer
4
Dører
1
Synlige etasjer
2

Hendelser

16.04.2026 52/3 - Supplering av søknad
14.04.2026 52/3 - Førebels svar på søknad om tillatelse i ett trinn
27.03.2026 52/3 - Søknad om tillatelse i ett trinn