NewConstruction UnderBehandling Enebolig

Ny enebolig med garasje på Bymarka 8, Vestvågøy

📍 Bymarka 8 , 8370 LEKNES

Nøkkelinfo

Sakstype
Nybygg
Bygningstype
Enebolig
Bruksareal
187 m²
Boenheter
1
Kommune
Vestvågøy
Fylke
Nordland - Nordlánnda
Gnr / Bnr
40 / 508
Saksnummer
26/535
Fase
Under behandling

Om byggesaken

Ny enetasjes enebolig på 187 m² BRA med flatt tak og tilhørende frittstående garasje på 44 m² oppføres på eiendommen Bymarka 8, gnr 40 bnr 508 i Vestvågøy. Boligen inneholder blant annet entre, teknisk rom, vaskerom, tre soverom, to bad, stue/kjøkken på 74,7 m², matbod, garderober og en balkong på 34,8 m². Garasjen har flatt tak og er plassert med trinnfri adkomst fra ny avkjørsel i Krøkebærveien. Tomten er på ca. 681 m² med en utnyttelsesgrad på ca. 45 %. Bygget er tilpasset terrenget med kotehøyde OK gulv på 23,8 moh, noe høyere enn regulert, for å sikre god drenering, tilgjengelighet og universell utforming. Prosjektet inkluderer grunnarbeider, betongfundamentering, tømrerarbeid, taktekking, ventilasjon, VVS og elektroinstallasjoner, samt kontroll av våtrom og lufttetthet.

Produkter og materialer

Terrasse Terrasse

Terrasse/balkong på 34,8 m² tilknyttet bolig

Utendørs terrasseareal

Elektro Elektroinstallasjoner

Elektroinstallasjoner i bolig og garasje

Elektroinstallasjoner for bolig og garasje

Ventilasjon Ventilasjonsanlegg

Ventilasjonsanlegg for boenheten inkl. kanalføringer

Ventilasjon for bolig

Trapper Innvendig trapp

Antall: 1

Innvendig trapp i bolig

Innvendig trapp i enebolig

Grunnarbeid Grunnarbeider og vann- og sanitæranlegg utenfor ringmur

Grunnarbeid delvis utført tidligere, fyllmasser på eiendommen, godkjent redegjørelse for grunnforhold

Grunnarbeider for bolig og garasje, inkl. vann- og sanitæranlegg utenfor ringmur

Maling Utvendig og innvendig maling

Maling av trefasader og innvendige overflater (antatt standard)

Maling av bolig og garasje

Balkong Balkong

🧱 Tre

Antall: 1

Balkong på 34,8 m² med dør fra bolig

Stor balkong tilknyttet bolig

Gulv Innvendige gulv

Standard innvendige gulv i bolig (ikke spesifisert i detalj)

Innvendige gulv i bolig

Betong Ringmur, fundamenter og gulv på grunn

Betongarbeider for ringmur, fundamenter og gulv på grunn

Betongfundamentering for bolig og garasje

Garasjeport Garasjeport

Antall: 1

Garasje på 44 m² med garasjeport (ikke detaljert spesifisert)

Garasjeport til garasje

Tak Taktekking

Taktekking for bolig og garasje med flatt tak

Taktekking for bolig og garasje

Vinduer Fasadevindu

🧱 Tre/Aluminium

Antall: 7

Vinduer i bolig, inkludert 1 teknisk romsvindu, 2 stue/kjøkkenvinduer, 1 vindu i hvert av 3 soverom, 1 vindu i bad

Fasadevinduer for bolig

Bad Bad og våtrom

Antall: 2

To bad i bolig, ett på 10,9 m² og ett på 4,2 m², begge med vindu

Bad og våtrom i bolig

Rekkverk Balkongrekkverk

Rekkverk på balkong (ikke detaljert spesifisert)

Sikkerhetsrekkverk på balkong

Isolasjon Isolasjon i vegger, tak og gulv

Isolasjon iht. TEK-krav for bolig og garasje

Isolasjon for bolig og garasje

VVS Vann- og sanitærinstallasjoner

Vann- og sanitærinstallasjoner innenfor og utenfor ringmur, godkjent sanitærabonnement

VVS-installasjoner for bolig og garasje

Dører Ytterdører og balkongdør

🧱 Tre

Antall: 11

Ytterdører og balkongdør i bolig, inkludert 2 dører i entre, 1 dør til teknisk rom, 1 dør til vaskerom, 1 dør til matbod, 1 dør til balkong, 5 innvendige dører

Ytterdører og balkongdør for bolig

Tømrer Tømrerarbeid og våtrom

🧱 Tre

Enebolig og garasje med tre som fasademateriale, flatt tak

Tømrerarbeid for bolig og garasje, inkludert våtrom

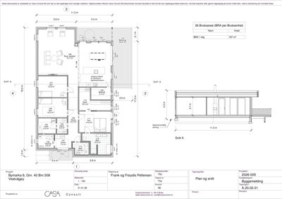
Plantegning

Enebolig 187.0 m²

Etasje 1 187.0 m²

Rom Areal Vinduer Dører
Entre 101 7.0 m² 0 2
Teknisk 102 4.9 m² 1 1
Vask 103 6.2 m² 0 1
Gard. 104 3.6 m² 0 1
Gang 105 10.5 m² 0 2
Sov 106 12.5 m² 1 1
Sov 107 13.8 m² 1 1
Stue/kjøkken 108 74.7 m² 2 1
Matbod 109 5.4 m² 0 1
Gard. 110 10.3 m² 0 1
Sov 111 14.9 m² 1 1
Bad 112 10.9 m² 1 1
Bad 113 4.2 m² 1 1
Balkong 114 34.8 m² 0 1

Fasader

Enebolig

Ukjent
Materiale
Tre
Taktype
Flatt tak
Vinduer
1
Dører
1
Synlige etasjer
1

Garasje

Ukjent
Materiale
Tre
Taktype
Flatt tak
Høyde
3.2 m
Vinduer
1
Dører
0
Synlige etasjer
1

Hendelser

22.04.2026 Supplering av søknad gnr 40 bnr 508
19.03.2026 Søknad om endring av situasjonsplan byggetrinn 1
27.02.2026 Redegjørelse kotehøyde
25.02.2026 Tilbakemelding om mangler - Enebolig og garasje - gnr 40 bnr 508
25.02.2026 Tilbakemelding om mangler - Enebolig og garasje - gnr 40 bnr 508
12.02.2026 Søknad om tillatelse i ett trinn gnr 40 bnr 508