NewConstruction Rammetillatelse Enebolig

Ny enebolig med tilkomstveg i Djupvikvegen 116

📍 Djupvikvegen 116A , 6080 GURSKØY

Nøkkelinfo

Sakstype
Nybygg
Bygningstype
Enebolig
Bruksareal
143 m²
Boenheter
1
Kommune
Herøy (Møre og Romsdal)
Fylke
Møre og Romsdal
Gnr / Bnr
44 / 28
Saksnummer
2024/1266
Fase
Rammetillatelse

Om byggesaken

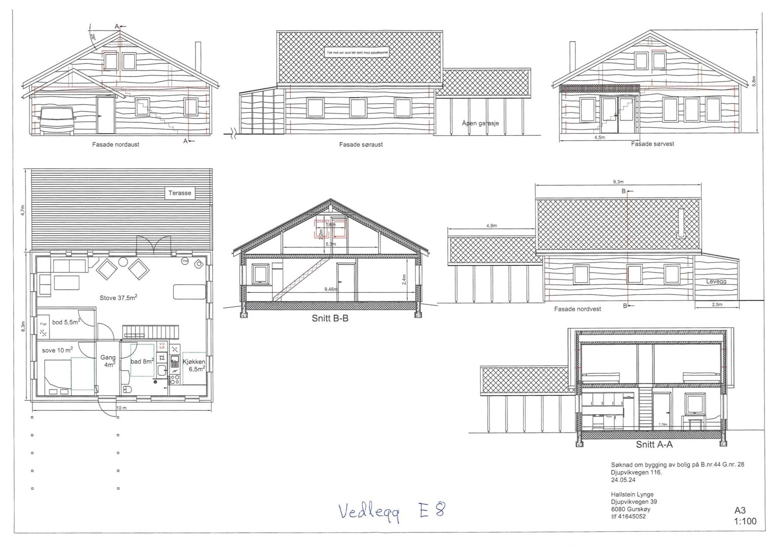
Ny enebolig på 143 m² BRA fordelt på to etasjer med mønehøyde 5,8 meter, plassert på eiendom 44/28 i Djupvikvegen 116. Boligen har en grunnflate (BYA) på 107 m² og inneholder stue, kjøkken, bad, bod, gang og soverom. Det er én trapp i bygget. Det planlegges privat vannforsyning og privat avløpsanlegg med eget renseanlegg tilknyttet felles septiktank og infiltrasjonsgrøft. Det er etablert ny tilkomstveg med godkjent avkjørsel fra kommunal veg. Tomten er ca. 16524 m², og tiltaket har dispensasjon fra reguleringsplankravet med vilkår om mulig flytting av tilkomstveg ved senere reguleringsplan. Parkering på ca. 80 m² er inkludert i prosjektet. Byggherre er selvbygger med personlige ansvarsrettigheter for søknad, prosjektering og utførelse.

Produkter og materialer

Terrasse Uteplass terrasse

Terrasse på ca. 11 m²

Uteplass terrasse tilknyttet bolig

Trapper Innvendig trapp

Antall: 1

Innvendig trapp mellom etasjer

Garasjeport Carport

Carport på 24 m² inkludert i prosjektet

Carport for parkering

Grunnarbeid Tilkomstveg og avkjørsel

Ny tilkomstveg med godkjent utvidet avkjørsel fra kommunal veg

Grunnarbeid for tilkomstveg og avkjørsel

Bad Våtrom

Obligatorisk uavhengig kontroll av fuktsikring og lufttetthet via Norconsult Norge AS

Bad med våtromsstandard og kontroll

Dører Ytterdør og innerdører

Antall: 7

En ytterdør og seks innerdører til rom som stue, soverom, bad, kjøkken, bod og gang

Ventilasjon Mekanisk ventilasjon

Ventilasjonsanlegg iht. TEK17

Elektro Elektrisk installasjon

Elektriske installasjoner iht. TEK17

Gulv Innvendige gulv

Innvendige gulv i henhold til TEK17 og brukerønsker

Fasade Kledning

Utvendig kledning i henhold til byggteknisk forskrift TEK17

VVS Privat vannforsyning og avløpsanlegg

Privat vannforsyning via Herøy Vasslag, eget renseanlegg for kloakk tilknyttet felles septiktank og infiltrasjonsgrøft

Vann- og avløpsinstallasjoner med privat tilknytning og renseanlegg

Vinduer Fasadevindu

Antall: 2

To fasadevindu i stue

Tak Taktekking

Taktekking i henhold til TEK17, mønehøyde 5,8 m

Tømrer Bygging av bærende konstruksjoner

Tømrerarbeid for bærende konstruksjoner og innvendige arbeider

Grunnarbeid Byggegrunn og fundamentering

Graveprøve utført, ingen kvikkleire funnet

Grunnarbeid med dokumentert trygg byggegrunn

Plantegning

Enebolig 71.5 m²

Etasje 1 71.5 m²

Rom Areal Vinduer Dører
Stue 101 37.5 m² 2 1
Sove 102 10.0 m² 0 1
Gang 103 4.0 m² 0 2
Bad 104 8.0 m² 0 1
Kjøkken 105 6.5 m² 0 1
Bod 106 5.5 m² 0 1

Hendelser

09.04.2026 Søknad om midlertidig bruksløyve søknad
09.10.2024 Løyve til tiltak - Einebustad - Djupvikvegen 116 - gnr 44 bnr 28
10.09.2024 Kloakk og vatn
10.09.2024 Kloakk og vatn
06.09.2024 Manglande informasjon i byggesak
06.09.2024 Avvik ved din søknad - nabomerknad ikkje kommentert søknad
22.08.2024 Førebels svar på søknad søknad
12.08.2024 Vedkomande sak 24/1266
16.07.2024 Vedkomande sak 24/1266
11.07.2024 Vedk kontrollerklæringar tilsyn
09.07.2024 Svar vedkomande sak 24/1266
08.07.2024 Erklæring om ansvarsrett
02.07.2024 Tilbakemelding på 'Førebels svar - mangelfull søknad gnr 44 bnr 28' søknad
02.07.2024 Vedlegg til byggesøknad - gnr 44 bnr 28
02.07.2024 Søknad om ny avkøyrsle - gnr 44 bnr 28 søknad
02.07.2024 Tilbakemelding på 'Førebels svar - mangelfull søknad gnr 44 bnr 28' søknad
21.06.2024 Førebels svar - mangelfull søknad 44/28 søknad
10.06.2024 Søknad om løyve til tiltak - bustad - gnr 44 bnr 28 søknad