NewConstruction Soeknad Enebolig

Oppføring av tre eneboliger med carport i Drivhusbakken 2, Bodø

📍 Drivhusbakken 2 , 8009 BODØ

Nøkkelinfo

Sakstype
Nybygg
Bygningstype
Enebolig
Bruksareal
293 m²
Boenheter
3
Kommune
Bodø
Fylke
Nordland - Nordlánnda
Gnr / Bnr
138 / 4808
Saksnummer
2026/16106
Fase
Søknad

Om byggesaken

Tre moderne eneboliger i to etasjer med pulttak på 6 graders takvinkel bygges på Drivhusbakken 2 i Bodø. Hver bolig har et bruttoareal på ca. 97 m² fordelt på to etasjer, med private balkonger på til sammen 29,2 m² og felles uteoppholdsareal på 107 m². Byggene har lys stående trekledning med mørke kontraster på vinduer og fasadeelementer, og er tilpasset terrenget med lav stabbesteinsmur mot nord og vest. Carporter er tilbygget for parkering. Prosjektet inkluderer også riving av eksisterende enebolig på tomten. Uteområdene tilrettelegges med beplantning, sittebenker og lekeapparater, og overvann håndteres etter 3-trinnsstrategien med infiltrasjon, fordrøyning og tilkobling til kommunalt nett.

Produkter og materialer

Betong Fundamentering og grunnarbeid

Utføres av BETONGARBEID OG TRANSPORT AS, inkludert rivingsarbeider

Grunnarbeid, fundamentering, landskapsutforming og rivingsarbeider

Vinduer Fasadevindu

🧱 Tre med mørke kontrastdetaljer

Antall: 14

Fasadevinduer i tre med mørke kontraster, fordelt på begge etasjer i tre eneboliger

Gulv Innvendige gulvflater

Innvendige gulv i boligene, materialvalg ikke spesifisert

Grunnarbeid Terrengtilpasning og stabbesteinsmur

🧱 Stabbestein

Stabbesteinsmur maks 1,0 m høyde mot nord og vest

Terrengtilpasning med lav stabbesteinsmur og justering av terreng for bygging

Tak Pulttak

🧱 Taktekking ikke spesifisert

Antall: 3

6 graders takvinkel

Pulttak med 6 graders takvinkel på tre eneboliger

Tømrer Bygging av bærende konstruksjoner og montering

Utføres av BYGGPARTNER AS, inkludert taktekking og membranarbeider

Tømrerarbeider for bærende konstruksjoner, montering av elementer og takarbeid

Garasjeport Carport

Antall: 3

Tilbygget carport til hver bolig for parkering

Carport tilknyttet hver enebolig som dekker parkeringsbehov

VVS Innvendige rør- og sanitærinstallasjoner

Utføres av EBBE RØRSERVICE AS

Innvendige rør- og sanitærinstallasjoner for tre eneboliger

Utendørs Uteoppholdsareal og beplantning

Felles uteoppholdsareal på 107 m² med hekk, busker, sittebenker og lekeapparater

Opparbeidelse av felles uteareal med beplantning og møblering

Trapper Innvendig trapp

Antall: 3

Innvendige trapper i hver av de tre eneboligene mellom etasjene

Fasade Kledning

🧱 Lys stående trepanel

Lys stående tre kledning med mørke kontrastdetaljer

Fasade med lys stående trepanel og mørke kontraster på vinduer og øvrige elementer

Dører Ytterdører og balkongdører

🧱 Tre med mørke kontrastdetaljer

Antall: 14

Ytterdører og balkongdører i tre med mørke kontraster, inkludert dører til balkonger og carport

Dører Innvendige dører

Innvendige dører i boligene, antatt standard tre eller tilsvarende

Bad Våtromsarbeider (fuktsikring og membran)

Utføres av NILSEN FLIS OG HÅNDVERKSERVICE AS

Fuktsikring og membranarbeider i våtrom i tre eneboliger

Grunnarbeid Overvannshåndtering

3-trinnsstrategi med infiltrasjon, fordrøyning og tilkobling til kommunalt nett

Overvannshåndtering i tråd med TEK17 § 15-8 for sikker og forskriftsmessig avledning

Ventilasjon Ventilasjonsanlegg inkl. kanalføringer

Ansvarsrett for ventilasjonsanlegg begrenset til boenhetens branncelle

Ventilasjonsanlegg for hver boenhet med kanalføringer

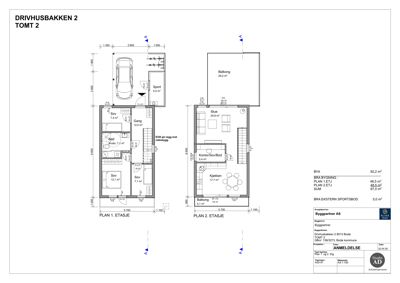
Plantegning

Enebolig 97.0 m²

Etasje 1 48.5 m²

Rom Areal Vinduer Dører
Sov 101 7.4 m² 1 2
Bad 102 7.1 m² 0 1
Sov 103 12.1 m² 1 1
Gang 104 12.5 m² 0 3
Sov 105 7.1 m² 1 2

Etasje 2 48.5 m²

Rom Areal Vinduer Dører
Stue 201 20.8 m² 1 1
Kontor/Sov/Bod 202 5.4 m² 1 1
Kjøkken 203 17.7 m² 1 1

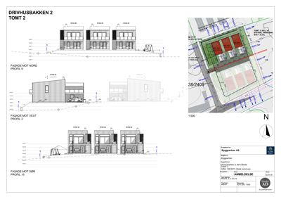
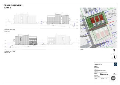
Fasader

Enebolig

Nord
Materiale
Tre
Taktype
Flatt tak
Høyde
6.0 m
Mønehøyde
8.0 m
Vinduer
3
Dører
2
Balkonger
1
Synlige etasjer
2
Øst
Materiale
Tre
Taktype
Flatt tak
Vinduer
1
Dører
1
Synlige etasjer
1
Sør
Materiale
Tre
Taktype
Flatt tak
Høyde
6.0 m
Mønehøyde
8.0 m
Vinduer
3
Dører
1
Balkonger
1
Synlige etasjer
2
Vest
Materiale
Tre
Taktype
Flatt tak
Høyde
6.0 m
Mønehøyde
8.0 m
Vinduer
1
Dører
0
Synlige etasjer
2

Hendelser

16.04.2026 Foreløpig svar - behov for tilleggsdokumentasjon
13.04.2026 Ett-trinns søknad - Drivhusbakken 2
13.04.2026 Bekreftelse på mottatt søknad - Drivhusbakken 2