NewConstruction Soeknad Enebolig

Ny enebolig med garasje i Dynjarvegen, Klepp

📍 Dynjarvegen 1 , 4350 KLEPPE

Nøkkelinfo

Sakstype
Nybygg
Bygningstype
Enebolig
Bruksareal
224 m²
Boenheter
1
Kommune
Klepp
Fylke
Rogaland
Gnr / Bnr
1 / 2489
Saksnummer
26/01018
Fase
Søknad

Om byggesaken

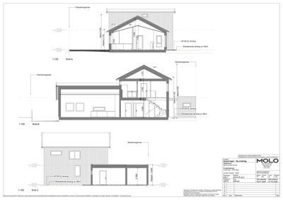
Ny enebolig på 223,5 m² BRA fordelt på to etasjer med saltak og trefasade. Boligen har en hoveddel i to etasjer og en tilstøtende del i én etasje. Det er tilknyttet en carport på 24,1 m² og en sportsbod på 14,2 m² med flatt tak. Planløsningen inkluderer stue/kjøkken, flere soverom, bad, vaskerom, gang og bod. Boligen har saltak med mønehøyde rundt 8 meter og gesimshøyde rundt 6 meter, tilpasset omkringliggende bebyggelse. Tomten er på 557 m² med utnyttelse på ca. 35 % BYA. Det er avsatt parkeringsplass for bil i carport og sykkelparkering i sportsbod. Terrengarbeid og grunnarbeid inngår i prosjektet.

Produkter og materialer

Elektro Elektrisk installasjon

Elektrisk anlegg for bolig og garasje

Grunnarbeid Tomtearbeid og fundamentering

Grunnarbeid tilpasset tomt med stigning ca 1:12

Grunnarbeid og fundamentering for bolig og garasje

Tak Saltak

🧱 Takstein eller lignende

Saltak med mønehøyde ca 8 m og gesimshøyde ca 6 m

Saltak på bolig og flatt tak på garasje og sportsbod

Gulv Innvendige gulv

Innvendige gulv i bolig

Tømrer Innvendig konstruksjon

🧱 Tre

Innvendige vegger, bjelker og takstoler i tre

Tømrerarbeid for bolig og garasje

VVS Sanitær og varme

VVS-installasjoner for bolig

Garasjeport Carport port

Antall: 1

Carport på 24,1 m² til 1 bil

Garasjeport/carport til bilparkering

Dører Ytterdør

🧱 Tre eller glass

Antall: 2

1 dør på nordfasade, 1 dør på vestfasade

Ytterdører til bolig

Fasade Trepanel

🧱 Tre

Trefasade med saltak

Trepanel til fasade på bolig med saltak

Vinduer Fasadevindu

🧱 Tre eller aluminium

Antall: 6

5 vinduer på nordfasade, 1 vindu på vestfasade

Fasadevindu i bolig

Plantegning

Enebolig 0.0 m²

Etasje 0 0.0 m²

Rom Areal Vinduer Dører
Bod 001 0.0 m² 0 0
Hems 002 0.0 m² 0 0
Åpent ned 003 0.0 m² 0 0

Fasader

Enebolig

Vest
Materiale
Tre
Taktype
Saltak
Vinduer
1
Dører
1
Synlige etasjer
2
Nord
Materiale
Tre
Taktype
Saltak
Vinduer
5
Dører
1
Synlige etasjer
2

Hendelser

20.04.2026 26/01018-14 Uttalelse til søknad om dispensasjon for frisbeegolfbane - 66/1/0/0 - 67/1 - 70/98 - Seierstenmarka - Belsjøveien 29 og 50 - Dispensasjon - Frisbeegolfbane
17.04.2026 26/01018-13 Uttalelse til søknad om frisbeegolfbane - 66/1/0/0 - 67/1 - 70/98 - Seierstenmarka - Belsjøveien 29 og 50 - Dispensasjon - Frisbeegolfbane
14.04.2026 26/01018-1 Dispensasjonssøknad - Oppføring av bolig med garasje - gnr/bnr 1/2489
10.04.2026 26/01018-10 26/01018-9 - Etterspør utsatt frist i dispensasjonssak til 20.04.2026 - Uttalelse - 66/1/0/0 - 67/1 - 70/98 - Seierstenmarka - Belsjøveien 29 og 50
10.04.2026 26/01018-11 66/1 /0/0- 67/1 - 70/98 - Uttalelse til søknad om dispensasjon for etablering av frisbeegolfbane
24.03.2026 26/01018-9 Etterspør utsatt frist i dispensasjonssak til 20.04.2026 - Uttalelse - 66/1/0/0 - 67/1 - 70/98 - Seierstenmarka - Belsjøveien 29 og 50
13.03.2026 26/01018-8 Uttalelse - 66/1/0/0 - 67/1 - 70/98 - Seierstenmarka - Belsjøveien 29 og 50 - Dispensasjon - Frisbeegolfbane
13.03.2026 26/01018-6 Mangelbrev - 66/1/0/0 - 67/1 - 70/98 - Seierstenmarka - Belsjøveien 29 og 50 - Dispensasjon - Frisbeegolfbane
04.02.2026 26/01018-4 Uttalelse fra Frogn Idretts- og aktivitetsråd - 66/1/0/0 - Seierstenmarka - Dispensasjon - Frisbeegolfbane
03.02.2026 26/01018-3 Uttalelse fra Frogn Friluftsforum - 66/1/0/0 - Seierstenmarka - Dispensasjon - Frisbeegolfbane
03.02.2026 26/01018-2 Uttalelse fra BirdLife Norge Drøbak-Frogn - 66/1/0/0 - Seierstenmarka - Dispensasjon - Frisbeegolfbane