NewConstruction Rammetillatelse Enebolig

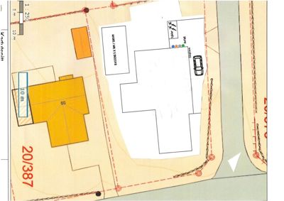
Ny enebolig med svømmebasseng i Eikveien 57, Horten

📍 Eikveien 57 , 3186 HORTEN

Nøkkelinfo

Sakstype
Nybygg
Bygningstype
Enebolig
Bruksareal
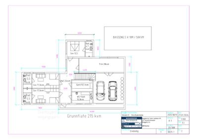
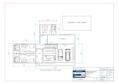
215 m²
Boenheter
1
Kommune
Horten
Fylke
Vestfold
Gnr / Bnr
20 / 388
Saksnummer
2026/11309
Fase
Rammetillatelse

Om byggesaken

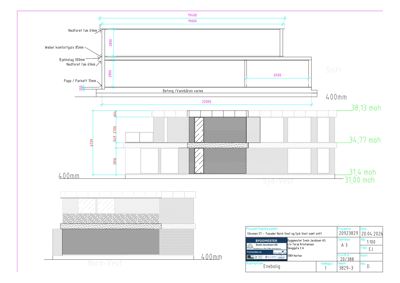
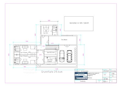
Ny enebolig i to etasjer på totalt 215 m² oppføres på en flat tomt på 936 m² i Eikveien 57, Horten. Boligen bygges i betong med flatt tak og har en gesimshøyde på 5,49 meter. Planløsningen inkluderer blant annet fem soverom, tre bad, trimrom, garderobe, hall og vaskerom. Det bygges også et utendørs svømmebasseng på 50 m² med plassering nærmere nabogrense enn 2 meter, med nabosamtykke. Dobbel garasje integreres i første etasje. Bygget har 10 vinduer og 2 dører på fasaden mot nordøst og sørøst. Terrenget rundt huset tilpasses ny høyde ved en heving av gulvet i første etasje med 40 cm. Bygget oppfyller krav i kommuneplanens arealdel og byggteknisk forskrift (TEK17).

Produkter og materialer

Tak Flatt tak

Flatt tak på bolig i betong

Taktekking og isolasjon for flatt tak

Gulv Parkett og betonggulv

🧱 Parkett, betong

Weber komfortgulv, betong med vannbåren varme, parkett 15 mm

Gulv med vannbåren varme og parkett overflate

Fasade Betong og tre kledning

🧱 Betong, tre

Fasader i betong og tre, med flatt tak

Fasadeelementer i betong og tre

Bad Bad og WC

Antall: 3

Tre bad/WC med fliser og sanitærutstyr

Bad og WC med sanitærutstyr og fliser

Elektro Elektriske installasjoner

Elektriske installasjoner i bolig og basseng

Elektroarbeid for bolig og basseng

Trapper Innvendig trapp

Antall: 1

Innvendig trapp i enebolig

Trapp mellom etasjer

VVS Sanitær og bassenginstallasjon

Vannmåler installasjon, sanitæranmeldelse kreves, utslipp fra svømmebasseng til kommunalt spillvannsnett med krav til klornivå og utslippsmengde

VVS-installasjoner for bolig og svømmebasseng

Terrasse Veranda

Antall: 1

Veranda på 9,2 m²

Utendørs veranda tilknyttet bolig

Dører Ytterdører

Antall: 2

2 ytterdører på fasader nordøst og sørøst

Ytterdører til bolig

Isolasjon Isolasjon i vegger og tak

Isolasjon iht. TEK17 krav

Isolasjon for vegger, tak og gulv

Mur Betongkonstruksjoner

🧱 Betong

Bygg i betong med flatt tak, gesimshøyde 5,49 m

Betongkonstruksjoner for bolig og svømmebasseng

Annet Svømmebasseng

Antall: 1

Utendørs svømmebasseng 5x10 m (50 m²), plassert nærmere nabogrense enn 2 m med nabosamtykke

Utendørs svømmebasseng med tilhørende tekniske installasjoner

Garasjeport Dobbel garasjeport

Antall: 1

Dobbel garasje integrert i 1. etasje

Garasjeport for dobbel garasje

Grunnarbeid Tomtearbeid og grunnarbeid

Grunnarbeid for ny enebolig og svømmebasseng på flat tomt, inkludert tilpasning av terreng ved heving av gulv 40 cm

Grunnarbeid for fundamentering og terrengtilpasning

Vinduer Fasadevindu

Antall: 22

Totalt 22 fasadevindu fordelt på fasader nordøst og sørøst

Vinduer til boligfasader

Plantegning

Enebolig 215.0 m²

Etasje 1 215.0 m²

Rom Areal Vinduer Dører
Hall 101 24.0 m² 0 3
Sov 102 17.5 m² 0 1
Bad 103 5.5 m² 0 0
Sov 104 17.5 m² 0 1
Bad 105 5.5 m² 0 0
Gard 106 10.5 m² 0 1
WC/Vask 107 10.3 m² 0 1
Trim 108 28.0 m² 0 1
Sov 109 12.5 m² 0 1
Bad 110 4.7 m² 0 0

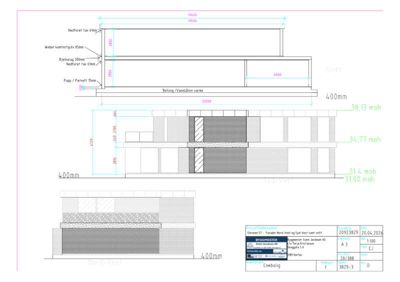
Fasader

Enebolig

Nord-Øst
Materiale
Betong
Taktype
Flatt tak
Høyde
5.5 m
Vinduer
10
Dører
1
Balkonger
1
Synlige etasjer
2
Syd-Øst
Materiale
Betong
Taktype
Flatt tak
Høyde
5.5 m
Vinduer
6
Dører
1
Synlige etasjer
2
Sør-Øst
Materiale
Tre
Vinduer
6
Dører
0
Synlige etasjer
2

Hendelser

21.04.2026 20/388 - Eikveien 57 - søknad om endring av gitt tillatelse
09.04.2026 Eikveien 57, 20/388 - oppføring av enebolig og svømmebasseng - vedtak
07.04.2026 Eikveien 57, 20/388 - riving av bygg - vedtak
16.03.2026 20/388 - Eikveien 57 - riving av bygg og oppføring av nytt - søknad om tillatelse i ett trinn