NewConstruction UnderBehandling Enebolig

Ny enebolig med garasje i Eskils vei 12, Fredrikstad

📍 Eskils vei 12 , 1667 ROLVSØY

Nøkkelinfo

Sakstype
Nybygg
Bygningstype
Enebolig
Bruksareal
835 m²
Boenheter
1
Kommune
Fredrikstad
Fylke
Østfold
Gnr / Bnr
711 / 83
Saksnummer
2025/21507
Fase
Under behandling

Om byggesaken

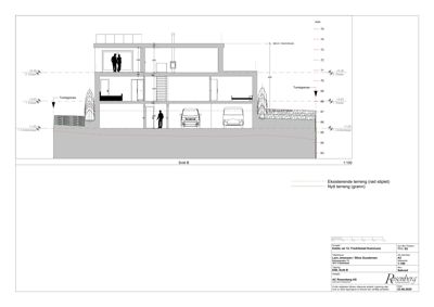
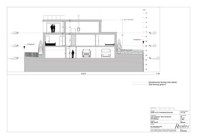
Ny enebolig på totalt ca. 835 m² BRA fordelt på fire etasjer, inkludert underetasje med garasje på 56,4 m². Boligen har moderne kubistisk arkitektur med flate tak og store takterrasser på 78 og 162 m², omsluttet av glassrekkverk. Bygget er tilpasset skrånende terreng med inngang på 1. etasje i gateplan og underetasje delvis innfelt i terrenget. Planløsningen omfatter flere soverom, bad, garderober, kontor, TV-stue, kjøkken med åpen løsning og spiskammers, samt tekniske rom og bodarealer. Fasader er kledd i tre med varierte farger og materialer for å bryte opp volumet. Utomhusplanen inkluderer opparbeidelse av utearealer, avkjørsel og nedkjøring til garasje i underetasjen. Bygget er prosjektert med hensyn til brann- og rømningskrav, dagslys og terrengtilpasning, og har godkjente ansvarsrettserklæringer for alle relevante fagområder.

Produkter og materialer

Vinduer Fasadevindu

🧱 Tre ramme

Antall: 19

Fasadevindu i tre med varierende størrelse fordelt på alle etasjer

Dører Ytterdører og balkongdører

🧱 Tre

Antall: 19

Ytterdører og dører til balkonger/verandaer i tre

Grunnarbeid Grunnarbeid og oppmåling

Grunnarbeid tilpasset fjellgrunn, oppmåling og utskikking

Grunnarbeid for bolig, tomt og ledninger, samt oppmåling og utskikking

Trapper Innvendig trapp

Antall: 1

Innvendig trapp mellom etasjer

Isolasjon Isolasjon i vegger, tak og gulv

Isolasjon for varme- og lydisolering i konstruksjoner

Tak Flatt tak med takterrasse

Antall: 3

Glassrekkverk på takterrasser, rekkverk montert tilbaketrukket fra fasadeliv

Flate tak med store takterrasser på 78 og 162 m² med glassrekkverk

Ventilasjon Balansert ventilasjonssystem

FLEXIT AS ansvarlig for ventilasjon i branncelle

Balansert ventilasjon med kanalføringer for boenheten

Gulv Innvendige gulvflater

Innvendige gulv i bolig, sannsynligvis parkett og fliser på bad

Terrasse Takterrasse med glassrekkverk

🧱 Glass og metall

Antall: 3

Glassrekkverk montert tilbaketrukket fra fasadeliv for å unngå volumøkning

Store takterrasser på flate tak med sikre og åpne glassrekkverk

VVS Ventilasjon og sanitærinstallasjoner

Balansert ventilasjon, VVS installasjon for bolig

Ventilasjonsanlegg for boenheten inkl. kanalføringer og VVS installasjon

Grunnarbeid Drenering og overvannshåndtering

Drenering tilpasset terreng og overvann føres til egen grunn uten sjenanse for nabo

Drenering og overvannshåndtering i henhold til kommunens VA-norm

Betong Plasstøpt betong og betongelementer

Dekker og elementer i betong i underetasje og øvrige konstruksjoner

Plasstøpt betong i dekker og elementer, samt montering av betongelementer

Tømrer Trekonstruksjoner

🧱 Tre

Montering av trekonstruksjoner for boligkropp

Tømrerarbeid og montering av trekonstruksjoner

Fasade Kledning og fasadeplater

🧱 Tre og murpuss

Variert fargebruk og materialer for å bryte opp volumet

Fasader kledd med kombinasjon av trekledning og murpuss

Garasjeport Garasjeport i underetasje

Antall: 1

Garasjeport til dobbel garasje på 56,4 m² i underetasje

Maling Innvendig og utvendig maling

Maling av innvendige og utvendige flater

Elektro Elektriske installasjoner

Elektriske installasjoner i bolig

Bad Sanitærutstyr og fliser

Bad med sanitærutstyr og flislagte overflater

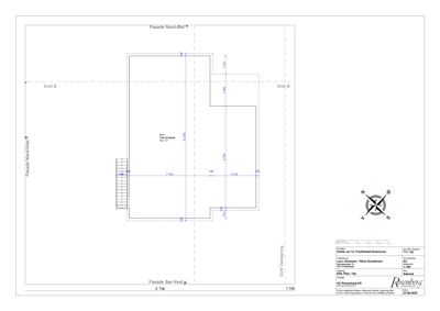
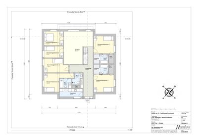
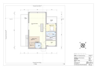
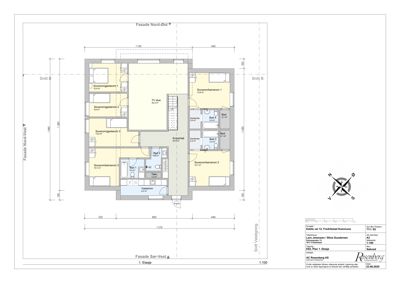
Plantegning

Enebolig 834.7 m²

Etasje 3 162.1 m²

Rom Areal Vinduer Dører
Apen Tak terrasse 162.1 m² 0 0
Apen Tak terrasse 78.1 m² 0 0
Apen Tak terrasse 162.1 m² 0 0

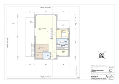
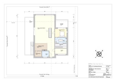
Etasje 2 200.0 m²

Rom Areal Vinduer Dører
Stue og åpent kjøkken 201 78.8 m² 2 1
Kjøkken område 202 11.1 m² 0 0
Spiskammers 203 4.8 m² 0 0
Tekn 204 0.5 m² 0 0
Bad 2 205 5.0 m² 0 1
Hoved Soverom 206 12.8 m² 1 1
Bad 1 207 8.5 m² 0 1
Garderobe 208 6.9 m² 0 1
Kontor 209 8.5 m² 1 1
Stue og åpent kjøkken 78.8 m² 2 0
Kjøkken område Spiskammers 11.1 m² 0 0
Spiskammers 4.8 m² 0 1
Bad 2 5.0 m² 0 1
Tekn. 0.5 m² 0 0
Hoved Soverom 12.8 m² 1 1
Bad 1 8.5 m² 0 1
Garderobe 6.9 m² 0 1
Kontor 8.5 m² 1 1
Overbygget Veranda 210 11.2 m² 0 0

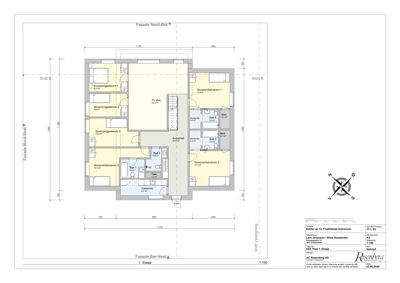
Etasje 1 207.8 m²

Rom Areal Vinduer Dører
Soverom/gjesterom 1 101 12.0 m² 1 1
Soverom/gjesterom 2 102 9.9 m² 1 1
Soverom/gjesterom 3 103 13.9 m² 1 1
Soverom/barnerom 3 104 15.7 m² 1 1
TV stue 105 35.3 m² 2 1
Vaskerom 106 8.2 m² 1 1
Tekn. 107 1.0 m² 0 0
Bad 1 108 5.0 m² 0 0
Bad 2 109 3.9 m² 0 0
Soverom/barnerom 2 110 15.7 m² 1 1
Soverom/barnerom 1 111 15.8 m² 1 1
Garderobe 112 2.4 m² 0 0
Bad 3 113 3.4 m² 0 0
Garderobe 114 2.4 m² 0 0
Bad 4 115 3.4 m² 0 0
Bod 116 2.1 m² 0 0
Bod 117 2.1 m² 0 0
Entre/Hall 118 24.5 m² 0 1
Soverom/gjesterom 1 Soverom/gjesterom 1 12.0 m² 1 1
Soverom/gjesterom 2 Soverom/gjesterom 2 9.8 m² 1 1
Soverom/gjesterom 3 Soverom/gjesterom 3 13.9 m² 1 1
Soverom/barnerom 3 Soverom/barnerom 3 16.7 m² 1 1
TV stue TV stue 35.3 m² 0 0
Entre/Hall Entre/Hall 27.9 m² 0 0
Soverom/barnerom 1 Soverom/barnerom 1 15.8 m² 1 1
Soverom/barnerom 2 Soverom/barnerom 2 15.7 m² 1 1
Bad 1 Bad 1 5.0 m² 0 1
Bad 2 Bad 2 3.5 m² 0 1
Tekn. Tekn. 1.0 m² 0 0
Vaskerom Vaskerom 8.2 m² 0 1
Garderobe Garderobe 2.4 m² 0 0
Bad 3 Bad 3 3.4 m² 0 1
Bad 4 Bad 4 3.2 m² 0 1
Bod Bod 2.3 m² 0 0

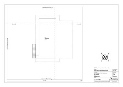
Etasje 0 264.8 m²

Rom Areal Vinduer Dører
Garasje G01 56.4 m² 0 0
Bod/teknisk U01 50.2 m² 0 0
WC G02 1.5 m² 0 1
Entre U02 4.2 m² 0 1
Gang G03 9.4 m² 0 2
Garderobe U03 12.8 m² 0 1
Bod 1 U04 8.5 m² 0 1
Bod 2 U05 8.5 m² 0 1
TV/Hjemmekino U06 30.8 m² 0 1
Entre G04 4.2 m² 0 1
Gang G05 9.4 m² 0 1
Garderobe G06 12.8 m² 0 1
Bod 1 G07 8.5 m² 0 1
Bod 2 G08 8.5 m² 0 1
TV/Hjemmekino G09 30.8 m² 0 1
Garasje Garasje 56.4 m² 0 0
Bod/teknisk Bod/teknisk 50.2 m² 0 0
WC WC 1.5 m² 0 1
Gang Gang 12.8 m² 0 1
Garderobe Garderobe 12.8 m² 0 0
Bod 1 Bod 1 8.5 m² 0 0
Bod 2 Bod 2 8.5 m² 0 0
Hjemmekino Hjemmekino 0.0 m² 0 0

Fasader

Enebolig

Nord-Øst
Materiale
Tre
Taktype
Flatt tak
Høyde
15.7 m
Vinduer
5
Dører
1
Balkonger
1
Synlige etasjer
2
Sør-Øst
Materiale
Tre
Taktype
Flatt tak
Høyde
14.8 m
Vinduer
3
Dører
0
Synlige etasjer
2
Sør-Vest
Materiale
Tre
Taktype
Flatt tak
Høyde
15.7 m
Vinduer
3
Dører
1
Synlige etasjer
2
Nord-Vest
Materiale
Tre
Taktype
Flatt tak
Høyde
14.8 m
Vinduer
4
Dører
0
Balkonger
1
Synlige etasjer
2

Hendelser

14.04.2026 Svar på e-post av 14.04.26 - Eskilsvei 12
14.04.2026 Utsettelse av frist for supplerende dokumentasjon - Eskilsvei 12
25.03.2026 Vurdering av supplering av søknad - Eskils vei 12 - Eiendom 711/83
06.03.2026 Supplering av søknad - eiendom 711/83 - Eskils vei 12
10.12.2025 Svar på e-post av 09.12.25 - Utsettelse på tilbakemelding
09.12.2025 Anmodning om utsettelse på tilbakemelding
28.10.2025 Vurdering av supplerende dokumentasjon - Eskils vei 12 - Eiendom 711/83
22.10.2025 Supplering av søknad - eiendom 711/83 - Eskils vei 12
14.10.2025 Foreløpig vurdering - Eskils vei 12 - Eiendom 711/83
14.10.2025 A-panel sin vurdering - Eskils vei 12 - 06.10.2025
06.10.2025 Mangelfull søknad/manglende ansvarsretter - Nybygg - boligformål - Eskils vei 12 - Eiendom 711/83
29.09.2025 Eskils vei 12 - Supplering av søknad - Eiendom 711/83
19.09.2025 Kopi: Møtereferat - Tilsyn med søker og arkitekturprosjekterende - Ny enebolig - Eskils vei 12
19.09.2025 Mangelfull søknad - Nybygg - boligformål - Eskils vei 12 - Eiendom 711/83
28.08.2025 Spørsmål om status i sak - Eskilsvei 12
25.08.2025 Anmodning om tilsyn - Eskils vei 12 - Eiendom 711/83
06.08.2025 Eskils vei 12 - Supplering av søknad - Eiendom 711/83
23.07.2025 Ny bolig - Eskils vei 12 - Eiendom 711/83 - uttalelse Teknisk forvaltning - Kommunalteknikk
21.07.2025 Anmodning om uttalelse - Ny bolig - Eskils vei 12 - Eiendom 711/83
09.07.2025 Bekreftelse på mottatt søknad - Ett-trinns søknad - Nybygg - boligformål - Eskils vei 12 - Eiendom 711/83
09.07.2025 Ett-trinns søknad - Eskils vei 12 - Eiendom 711/83 - Nybygg - boligformål