NewConstruction Soeknad Enebolig

Riving og ny enebolig med anlegg i Fjordveien 127, Bodø

📍 Fjordveien 127 , 8102 SKJERSTAD

Nøkkelinfo

Sakstype
Nybygg
Bygningstype
Enebolig
Bruksareal
174 m²
Boenheter
1
Kommune
Bodø
Fylke
Nordland - Nordlánnda
Gnr / Bnr
2025 / 6856
Saksnummer
2026/2473
Fase
Søknad

Om byggesaken

Ny enebolig på 174 m² BRA fordelt på to etasjer med 4 soverom, 2 bad, kjøkken, stue, gang, vindfang og bod. Boligen har saltak og er plassert noe vridd i forhold til tidligere bygg, med terrasse på 71 m² tilpasset terrenget. Det inngår også gjenoppbygging av et fjøs på eiendommen, som skal brukes som avlastningsfjøs for eggproduksjon. Tiltaket inkluderer etablering av privat avløpsanlegg med slamavskiller og utskifting av vannledning tilknyttet Støvset Vannverk BA. Det er krav om arkeologisk registrering før endelig godkjenning på grunn av mulig automatisk fredete kulturminner. Prosjektet er under ett-trinns søknadsbehandling med selvbyggeransvar og uavhengig kontroll av våtrom og lufttetthet.

Produkter og materialer

Gulv Innvendige gulv

Innvendige gulv i eneboligen, ikke spesifisert materiale

Tak Saltak

🧱 Tre og taktekking

Antall: 2

Saltak på enebolig og fjøstilbygg

Vinduer Fasadevindu

🧱 Tre

Antall: 6

Fasadevindu i tre i eneboligen og fjøstilbygg

Dører Ytterdør og innerdører

🧱 Tre

Antall: 14

Ytterdør og innerdører i tre i eneboligen

Mur Grunnmur

🧱 Betong

Antall: 1

Grunnmur forankret i fjell

Grunnmur for eneboligen, forankret i fjell

Tømrer Bygningskonstruksjon

🧱 Tre

Nye bærekonstruksjoner i bolig, økt takhøyde til 2,4 m i etasje 1, mønehøyde 6,3 m

Tømrerarbeid for ny enebolig med nye bærekonstruksjoner

Fasade Trepanel

🧱 Tre

Trepanel på fasader av enebolig og fjøstilbygg

Annet Gjenoppbygging fjøs

🧱 Tre

Antall: 1

Gjenoppbygging av tidligere høystå/lagerrom som avlastningsfjøs for eggproduksjon

Gjenoppbygging av fjøs med tilhørende lagerrom og garasje

VVS Vannledning

🧱 Plastrør 32 mm frostfri

Antall: 1

Ny vannledning fra tilkoblingspunkt ved garasje på naboeiendom 233/4

Ny vannledning tilkoblet Støvset Vannverk BA

VVS Privat avløpsanlegg med slamavskiller

Antall: 1

Slamavskiller 3-kammers, glassfiberarmert, volum 4 m3, diameter 1600 mm, lengde 2340 mm, høyde 2050 mm

Privat avløpsanlegg med slamavskiller til sjø med utslippstillatelse

Terrasse Terrasse

Antall: 1

Terrasse på 71 m² tilpasset terreng

Stor terrasse tilknyttet eneboligen

Trapper Innvendige trapper

Antall: 2

To innvendige trapper i eneboligen

Bad Våtrom

Antall: 2

Uavhengig kontroll av våtrom og lufttetthet utført av Multiconsult AS

Bad i eneboligen med uavhengig kontroll

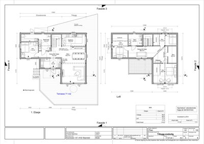
Plantegning

Enebolig 174.0 m²

Etasje 1 96.8 m²

Rom Areal Vinduer Dører
Sov 101 11.0 m² 1 1
Bad/Vask 102 13.5 m² 0 1
Kjøkken 103 12.2 m² 1 1
Stue 104 35.0 m² 2 1
Gang inkl. trapp 105 13.3 m² 0 2
VF 106 7.9 m² 0 1

Etasje 2 77.2 m²

Rom Areal Vinduer Dører
Garderobe 201 0.0 m² 0 1
Sov 202 15.0 m² 1 1
Bad 203 6.5 m² 0 1
Gang inkl. trapp 204 26.8 m² 0 2
Garderobe 205 0.0 m² 0 1
Sov 206 11.0 m² 1 1
Bod 207 6.0 m² 0 1
Sov 208 18.6 m² 1 1

Fasader

Fjøstilbygg

Nord
Materiale
Tre
Taktype
Saltak
Høyde
4.8 m
Mønehøyde
7.7 m
Vinduer
4
Dører
0
Synlige etasjer
2
Sør
Materiale
Tre
Taktype
Saltak
Høyde
4.8 m
Mønehøyde
7.7 m
Vinduer
2
Dører
0
Synlige etasjer
2
Vest
Materiale
Tre
Taktype
Saltak
Høyde
4.8 m
Mønehøyde
7.7 m
Vinduer
1
Dører
0
Synlige etasjer
2
Øst
Materiale
Tre
Taktype
Saltak
Høyde
4.8 m
Mønehøyde
7.7 m
Vinduer
2
Dører
0
Synlige etasjer
2

Hendelser

21.04.2026 Kart og gjennomføringsplan
21.04.2026 Svar til Utførelse av privat avløpsanlegg og vannledning
17.04.2026 Utførelse av privat avløpsanlegg og vannledning
16.04.2026 Svar på kulturminnefaglig vurdering – varsel om registrering – gbnr. 233/1, Fjordveien, Bodø kommune
13.04.2026 Foreløpig svar - behov for tilleggsdokumentasjon
07.04.2026 Kulturminnefaglig vurdering - varsel om registrering - Søknad om dispensasjon, riving av våningshus, etablering av privat avløpsanlegg mv, gbnr 233/1, Fjordveien, Bodø kommune
30.03.2026 Radonsperre
27.03.2026 Uttalelse - Dispensasjon - Bodø 233/1 - Fjordveien - riving av eksisterende våningshus, oppføring av enebolig m.m.
19.03.2026 Svar på henvendelse om mer informasjon - Dispensasjon - Bodø gnr/bnr. 233/1 - Fjordeveien 127
18.03.2026 Svar på nabovarsel - gnr 233 bnr 1 i Bodø kommune - Riving og oppføring av ny bolig, driftsbygning, VA - anlegg og parkering.
13.03.2026 Ber om mer informasjon - Dispensasjon - Bodø 233/1 - Fjordveien - riving av eksisterende våningshus, oppføring av enebolig m.m.
04.03.2026 Anmodning om uttalelse
04.03.2026 Informasjon - Saken er sendt på ekstern høring
03.03.2026 Uavhengig kontroll våtrom/lufttetthet
03.03.2026 Tilbakemelding på 'Foreløpig svar - behov for tilleggsdokumentasjon'
04.02.2026 Foreløpig svar - behov for tilleggsdokumentasjon
26.01.2026 Foto - grunnmur
15.01.2026 Ettersendte dokumenter
15.01.2026 Redegjørelse
15.01.2026 Situasjonskart
15.01.2026 Kopi av nabovarsel
15.01.2026 Geoteknisk undersøkelse med kart
12.01.2026 Ett-trinns søknad - Fjordveien 127
12.01.2026 Foreløpig svar - behov for tilleggsdokumentasjon