NewConstruction Igangsettingstillatelse Enebolig

Ny enebolig med avløpsanlegg i Flakstadveien, Ramberg

📍 Flakstadveien 100 , 8382 NAPP

Nøkkelinfo

Sakstype
Nybygg
Bygningstype
Enebolig
Bruksareal
138 m²
Boenheter
1
Kommune
Flakstad
Fylke
Nordland - Nordlánnda
Gnr / Bnr
29 / 395
Saksnummer
24/461
Fase
Igangsettingstillatelse

Om byggesaken

Ny enebolig på 138 m² BRA oppføres på Flakstadveien 395 i Ramberg, med en etasje og saltak på øst- og sørfasade, flatt tak på vest- og nordfasade. Boligen inneholder stue/kjøkken/spis på 68,9 m², tre soverom, tre bad, badstue, teknisk rom/vaskerom, surfebod og sportsbod. Fasaden er i tre med saltak og flatt tak, gesimshøyde ca. 3,7 m og mønehøyde ca. 6,9 m. Det er etablert et avløpsanlegg med 4 m³ slamavskiller og sandfiltrering på egen eiendom, dimensjonert for 5 personekvivalenter. Det er én trapp i boligen, og det er garasje som erstatter opprinnelig carport. Bygget ligger lavt i terrenget for å harmonisere med omgivelsene, og tomten består av to slåtte tomter som slås sammen.

Produkter og materialer

Annet Avløpsanlegg

Infiltrasjonsanlegg med sandfiltrering og slamavskiller, dimensjonert for 5 pe

Avløpsanlegg for bolig med godkjent utslippstillatelse

Vinduer Fasadevindu

🧱 Tre

Antall: 11

Fasadevindu i tre, fordelt på øst, sør, vest og nord fasader

Grunnarbeid Tomtearbeid og grunnarbeid

Grunnarbeid utført av Rasmussen Anlegg AS, inkludert infiltrasjonsanlegg

Grunnarbeid for bolig og avløpsanlegg, inkludert masseprøver og infiltrasjonsareal

Tak Saltak og flatt tak

🧱 Tre med taktekking

Saltak på øst- og sørfasade, flatt tak på vest- og nordfasade

Tak med saltak og flatt tak i tre, tilpasset terreng

Betong Ringmur og fundament

🧱 Betong

Betongarbeider for fundament og ringmur utført av Byggalf AS

VVS Sanitæranlegg

Sanitæranlegg for enebolig, inkludert 4 m³ slamavskiller og sandfiltrering

Sanitæranlegg med infiltrasjonsanlegg og biologisk minirenseanlegg

Tømrer Bygging av enebolig

🧱 Tre

Tømrerarbeid for oppføring av enebolig med tilhørende boder og garasje

Dører Ytterdør og terrassedør

🧱 Tre

Antall: 7

Ytterdører og terrassedører i tre, inkludert dør til garasje

Elektro Elektrisk installasjon

Elektriske installasjoner i bolig, inkludert belysning og varme

Garasjeport Garasjeport i tre eller metall

Antall: 1

Garasjeport til ny garasje som erstatter opprinnelig carport

Bad Bad og våtrom

Antall: 3

Bad med sanitærutstyr, fliser og ventilasjon

Ventilasjon Ventilasjonssystem

Ventilasjon for bolig, inkludert badstue og våtrom

Gulv Innvendige gulv

Innvendige gulv i bolig, sannsynligvis parkett og fliser i våtrom

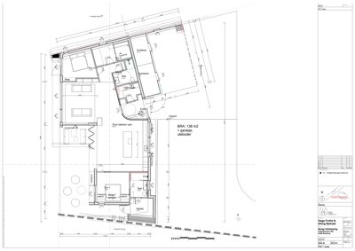
Plantegning

Enebolig 138.0 m²

Etasje 1 138.0 m²

Rom Areal Vinduer Dører
Stue/kjøkken/spis 101 68.9 m² 2 2
Sov 1 102 13.3 m² 1 1
Bad 1 103 6.0 m² 0 1
Badstu 104 5.3 m² 0 1
Sov 2 105 11.4 m² 1 1
Sov 3 106 8.2 m² 1 1
Gang 107 4.8 m² 0 2
Bad 108 5.0 m² 0 1
Tekn/vask 109 4.6 m² 0 1
Surfebod 110 8.2 m² 1 1
Sportsbod 111 0.0 m² 0 1
Skap 112 0.0 m² 0 0

Fasader

Enebolig

Øst
Materiale
Tre
Taktype
Saltak
Høyde
3.7 m
Mønehøyde
6.9 m
Vinduer
2
Dører
1
Synlige etasjer
1
Sør
Materiale
Tre
Taktype
Saltak
Høyde
3.7 m
Mønehøyde
6.9 m
Vinduer
2
Dører
1
Synlige etasjer
1
Vest
Materiale
Tre
Taktype
Flatt tak
Høyde
3.7 m
Vinduer
4
Dører
1
Synlige etasjer
1
Nord
Materiale
Tre
Taktype
Flatt tak
Høyde
3.6 m
Vinduer
3
Dører
0
Synlige etasjer
1

Hendelser

08.04.2026 Endringsvedtak - gnr 29 bnr 395 - Flakstadveien - Nybygg Bolig
26.03.2026 Søknad om endring av gitt tillatelse eller godkjenning 29/395
06.11.2025 Oppdatert ansvarlig søker - Igangsettingstillatelse - gnr 29 bnr 395 - Flakstadveien - Nybygg Bolig
31.10.2025 Igangsettingstillatelse - gnr 29 bnr 395 - Flakstadveien - Nybygg Bolig
30.10.2025 Supplering av søknad 29/395
29.10.2025 Etablering av avløpsanlegg på eiendom 29/394 og 395
29.10.2025 Utslipp 29_394 Flakstad
23.10.2025 Sikring av vann via mail - Fwd: VS: Manglende påkoblingstillatelse og utslippstillatelse.
21.10.2025 Tilbakemelding om mangler - gnr 29 bnr 395 - Flakstadveien - Nybygg Bolig
20.10.2025 Søknad om igangsettingstillatelse 29/395
20.10.2025 VS: Utslipp Hege Forfot
20.10.2025 VS: Utslipp Hege Forfot