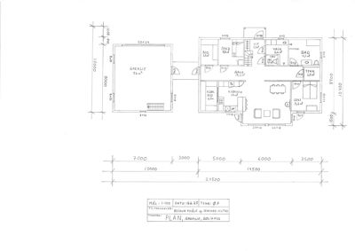
Facade
Fasadetegning som viser bygningens front med mål på høyder, bredder og vindusposisjon.
1 / 5
NewConstruction
Unknown
Enebolig
Oppføring av enebolig og garasje
📍 Gjeisarjordet 44 , 2686 LOM
Nøkkelinfo
- Sakstype
- Nybygg
- Bygningstype
- Enebolig
- Kommune
- Lom
- Fylke
- Innlandet
- Gnr / Bnr
- 38 / 55
- Saksnummer
- 2025/662
- Fase
- Unknown
Om byggesaken
Saken omhandler oppføring av et nytt bustadhus og garasje på Gjeisarjordet 44, inkludert søknad om endring av tillatelse og ferdigattest.
Hendelser
21.04.2026
Vs: Skannet
07.04.2026
Ferdigattest
30.03.2026
Søknad om ferdigatttest
22.12.2025
Krav om samanslåing av tinglyste matrikkeleiningar
22.12.2025
Matrikkelbrev
23.09.2025
Vedtak - Søknad om endring av gjeve løyve
23.09.2025
Søknad om endring av gjeve løyve
20.08.2025
Vedtak - Endring av gjeve løyve
12.08.2025
Søknad om endring av tillatelse
15.07.2025
Vedtak - Eitt-stegs søknad - oppføring av bustadhus og garasje
15.07.2025
Eitt-stegs søknad - oppføring av bustadhus og garasje
15.07.2025
VS: Nabovarsel Gjeisarjordet 44 - forslag endret løysing
15.07.2025
SV: Nabovarsel Gjeisarjordet 44 - forslag endret løysing