NewConstruction Ferdigattest Enebolig

Ny enebolig med integrert garasje på Gjertrudgjellan 10, Røros

📍 Gjertrudgjellan 10 , 7374 RØROS

Nøkkelinfo

Sakstype
Nybygg
Bygningstype
Enebolig
Bruksareal
218 m²
Boenheter
1
Kommune
Røros - Rosse
Fylke
Trøndelag - Trööndelage
Gnr / Bnr
135 / 747
Saksnummer
2025/836
Fase
Ferdigattest

Om byggesaken

Ny enebolig over to plan med integrert garasje på 38,5 m², totalt bruksareal ca. 218 m² og bebygd areal 154 m². Boligen bygges med sokkelplan inn i skrånende terreng, og 2. etasje helt over terreng med terrasse over garasjen. Bygget har saltak med dobbelkrum betongtakstein i svart, utvendig stående DF-kledning malt i lys farge og pusset murvegger. Innvendig inneholder boligen flere soverom, bad, bod, teknisk rom, stue og kjøkken. Det er én trapp i boligen. Fasader er i tre med flere vinduer og dører, pipe og garasjeport. Det er etablert tilknytning til offentlig vann og avløp, og ny avkjørsel til kommunal vei. Tiltaket har dispensasjon fra regulert byggegrense og er underlagt uavhengig kontroll og ansvarsrett for prosjektering og utførelse.

Produkter og materialer

Tak Saltak med betongtakstein

🧱 Dobbelkrum betongtakstein, svart

Saltak med dobbelkrum betongtakstein i svart farge

Terrasse Overbygget terrasse

Antall: 1

Terrasse på 12,9 m² over garasjedel

Overbygget terrasse i 2. etasje

Grunnarbeid Gravearbeider og tilkobling VA

Gravearbeider på tomt, tilkobling til offentlig vann, avløp og strøm

Grunnarbeider for bygging og tilkobling av infrastruktur

Ventilasjon Ventilasjonsanlegg

Ventilasjonsanlegg i henhold til prosjektert grunnlag

Ventilasjonsanlegg for bolig

Vinduer Fasadevindu i tre

🧱 Tre, flere størrelser, inkludert kjøkkenvindu 20x8

Antall: 12

Kjøkkenvindu 20x8 cm, øvrige fasadevinduer i tre

Fasadevindu i tre i flere størrelser, inkludert spesifisert kjøkkenvindu

Bad Våtromsarbeider

🧱 Membran, fliser, baderomsplater

Membran i våtrom, fall til sluk, flis/belegg/baderomsplater

Våtromsarbeider i bad og vaskerom

Dører Ytterdører og garasjeport

🧱 Tre ytterdører, garasjeport i tre eller metall

Antall: 6

Ytterdører til bolig og sportsbod, samt garasjeport

Pipe Pipe og ildsted

Antall: 1

Pipe og ildsted montert i bolig

Trapper Innvendig trapp

Antall: 1

Innvendig trapp mellom to plan

Betong Grunnmur, plate på mark, forstøtningsmurer

🧱 Betong

Plass-støpte betongkonstruksjoner for grunnmur, forstøtningsmurer og plate på mark

Betongkonstruksjoner for fundamentering og grunnmur

Fasade Utvendig kledning

🧱 Stående DF-kledning, malt lys farge

Utvendig kledning i stående DF-kledning malt i lys farge på trefasader

Gulv Innvendige gulvflater

Innvendige gulv i bolig, ikke spesifisert materiale

VVS Vann- og avløpsinstallasjoner

Skjult-anlegg for vann og avløp, tekniske VVS installasjoner og innredninger

VVS-installasjoner for bolig med tilkobling til offentlig vann og avløp

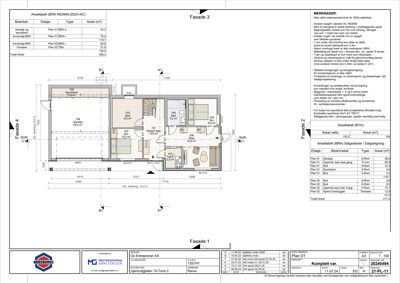
Plantegning

Enebolig 119.7 m²

Etasje 1 119.7 m²

Rom Areal Vinduer Dører
Gang/Trapp 101 13.8 m² 0 2
Sov 102 10.3 m² 0 1
Bod 103 9.5 m² 0 1
Bad 104 5.2 m² 0 1
Sov 105 8.5 m² 0 1
Stue 106 19.9 m² 2 1
Tekn 107 3.5 m² 0 1
Garasje 108 38.5 m² 0 1
Sportsbod 109 5.8 m² 0 1

Fasader

Enebolig

Vest
Materiale
Tre
Taktype
Flatt tak
Vinduer
2
Dører
1
Synlige etasjer
1
Sør
Materiale
Tre
Taktype
Saltak
Vinduer
3
Dører
1
Balkonger
1
Synlige etasjer
2
Øst
Materiale
Tre
Taktype
Saltak
Vinduer
5
Dører
1
Synlige etasjer
2
Nord
Materiale
Tre
Taktype
Saltak
Vinduer
2
Dører
1
Synlige etasjer
2

Hendelser

20.04.2026 Søknad om ferdigattest
29.10.2025 Bekreftelse på mottak av beliggenhetskontroll - gbnr. 135/747
24.10.2025 Beliggenhetskontroll 135/747
22.10.2025 Tilsynsrapport - gbnr. 135/747 - Gjertrudgjellan 10
25.07.2025 Intern høring - dispensasjon fra regulert byggegrense
25.07.2025 Intern høring - dispensasjon fra regulert byggegrense
27.06.2025 Dispensasjon og tillatelse til tiltak - oppføring av enebolig - gbnr. 135/747 - Gjertrudgjellan 10
15.05.2025 Søknad om tillatelse i ett trinn - nybygg bolig - gbnr. 135/747
15.05.2025 Foreløpig svar