NewConstruction Igangsettingstillatelse Enebolig

Ny enebolig med garasje i Glendrangeveien 21, Flekkefjord

📍 Glendrangeveien 21 , 4406 FLEKKEFJORD

Nøkkelinfo

Sakstype
Nybygg
Bygningstype
Enebolig
Bruksareal
338 m²
Boenheter
1
Kommune
Flekkefjord
Fylke
Agder
Gnr / Bnr
71 / 127
Saksnummer
25/03170
Fase
Igangsettingstillatelse

Om byggesaken

Ny enebolig på totalt 337,8 m² fordelt på to etasjer bygges på Glendrangeveien 21 i Flekkefjord. Boligen har fire soverom, to bad, vaskerom, entré, gang og en stor stue/kjøkken på 57,7 m². Det oppføres også en frittstående garasje med saltak i tre, med gesimshøyde 4,1 m og mønehøyde 6,5 m, samt carport. Garasjen har garasjeport og flere dører. Tomten ligger delvis innenfor LNFR-område, og det er gitt dispensasjon fra arealformål og byggegrense mot fylkesvei. Det er gjennomført skredfarevurdering med påfølgende sikringstiltak i bergskråning for å sikre mot steinsprang. Boligen tilknyttes offentlig vann- og avløpsnett, og det er etablert ny avkjørsel til fylkesvei. Overvann skal håndteres på egen tomt. Bygget oppfyller krav til støyisolasjon og universell utforming.

Produkter og materialer

Tak Saltak

🧱 Tre, isolasjon og taktekking

Antall: 2

Saltak på bolig og garasje

Tak på bolig og garasje med isolasjon og taktekking

Fasade Kledning

🧱 Tre

Trekledning på bolig og garasje

Utvendig kledning i tre på bolig og garasje

VVS Vann- og avløpsinstallasjon

Tilknytning til offentlig vann- og avløpsnett, installasjon av vannmåler

VVS-installasjoner for bolig med tilkobling til kommunalt nett

Elektro Ventilasjon

Balansert ventilasjon i bolig

Ventilasjonsanlegg for bolig

Grunnarbeid Graving, masseutskifting, drenering

Gravearbeider, masseutskifting, oppfylling, komprimering, drenering for fundament og tomt

Grunnarbeid for bolig og garasje fundamentering og tomteplanering

Gulv Innvendige gulv

Innvendige gulv i bolig

Dører Ytterdører og garasjedører

🧱 Tre og glass

Antall: 12

Ytterdører til bolig, garasje og carport, inkludert garasjeport

Vinduer Fasadevindu

🧱 Tre med 3-lags isolerglass

Antall: 7

Standard tre-lags isolerglass, Rw+Ctr = 27 dB

Vinduer i soverom, stue/kjøkken og vaskerom

Tømrer Bygging av bolig og garasje

🧱 Trevirke og konstruksjonsmaterialer

Tømrerarbeid for oppføring av bolig og garasje

Stål Bergbolter

🧱 Ø20 mm bolter

Antall: 11

Bergbolter for sikring av bergskråning over tomt for å redusere steinsprangfare

Sikring av bergskråning med minimum 11 bolter for å oppfylle TEK17 krav

Maling Innvendig og utvendig maling

Overflatebehandling av innvendige og utvendige flater

Terrasse Uteplass

Uteplass plassert mot vest for støyskjerming

Terrasse/uteplass ved bolig

Rekkverk Sikringsrekkverk

Sikringsrekkverk ved terreng og trapper

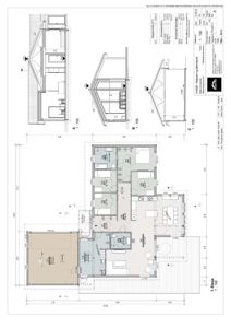
Plantegning

Enebolig 337.8 m²

Etasje 1 226.0 m²

Rom Areal Vinduer Dører
Entré 101 6.0 m² 0 2
Sov 102 8.1 m² 1 1
Sov 103 8.1 m² 1 1
Bad 104 7.8 m² 0 1
Sov 105 16.4 m² 1 1
Sov 106 8.8 m² 1 1
Stue/kjøkken 107 57.7 m² 2 1
Gang 108 10.4 m² 0 2
Bad 109 4.9 m² 0 1
Vaskerom 110 12.0 m² 1 1
Garasje 111 47.0 m² 1 1

Etasje 2 111.8 m²

Rom Areal Vinduer Dører
Carport 11 11.0 m² 0 1
Garasje 12 41.9 m² 0 1
Garasje 13 44.1 m² 0 1

Fasader

Garasje

Vest
Materiale
Tre
Taktype
Saltak
Høyde
4.1 m
Mønehøyde
6.5 m
Vinduer
0
Dører
1
Synlige etasjer
2
Øst
Materiale
Tre
Taktype
Saltak
Vinduer
0
Dører
0
Synlige etasjer
1
Nord
Materiale
Tre
Taktype
Saltak
Vinduer
2
Dører
0
Synlige etasjer
1
Sør
Materiale
Tre
Taktype
Saltak
Vinduer
0
Dører
0
Synlige etasjer
1

Hendelser

20.04.2026 25/03170-15 Glendrangeveien 21 Søknad om igangsettingstillatelse 71/127
20.03.2026 25/03170-13 Administrativt vedtak for oppføring av bolig og garasje ved Glendrangeveien 21, Gnr. 71, Bnr. 127
06.03.2026 25/03170-11 Glendrangeveien -godkjenning av sanitærabonnement
06.03.2026 25/03170-12 Glendrangeveien -søknad er komplett
23.02.2026 25/03170-10 Dialog vedr. påkobling ved BYGG-25/00396
28.01.2026 25/03170-9 Påkobling av vann- og avløp ved Glendrangeveien 21 -melding til ansvarlig søker
05.01.2026 25/03170-7 Glendrangeveien 21 Supplering av søknad 71/127
11.12.2025 25/03170-5 Glendrangeveien 21 Søknad om rammetillatelse 71/127
11.12.2025 25/03170-6 Dispensasjon fra byggegrensen (KOPI)
09.12.2025 25/03170-4 Dialog om mangelbrev til rammetillatelse for bolig - GBNR71/127