NewConstruction UnderBehandling Enebolig

Ny enebolig med riving av eksisterende bolig i Breimsvegen 2262, Byrkjelo

Nøkkelinfo

Sakstype
Nybygg
Bygningstype
Enebolig
Bruksareal
406 m²
Boenheter
1
Kommune
Gloppen
Fylke
Vestland
Saksnummer
2025/405
Fase
Under behandling

Om byggesaken

Ny enebolig på totalt ca. 406 m² BRA fordelt på tre etasjer bygges på eiendommen Breimsvegen 2262 i Byrkjelo. Boligen har 10 soverom, 3 bad, stue, kjøkken, vaskerom, grovkjøkken, flere boder og en garasje på 46 m². Bygget har balansert ventilasjon, betongfundament, trekonstruksjon og flere pipeløp. Det skal etableres nytt avløpsanlegg med infiltrasjon, og det er planlagt terrengtilpasninger og ny adkomstvei. Eksisterende eldre våningshus på ca. 160 m² rives med miljøsanering av farlig avfall som asbest, PCB-vinduer og pentaklorfenolholdige materialer. Byggearbeidene er godt organisert med ansvarlige foretak innen prosjektering, utførelse og kontroll, og det er gitt midlertidig brukstillatelse for ny bolig.

Produkter og materialer

Trapper Innvendig trapp

🧱 Tre

Antall: 1

Innvendig trapp i bolig, 1 stk

Trapp i ny bolig

VVS Vann, avløp og sentralvarme

Nytt avløpsanlegg med 4 m3 slamavskiller, pumpekum og infiltrasjonspakke, tilknytning til privat vannforsyning, sentralvarme med radiatorer

VVS-installasjoner for ny bolig og avløpsanlegg

Garasjeport Garasjeport til ny garasje

Antall: 1

Garasjeport til garasje på 46 m²

Garasjeport til ny garasje

Terrasse Terrasse med rekkverk

🧱 Tre

Antall: 1

Terrasse med midlertidig rekkverk som skal ferdigstilles med permanent rekkverk

Terrasse til ny bolig

Gulv Parkett, laminat og linoleum

Nye gulv i bolig, parkett og laminat, samt håndtering av gamle gulvbelegg med ftalater og linoleum ved riving

Gulvbelegg i ny bolig og miljøhåndtering av gamle gulv

Betong Fundament, veranda og trapp

🧱 Betong

Støpt betongfundament, veranda og trapp, inkl. søyler av eternitrør (asbestholdig) under veranda

Betongarbeid for fundament, veranda og trapp med asbesthåndtering

Grunnarbeid Tomtearbeid og terrengtilpasning

Terrengprofilering, vei og parkeringsplass, terrengtilpasning med terrengprofiler og tverrprofiler

Grunnarbeid for ny bolig, vei, parkeringsplass og terrengtilpasning

Elektro Elektrisk anlegg

Nytt elektrisk anlegg i bolig, fjerning av gamle elektriske komponenter ved riving

Elektroinstallasjon for ny bolig og demontering av gammelt anlegg

Tømrer Trekonstruksjon og kledning

🧱 Trekonstruksjon, kledning av tre

Ny trekonstruksjon for bolig, kledning, listverk, vinduer og dører

Tømrerarbeid for ny bolig med trekonstruksjon og kledning

Dører Ytterdører og verandadører

🧱 Tre og glass

Antall: 6

Ytterdører og verandadører med enkelt- og ornamentglass, ombruk eller sortering som trevirke/restavfall

Dører til ny bolig og håndtering av gamle dører ved riving

Bad Våtromsarbeid og membran

Antall: 3

Tre bad i ny bolig, våtromsarbeider inkl. membran, samt miljøsanering av gamle bad med farlig avfall som pentaklorfenol og ftalater

Bad og våtrom i ny bolig og miljøsanering ved riving

Miljøsanering Farlig avfall håndtering

Fjerning og forsvarlig håndtering av asbest (eternitrør), PCB-vinduer, klorparafinvinduer, pentaklorfenolholdige plater, ftalatbelegg og annet farlig avfall

Miljøsanering ved riving av eksisterende bolig

Tak Taktekking og beslag

🧱 Skifer, Decra metallplater, shingel

Nytt tak på bolig, riving av gammelt tak med skifer, Decra og shingel, materialer sorteres for ombruk og gjenvinning

Taktekking for ny bolig og miljøsanering av gammelt tak

Vinduer Isolerglassvinduer og 1-lags vinduer

🧱 Glass, tre og aluminium

Antall: 15

Nye isolerglassvinduer, 1-lags vinduer for ombruk fra riving, PCB- og klorparafinholdige vinduer skal fjernes som farlig avfall

Vinduer til ny bolig, samt håndtering av gamle vinduer ved riving

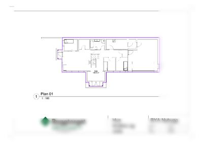
Plantegning

Enebolig 406.1 m²

Etasje 1 190.8 m²

Rom Areal Vinduer Dører
Stue 101 0.0 m² 3 1
Kjøkken 102 0.0 m² 1 1
Bad 103 0.0 m² 0 1
Gang 104 0.0 m² 0 0
Sove 1 105 0.0 m² 1 1
Sove 2 106 0.0 m² 1 1
Sove 3 107 0.0 m² 1 1
Sove 4 108 0.0 m² 1 1
Vaskerom 109 0.0 m² 0 1
Toalett 110 0.0 m² 0 1

Etasje 0 100.2 m²

Rom Areal Vinduer Dører
Grovkjøkken 001 25.9 m² 0 1
Bod 002 6.8 m² 0 1
Bod 003 7.7 m² 1 1
Pipe 004 0.4 m² 0 0
Bod/Lager 005 25.2 m² 0 1

Etasje 2 115.1 m²

Rom Areal Vinduer Dører
Bad 201 8.1 m² 0 1
Soverom 8 / Hobbyrom 202 6.9 m² 1 1
Soverom 7 203 10.7 m² 0 1
Dusjrom 204 3.0 m² 0 1
Gang / Trapperom 205 22.0 m² 0 0
Pipe 206 0.6 m² 0 0
Soverom 6 / trimrom 207 13.8 m² 1 1
Soverom 4 208 13.1 m² 0 1
Soverom 3 209 11.0 m² 1 1
Soverom 5 210 8.4 m² 1 1
Altan 211 3.5 m² 0 1

Hendelser

23.04.2026 Søknad om midlertidig brukstillatelse
16.04.2026 Supplering av søknad - miljøsanering
09.04.2026 Supplering av søknad
10.02.2025 Løyve til tiltak - nytt våningshus og avløpsanlegg
03.02.2025 Supplering av byggesøknad
27.01.2025 Søknad om tillatelse i ett trinn 107/1