NewConstruction UnderBehandling Enebolig

Ny enebolig med utleiedel i Grensegata 16, Porsgrunn

📍 Grensegata 16 , 3916 PORSGRUNN

Nøkkelinfo

Sakstype
Nybygg
Bygningstype
Enebolig
Bruksareal
300 m²
Boenheter
2
Kommune
Porsgrunn
Fylke
Telemark
Gnr / Bnr
200 / 831
Saksnummer
2026/2420
Fase
Under behandling

Om byggesaken

Ny enebolig på ca. 300 m² fordelt på to etasjer med halvt nedgravd kjeller og hovedplan på bakkeplan. Kjelleren inneholder blant annet utleiedel med egen inngang, tekniske rom og baderom. Hovedetasjen har stue, kjøkken, bad, vaskerom og soverom. Bygget har saltak og trepanel som fasademateriale, med gesims på ca. 6,5 m og mønehøyde på ca. 8,2 m. Fasaden mot gaten er tilpasset omkringliggende bebyggelse med mindre åpninger og glassrekkverk. Det er planlagt to biloppstillingsplasser og opparbeidet hage med svømmebasseng. Tilgjengelighet ivaretas med trapp som kan bygges om til løfteplattform for rullestolbrukere. Bygget prosjekteres etter TEK17 med branntekniske tiltak, inkludert røykvarslere, håndslokkere og brannmotstandskrav for vegger og vinduer. Eksisterende bygg rives på grunn av dårlig teknisk tilstand og manglende brannsikring.

Produkter og materialer

Grunnarbeid Fundamentering og drenering

Ringmur med krypkjeller, fundamentering tilpasset dagens krav, drenering og opparbeidelse av utearealer med parkering og hage

Grunnarbeid for nytt bygg med tilhørende uteområder

Vinduer Brannklassifiserte vinduer

🧱 Tre/Aluminium

Antall: 14

Vinduer med brannmotstand EI30 i branncellebegrensende vegger, inkludert rømningsvinduer med minimum 0,6 m høyde og 0,5 m bredde, seriekoblet røykvarsling

Vinduer tilpasset branntekniske krav og estetikk i bevaringsområde

Dører Brannklassifiserte dører

🧱 Tre/Metall

Antall: 10

Dører med brannmotstand EI2 30-Sa mellom boenheter og brannceller, låssystem med knappevrider, utadslående dører i rømningsretning

Brann- og rømningssikre dører i henhold til TEK17

Isolasjon Brannsikker isolasjon

🧱 A2-s1,d0 klasse ubrennbar isolasjon

Isolasjon i yttervegger, tak og hulrom med brannklasse A2-s1,d0 eller tilsvarende

Isolasjon som tilfredsstiller branntekniske krav

Elektro Røykvarslere og brannalarm

Seriekoblede røykvarslere tilkoblet strømnett med batteri som reserveløsning, håndslokkerapparater iht. NS-EN 3-7

Brannsikkerhetsinstallasjoner i henhold til forskrift

Tak Saltak med betongtakstein

🧱 Betongtakstein

Saltak med takvinkel ca. 31 grader, betongtakstein, brannmotstand BROOF(t2)

Taktekking med betongtakstein tilpasset omkringliggende bebyggelse

Bad Bad og toalettinnredning

Antall: 3

Bad og toalettrom med standard sanitærutstyr, tilrettelagt for tilgjengelighet

Bad og WC i kjeller og hovedetasje

Annet Løfteplattform Flexstep

🧱 Lakkert stål med tilpassede trinn og håndløpere

Antall: 1

Flexstep trapp og løfteplattform for rullestolbrukere, kapasitet 400 kg, elektrisk drift 230V, CE-merket

Løfteplattform som kan erstatte trapp for tilgjengelighet

Trapper Innvendig trapp og utvendig trapp

🧱 Tre/Metall

Antall: 1

Innvendig trapp mellom etasjer, utvendig trapp til kjellerinngang med mulighet for Flexstep løfteplattform for rullestolbrukere

Trapper tilpasset tilgjengelighetskrav med løfteplattform

Fasade Trepanel

🧱 Malt trepanel

Utvendig kledning med malt trepanel, tilpasset bevaringsområde og omkringliggende bebyggelse

Fasade med trepanel og glassrekkverk, tilpasset kulturmiljø

Rekkverk Glassrekkverk og metallrekkverk

🧱 Glass og metall

Glassrekkverk mot gate og hage, tilpasset gatemiljø og bevaringsområde

Rekkverk som skjermer mot innsyn og ivaretar estetikk

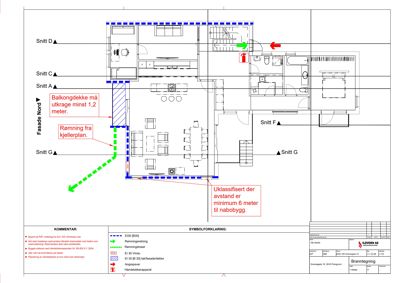
Terrasse Balkongdekke

Antall: 1

Balkong med utkraget dekke minimum 1,2 meter, brannmotstand EI30

Balkong som gir overdekking av kjeller og kontakt med byrommet

Kjøkken Kjøkkeninnredning

Antall: 1

Kjøkken med moderne innredning og ventilasjon

Kjøkken i hovedetasje

VVS Varme og ventilasjon

Varmepumpe installert, mekanisk ventilasjon med separate anlegg for boenheter, kjøkkenavtrekk med fettfilter og rengjørbare kanaler

Moderne VVS-anlegg med varme og ventilasjon i henhold til TEK17

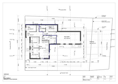
Plantegning

Enebolig 300.0 m²

Etasje 0 155.0 m²

Rom Areal Vinduer Dører
WC WC 2.0 m² 0 1
Teknisk rom tek 4.9 m² 0 1
Trapp trapp 9.0 m² 0 1
Inngang inng 10.5 m² 0 1
Korridor korridor 5.6 m² 0 2
Dispensasjon kjeller disp kjeller 34.8 m² 0 1
WC WC 7.2 m² 0 1
Gang gang 5.3 m² 0 2
Soverom soverom 11.3 m² 1 1
Soverom soverom 10.5 m² 1 1
Stue stue 20.7 m² 1 1

Etasje 1 145.0 m²

Rom Areal Vinduer Dører
Stue 101 45.0 m² 3 2
Kjøkken 102 18.0 m² 1 1
Gang 103 12.0 m² 0 3
Bad 104 8.5 m² 0 1
Toalett 105 3.5 m² 0 1
Vaskerom 106 6.0 m² 1 1
Teknisk rom 107 4.0 m² 0 1
WC WC 2.0 m² 0 1
Stue Stue 8.0 m² 1 1
Inngang inn 10.5 m² 0 1
Sov 7.7 m² 1 1
Gang gang 5.3 m² 0 1
Korridor korr 5.6 m² 0 1
Trapp trapp 9.0 m² 0 0
Bad 108 3.5 m² 0 1

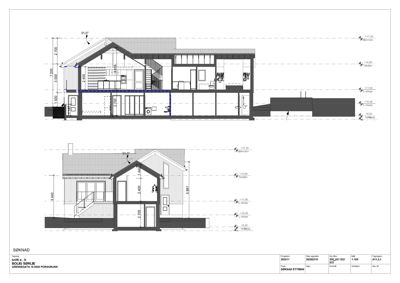
Fasader

Enebolig

Nord
Materiale
Tre
Taktype
Saltak
Høyde
6.5 m
Mønehøyde
8.2 m
Vinduer
6
Dører
0
Synlige etasjer
2
Øst
Materiale
Tre
Taktype
Saltak
Høyde
6.5 m
Mønehøyde
8.2 m
Vinduer
2
Dører
0
Synlige etasjer
2
Sør
Materiale
Tre
Taktype
Saltak
Vinduer
3
Dører
1
Balkonger
1
Synlige etasjer
2
Vest
Materiale
Tre
Taktype
Saltak
Vinduer
3
Dører
1
Balkonger
1
Synlige etasjer
2
Ukjent
Materiale
Tre
Taktype
Saltak
Vinduer
5
Dører
1
Balkonger
1
Synlige etasjer
2

Hendelser

21.04.2026 Justeringer i byggesøknad - Gbnr. 200/831, Grensegata 16
13.04.2026 Varsel om avslag - Gbnr. 200/831, Grensegata 16 - riving og oppføring av nytt hus
27.03.2026 Ett-trinns byggesøknad - Gbnr. 200/831,Grensegata 16
24.03.2026 Forespørsel om tilleggsopplysninger - Gbnr. 200/831, Grensegata 16
02.03.2026 Ett-trinns byggesøknad Grensegata - Gbnr. 200/831, Grensegata 16
02.03.2026 Dokumentasjon angående brannvern - Gbnr. 200/831, Grensegata 16