NewConstruction Rammetillatelse Enebolig

Ny enebolig og dobbelgarasje i Grete Langes veg 10, Jessheim

📍 Grete Langes veg 10 , 2053 JESSHEIM

Nøkkelinfo

Sakstype
Nybygg
Bygningstype
Enebolig
Bruksareal
262 m²
Boenheter
1
Kommune
Ullensaker
Fylke
Akershus
Gnr / Bnr
117 / 635
Saksnummer
2026/2556
Fase
Rammetillatelse

Om byggesaken

Ny enebolig oppføres over to etasjer med totalt 262,3 m² BRA, inkludert 145 m² i 1. etasje og 117,3 m² i 2. etasje. Boligen har flatt tak med gesimshøyde 6,9 meter, og et moderne uttrykk med store vindusflater. Planløsningen inkluderer stue/kjøkken, fem soverom, tre bad, vaskerom, teknisk bod, flere boder, garderober, kontor, loftstue, overbygde arealer og en stor balkong på 54,1 m². Det bygges også en frittliggende dobbelgarasje på 43,1 m² BRA med flatt tak og gesimshøyde 3,1 meter. Tomten på 867 m² utnyttes med 28,3 % BYA, og uteoppholdsareal på 432 m² etableres mot sør og vest. Garasje og gårdsplass plasseres nord på eiendommen med snuplass på egen tomt. Bygget tilknyttes offentlig vann og avløp, og det er godkjent VA-plan og renovasjonsløsning. Terrenginngrep er minimale og tilpasset eksisterende terreng, med samtykke til plassering av fyllingsfot inntil nabogrense. Prosjektet har komplett ansvarsrett og uavhengig kontroll.

Produkter og materialer

Tak Flatt tak på enebolig og garasje

Antall: 2

Flatt tak med gesimshøyde 6,9 m på bolig og 3,1 m på garasje

Flatt tak med utvendig taknedløp

Gulv Innvendige gulvflater

Gulv i bolig, inkludert baderomsgulv med membran og flis

Innvendige gulvflater i bolig

Fasade Trepanel

🧱 Tre

Fasade i tre på alle sider av enebolig med saltak

Trepanel som fasademateriale

VVS Balansert ventilasjon

Prosjektering og montering av balansert ventilasjon med kanalgjennomføringer

Ventilasjonsanlegg for bolig

Grunnarbeid Grunn- og terrengarbeider

Grunnarbeider med fylling og utgraving, overvannshåndtering, rørfremføring fra VA-tilknytningspunkt til grunnmur

Grunnarbeid for bolig og garasje, inkludert overvannshåndtering

Terrasse Terrasse og balkong

Antall: 2

Terrasse på 31,2 m² og balkong på 54,1 m² med overbygde arealer

Utearealer for opphold

Dører Ytterdører og balkongdører i tre

🧱 Tre

Antall: 11

Ytterdører og balkongdører fordelt på fasader og balkong, inkludert 1 dør på hver fasade og flere innvendige dører

Ytterdører og balkongdører i tre med moderne design

Trapper Innvendig trapp i enebolig

Antall: 1

Innvendig trapp mellom 1. og 2. etasje, 16,8 m² i 1. etasje og 21,8 m² i 2. etasje gang/trapp

Innvendig trapp for adkomst mellom etasjer

VVS Innvendige rørarbeider og sanitærutstyr

Innvendig VA med rørarbeider, plassering av sluk og sanitærutstyr

VVS-installasjoner i bolig

Garasjeport Dobbel garasjeport

Antall: 1

Dobbel garasje med port i samme stil og materialbruk som bolig

Garasjeport for dobbelgarasje

Mur Flis og membran i våtrom

Membran på vegg og gulv i våtrom, flislegging, tetting mot sluk

Våtromsarbeid med membran og flis

Peis Peisovn og stålpipe

Antall: 1

Peisovn og stålpipe installert i bolig

Varmeinstallasjon med peis

Elektro Elektriske installasjoner

Elektriske installasjoner i bolig og garasje, inkludert belysning og strømuttak

Elektroarbeid for bolig og garasje

Betong Ringmur og plate

Ringmur og plate med radonsikring og markisolering

Betongarbeid for fundamentering

Vinduer Fasadevindu i tre

🧱 Tre

Antall: 20

Store vindusflater i enebolig, inkludert 5 vinduer på sørvestfasade, 4 på nordøst, 6 på nordvest og 5 på sørøst

Fasadevindu i tre med god isolasjon og moderne design

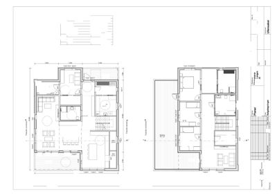
Plantegning

Enebolig 262.3 m²

Etasje 1 145.0 m²

Rom Areal Vinduer Dører
Stue/kjøkken 101 66.4 m² 4 2
Soverom 1 102 11.7 m² 1 1
Bad 103 6.3 m² 0 1
Teknisk bod 104 6.5 m² 1 1
Bod 105 4.3 m² 0 1
Bod 106 2.5 m² 0 1
Bod 107 2.8 m² 0 1
Gang/trapp 108 16.8 m² 0 1
Entre 109 4.0 m² 0 1
Garderobe 110 6.2 m² 0 1
Vaskerom 111 9.4 m² 1 1
Overbygd 112 8.1 m² 0 0
Terrasse 113 17.8 m² 0 0

Etasje 2 117.3 m²

Rom Areal Vinduer Dører
Soverom 2 201 14.4 m² 1 1
Soverom 3 202 11.2 m² 1 1
Soverom 4 203 11.0 m² 1 1
Gang/trapp 204 21.8 m² 0 1
Bad 205 9.6 m² 1 1
Bad 206 9.4 m² 1 1
Garderobe 207 8.1 m² 0 1
Kontor 208 6.8 m² 1 1
Overbygd 209 7.2 m² 0 0
Lofstue 210 17.4 m² 0 0
Balkong 211 54.1 m² 0 0

Fasader

Enebolig

Sørvest
Materiale
Tre
Taktype
Saltak
Vinduer
5
Dører
1
Balkonger
1
Synlige etasjer
2
Nordøst
Materiale
Tre
Taktype
Saltak
Vinduer
4
Dører
1
Synlige etasjer
2
Nordvest
Materiale
Tre
Taktype
Saltak
Vinduer
6
Dører
1
Balkonger
1
Synlige etasjer
2
Sørøst
Materiale
Tre
Taktype
Saltak
Vinduer
5
Dører
1
Synlige etasjer
2

Hendelser

20.04.2026 Reviderte tegninger - Gnr 117 bnr 635 - Grete Langes veg 10 - Nybygg - Enebolig og garasje
20.04.2026 Tillatelse til tiltak - Gnr 117 bnr 635 - Grete Langes veg 10 - Nybygg - Enebolig og garasje
25.03.2026 Supplering av søknad - Gnr 117 bnr 635 - Grete Langes veg 10 - Nybygg - Enebolig og garasje
19.03.2026 Tilbakemelding om mangler - Gnr 117 bnr 635 - Grete Langes veg 10 - Nybygg - Enebolig og garasje
13.03.2026 Søknad om tillatelse i ett trinn - Gnr 117 bnr 635 - Grete Langes vei 10 - Nytt bygg - Enebolig